立体的な天井が空間に奥行きをもたらすお家

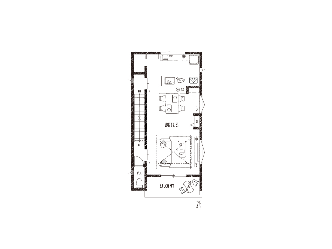
家族が集まるLDKに開放感と奥行きをもたらす、スタイリッシュなデザインの天井が印象的なお家です。キッチンは折り下げ天井を採用することで落ち着いた雰囲気に仕上げられ、料理がしやすい環境に。リビングは折り上げ天井になっており、視覚的にも広がりを感じられる開放的な設計です。キッチンからリビングへと続く空間は奥行きを感じさせ、全体的に広々とした印象を与えてくれます。また、2つのウォークインクローゼットをはじめ、パントリーやリビング収納など、あらゆる場所に機能的な収納スペースを確保。使ったものをすぐ片付けられるので、いつでもお家をスッキリと保つことができます。18.5帖の広々としたLDKには、さらに広がりを感じられる工夫を随所に凝らした、のびやかで快適な毎日を過ごせる住まいです。

WORKS
大阪市大正区

LIVONE 平尾2丁目1号地

    • 所在地

      大阪市大正区
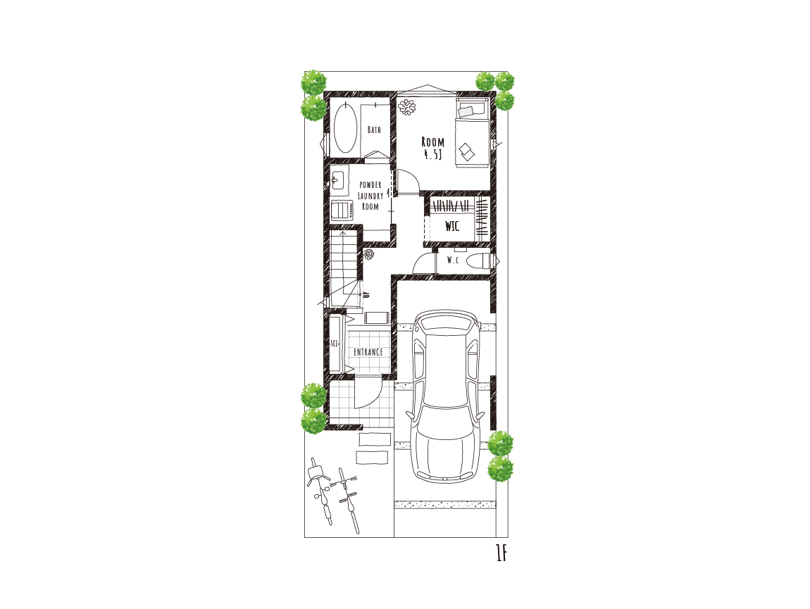
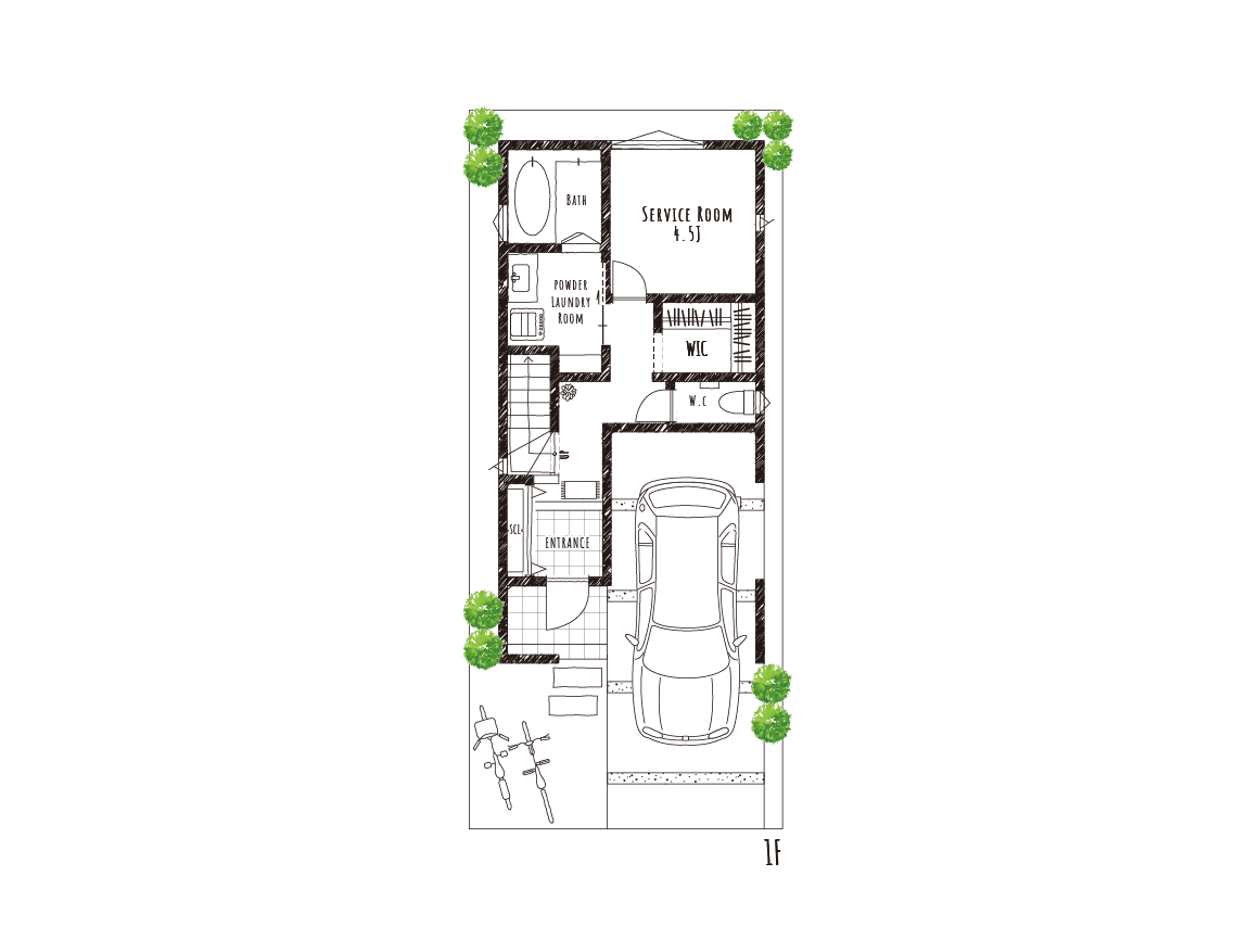
    • 間取り

      3LDK+S
    • 敷地面積

      70.70m²(21.38坪)
    • 延床面積

      103.5m²(31.30坪)
  • 開放感とデザイン性が両立したリビング

    リラックスした時間をみんなで共有できるリビングは、折り上げ天井を採用することで開放感を演出しました。梁を見せることで空間のアクセントとなり、立体感のある魅力的な雰囲気を作り出します。広がりのある天井が、家族で過ごすひとときをより特別で心地よいものにしてくれます。

  • ゾーニングされたカウンターキッチン

    キッチンの上には折り下げ天井を取り入れ、リビング・ダイニングと緩やかに空間を分けています。落ち着いた雰囲気の中で、リラックスしながらお料理を楽しむことができます。隣には可動棚付きのパントリーを設けているので、食材や日用品をスッキリと収納でき、とても便利です。

  • ダイニング横に設けたワークスペース

    本や書類をスッキリ整理できる収納を備えた、集中しやすいおこもり感のあるワークスペースを設置しました。キッチンからは、勉強する子どもたちの様子を見守りながらお料理ができるほか、リビングで遊んだりお昼寝をしている子どもたちを見守りつつ在宅ワークを進めることもできます。

  • プライベートタイムを満喫できる主寝室

    ご夫婦の衣類や小物類をはじめ、スーツケースのような大きなものも収納できるウォークインクローゼットを設けました。この広々とした収納スペースにより、室内をスッキリと快適に使うことができます。また造作のカウンターは、書斎スペースやドレッサーなど多目的に活用できます。

  • 個性を演出できる玄関ホール

    玄関ホールにマグネットボードを設置しました。お気に入りの写真やアートを飾れば、まるでギャラリーのような雰囲気となり、訪れる人の目を引く個性的な空間を作り出します。また、磁石付きのフックや棚を活用すれば、小物の収納もでき、日々の暮らしに彩りと便利さをプラスしてくれます。

  • 家族で共用できるウォークインクローゼット

    1階廊下の洗面脱衣室前に、家族で使える共用のウォークインクローゼットを設置しました。衣類やタオルをすっきりと収納できるほか、パジャマや下着をまとめて保管しておけば、お風呂の準備もスムーズに進みます。家族みんなの暮らしをより快適にする、便利で機能的な収納スペースです。

PLANNING

LOCATION & ACCESS

〒551-0012 大阪市大正区平尾2丁目18-7