適材適所に豊富な収納を設けた、スッキリ空間で暮らせる家

毎日の暮らしを快適にする工夫が、家中にちりばめられた住まいです。玄関には、生活感をさっと隠せる扉付きのシューズクローゼットを設置。さらに、コートなどを掛けておけるハンガーパイプも備えており、お出かけ前の身支度もスムーズに行えます。1階には、洋服からスーツケースなど大きなものまで収納できる、大容量のウォークインクローゼットを設けました。キッチンにはカップボードに加え、冷蔵庫までスッキリ収まるパントリーも完備。さらに3階には、廊下のスペースを有効活用したウォークスルークローゼットをご用意。システム収納を採用しているため使い勝手がよく、日常の整頓もぐっとラクになります。日々の暮らしに寄り添いながら、快適さと使いやすさを両立した住まいです。

WORKS
尼崎市

LIVONE 菜切山町3号地

    • 所在地
      尼崎市
    • 間取り
      2LDK+S
    • 敷地面積
      92.65m²(28.02坪)
    • 延床面積
      99.35m²(30.05坪)
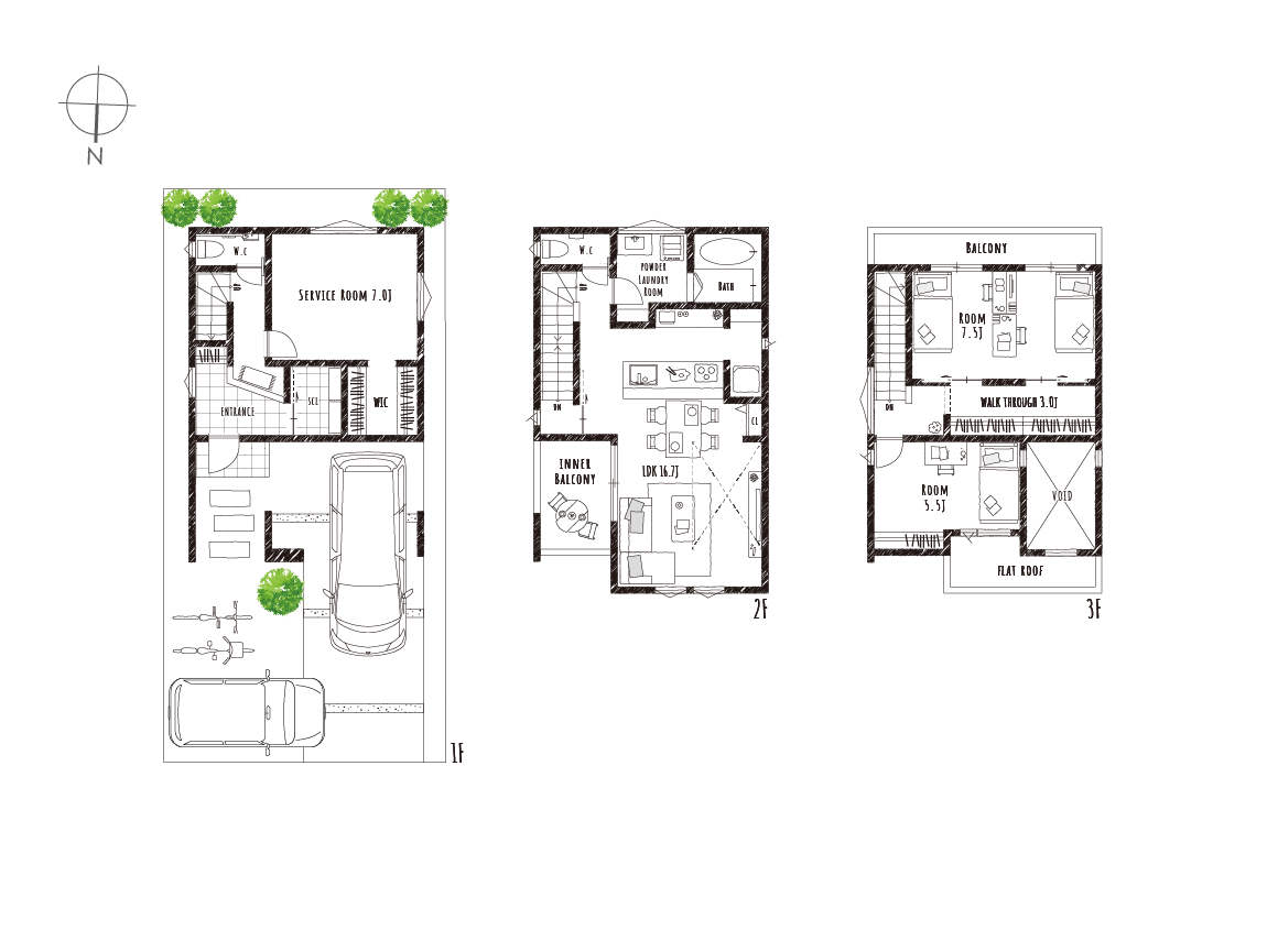
  • 心地よい時間を過ごせる吹抜けリビング

    2階に配置されたリビングは、道路側からの視線を気にせず、ゆったりとくつろげるプライベート空間です。インナーバルコニーに面した二面開口の明るい室内は、吹抜けにより視線が縦方向にも広がり、いっそうの開放感を生み出します。家族が自然と集まり、心地よく過ごせる快適なリビングです。

  • 家族との時間を大切にできる対面キッチン

    家族との会話を楽しみながら料理ができる、コミュニケーションを大切にした対面キッチン。リビングやダイニングにいるご家族の様子を見守れるので、小さなお子さまがいても安心です。隣には冷蔵庫をスッキリ収納できるパントリーもあり、使いやすさと居心地の良さを兼ね備えたキッチンです。

  • 毎日の作業を快適にする快適な家事動線

    キッチンのすぐ後ろに、洗面・脱衣室、バスルームを配置しました。水廻りを1ヶ所にまとめることで、家事動線がスムーズになり、日常の家事効率がアップします。また、バルコニーも同じフロアにあるので、洗濯物を干す際の移動距離が短く、洗濯かごを持って階段を上り下りする必要がありません。

  • 機能性に優れた広々とした玄関ホール

    玄関を入って右側には、扉付きのシューズクローゼットがあります。ガーデニング用品やアウトドアグッズなどをしっかりと収納できるので、玄関廻りをいつもスッキリと保てます。左奥には、コートなどを掛けておけるハンガーパイプも設置されており、ちょっとしたお出かけの際にも便利です。

  • みんなで使える便利なウォークスルークローゼット

    3階の廊下スペースを活用し、使い勝手の良いウォークスルークローゼットを設置しました。各部屋からのアクセスがしやすく、家族みんなが気軽に使える便利な収納スペースとなっています。洋服はもちろん、日常的に使うちょっとした生活用品まで、さまざまなアイテムを整理して収納できます。

PLANNING

LOCATION & ACCESS

〒660-0073 尼崎市菜切山町16-1付近