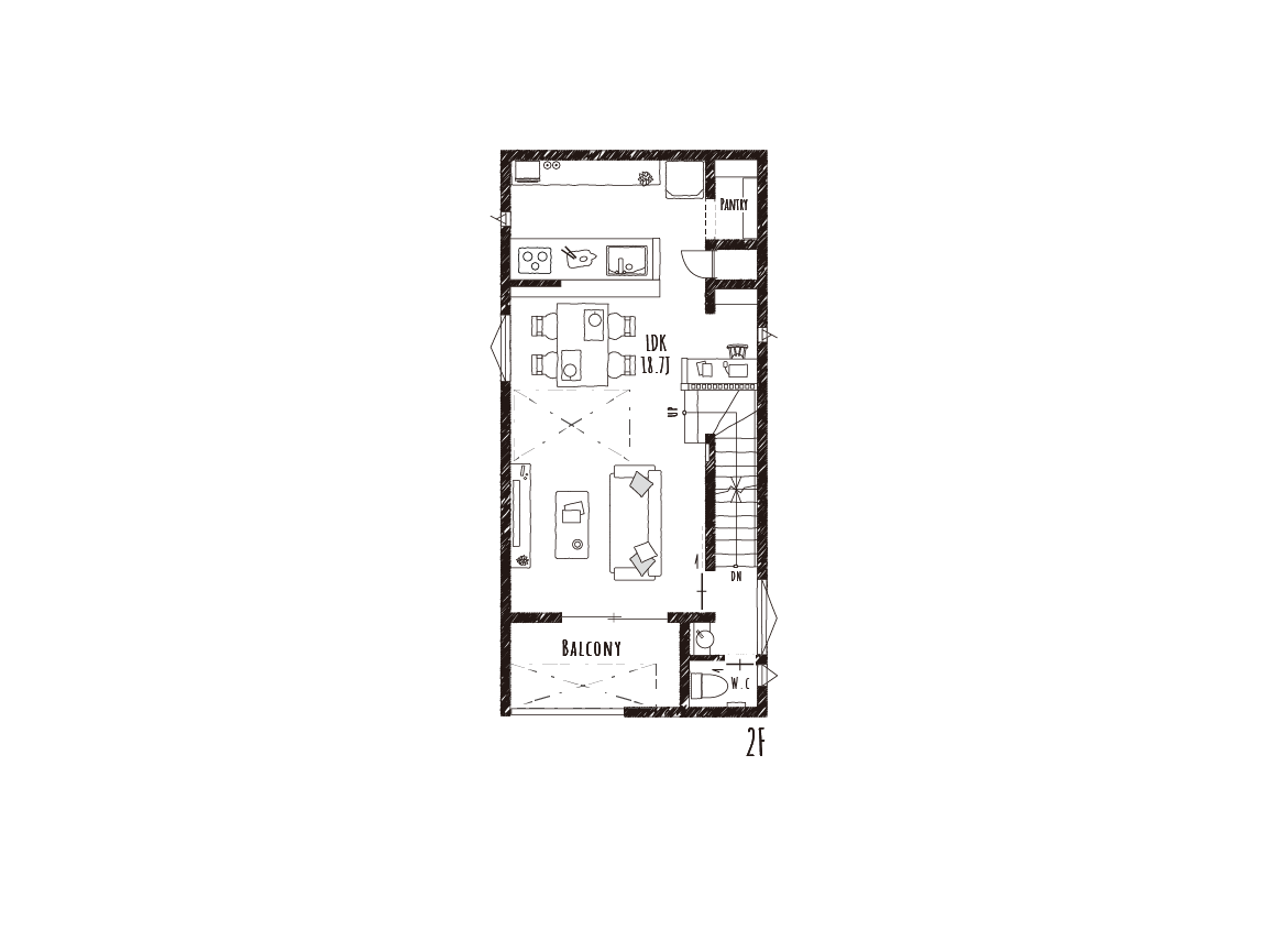
LDKの真ん中に開放的な吹抜けがあるお家

2階のLDKの中心にある吹抜けが、リビングやダイニングに心地よい開放感をもたらす、明るくのびやかなお家です。南向きのバルコニーからはたっぷりの陽光がリビングへと差し込み、自然と家族が集まる、あたたかな空間に。3階へと続く吹抜けを通して、別のフロアにいる家族の気配も感じられ、いつでもつながりを感じながら過ごせます。ダイニング横には、ルーバーと腰壁でゆるやかに仕切られたワークスペースを設け、仕事や勉強、家事の合間のひと息にもぴったり。奥の対面キッチンからは家族の様子を見守りながらお料理ができ、すぐ横のパントリーには食材や日用品をすっきりと収納できます。心地よい光と爽やかな風、そして家族のつながりを感じながら、のびのびと暮らせる住まいです。

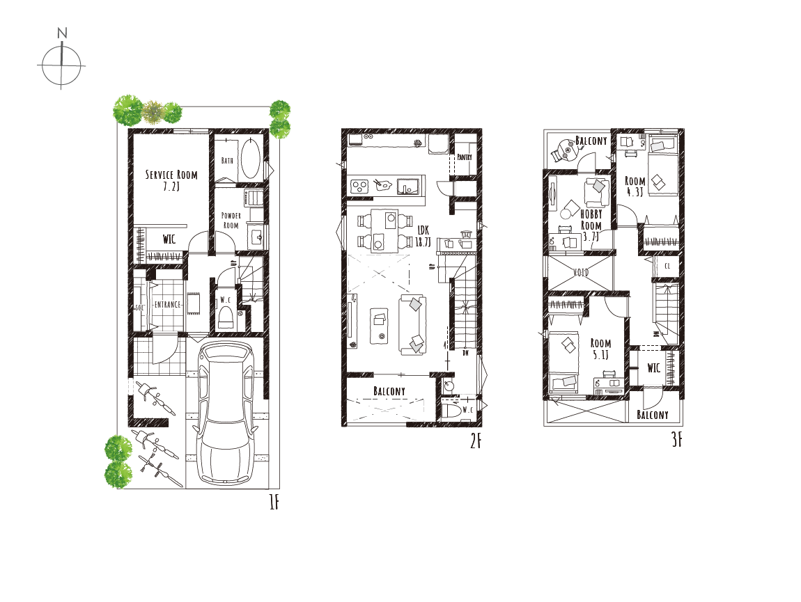
WORKS
東大阪市

LIVONE 大蓮南2丁目Ⅳ6号地

    • 所在地
      東大阪市
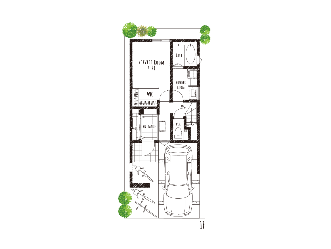
    • 間取り
      2LDK+S
    • 敷地面積
      70.01m²(21.17坪)
    • 延床面積
      104.50m²(31.61坪)
  • 吹抜けから心地よい光が降りそそぐリビング

    リビングとダイニングの間に吹抜けを設け、明るくゆとりある空間を実現しました。3階ホールへもつながっているので、上の階にいるお子さまへも声が届きやすく、家族のコミュニケーションが自然に生まれます。南向きのバルコニーから届く光が空間いっぱいに広がり、あたたかな時間をつくります。
    ※画像はイメージパースです。

  • ほどよく集中できるワークスペース

    ダイニング横のワークスペースは、家族の気配を感じながらも、自分の作業に集中できる場所です。ルーバーと腰壁でやわらかく仕切られているため、開放感がありつつも落ち着いて過ごせます。背面には可動棚付きの収納を備えており、スッキリ片付けられる暮らしにちょうどいいスペースです。
    ※画像はイメージパースです。

  • 家族を見守りながら料理ができる対面キッチン

    2階のいちばん奥にあるキッチンは、来客から手元が見えない落ち着いた場所です。LDK全体を見渡せるので、料理をしながら家族の様子を見守ることができます。背面にはカップボード、隣にはパントリーを設けているので、日用品や食材もたっぷり収納できて、毎日の支度も片付けもスムーズです。
    ※画像はイメージパースです。

  • 暮らしに広がりをもたらすホビールーム

    家族みんなで多彩な用途に使えるホビールームです。お子さまたちの遊び場にしたり、ゆったりと本を読んだり、好きなことに集中できる場所としてもぴったりです。また、在宅ワークに集中できる書斎としても活躍します。気分や暮らし方に合わせて使い方を変えられる、心にゆとりをもたらす空間です。
    ※画像はイメージパースです。

  • 家族みんなで使えるウォークインクローゼット

    3階の廊下部分に、家族みんなで強要できるウォークインクローゼットを設けました。洗濯した衣類をここにまとめて収納すれば、各部屋に持っていく手間が省け、家事の時短にもつながります。普段よく使う服はそれぞれのお部屋に、シーズンオフの服はこのクローゼットにと、便利に使い分けができます。
    ※画像は弊社施工例です。

  • 機能性とデザイン性を兼ね備えた玄関

    玄関には、天井まであるシューズクローゼットとカウンタータイプの収納を設けました。靴はもちろん、外で使う小物もしっかり収納できます。カウンター上にはお気に入りの雑貨や写真を飾って自分らしい空間に。上部のペンダントライトがやわらかく照らし、家族やゲストをあたたかく迎えます。
    ※画像はイメージパースです。

PLANNING

LOCATION & ACCESS

〒577-0825 東大阪市大蓮南2丁目22-17付近