空へとつながるアウトドアリビングのあるお家

青空の下でゆったりとした時間を過ごせる、アウトドアリビングのあるお家です。3階へ上がると、ホールからそのまま出入りできるルーフバルコニーがあり、休日のバーベキューや子どもたちのプール遊びなど、家族や友人と楽しめる特別な空間になっています。また、3階のホールは吹抜けを通じて2階のダイニングとつながり、別のフロアにいても家族の存在を感じられます。2階のダイニングは、のびやかな吹抜けが広がり、自然と会話が弾む心地よい場所。隣にある南向きのリビングは、やわらかな陽射しが差し込む穏やかな空間で、ソファでのんびりくつろいだり、家族団らんの時間を楽しんだりと、みんなが集まる暮らしの中心となります。光と風に癒されながら、家族と一緒に穏やかな時間を重ねていける住まいです。

WORKS
東大阪市

LIVONE 大蓮南2丁目Ⅳ11号地

    • 所在地

      東大阪市
    • 間取り

      2LDK+S
    • 敷地面積

      70.00m²(21.17坪)
    • 延床面積

      102.84m²(31.10坪)
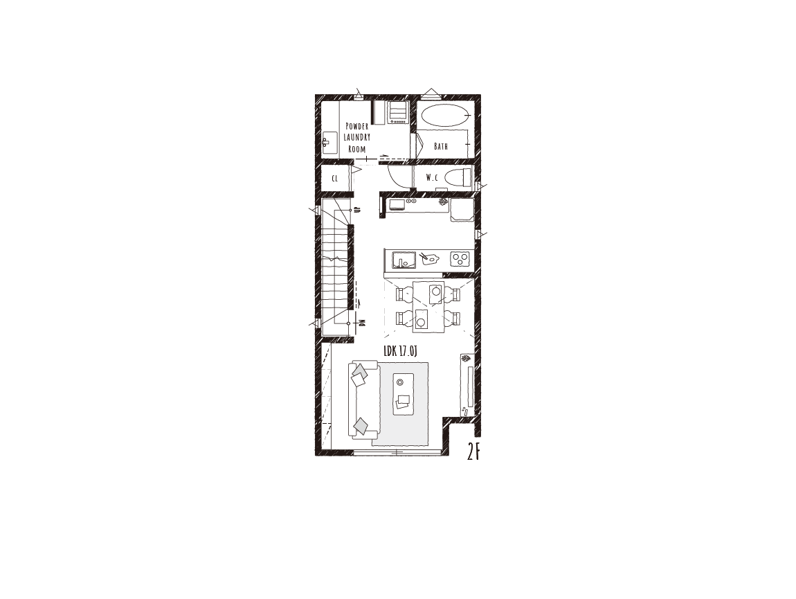
  • 心地よい光と笑顔に包まれるリビング

    南向きの大きな窓から、やわらかな日ざしがたっぷり入るリビング。ソファの後ろには壁一面の収納棚を設けました。お気に入りの本や写真、小物を飾れば、自分らしい雰囲気を演出できます。家族の思い出やお気に入りが並んだ場所は、自然とみんなが集まり、会話や笑顔があふれるリビングになります。

  • 家族とのつながりを感じるダイニング・キッチン

    ダイニング上部には大きな吹抜けが広がり、のびやかな開放感に包まれます。吹抜けを通して3階ともつながっているので、別のフロアにいても家族の気配を身近に感じられます。対面キッチンからはリビングやダイニングを見渡せるので、お料理をしながらでも家族の様子を見守ることができます。

  • 使い勝手を考えた広々とした洗面・脱衣室

    約3帖のゆとりある洗面・脱衣室には、幅1650mmのワイドなカウンターを備えた洗面台があり、2人並んでも快適に使えます。室内物干しを設置しているので、雨の日や夜でも安心して洗濯できるのがうれしいポイント。洗濯機の横には可動棚があり、洗剤のストックなどもスッキリ収納できます。

  • 空の下でくつろぐルーフバルコニー

    3階ホールから出入りできるルーフバルコニーは、空へとひらけた開放感に包まれる特別な場所です。壁を少し高めに設けているので、外からの視線を気にせずリラックスでき、休日にはバーベキューやお子さまと一緒にプール遊びを楽しんだりと、ちょっとしたアウトドア気分を満喫できる空間です。

  • 動線と収納力に優れた玄関ホール

    玄関ホールにあるセカンド洗面では、帰ってすぐに手洗いやうがいができるので、自然ときれいな習慣が身につきます。さらに、家族用の出入り口にもなる土間続きのシューズクローゼットを備えており、ガーデニング用品やアウトドアグッズなど、少し土汚れが気になるものの収納にもとても便利です。

PLANNING

LOCATION & ACCESS

〒577-0825 東大阪市大蓮南2丁目22-17付近