充実の収納力と回遊動線が魅力のお家

キッチンを中心に、家事も暮らしもスムーズにこなせるお家です。キッチンはパントリーから洗面・脱衣室へつながり、ダイニングを回ってキッチンへ戻れる回遊動線になっています。お料理の合間に洗濯をしたり、帰宅後すぐに手を洗って買い物したものを片づけたりと、家事を効率よくこなせる工夫がいっぱい。キッチン横にはダイニングがあり、家族との会話を楽しみながら配膳や後片づけもスムーズです。パントリーには食材のストックや日用品をたっぷり収納でき、生活感を見せずにスッキリ片づけられます。ダイニングの隣にはリビングが広がり、家族が自然と集まるあたたかな空間に。上部は折り上げ天井で、木目調のクロスをあしらった見せ梁がやさしく空間を引き立てます。開放感とぬくもりに包まれる住まいです。

WORKS
東大阪市

LIVONE 大蓮南2丁目Ⅳ16号地

    • 所在地
      東大阪市
    • 間取り
      3LDK+S
    • 敷地面積
      70.00m²(21.17坪)
    • 延床面積
      104.34m²(31.56坪)
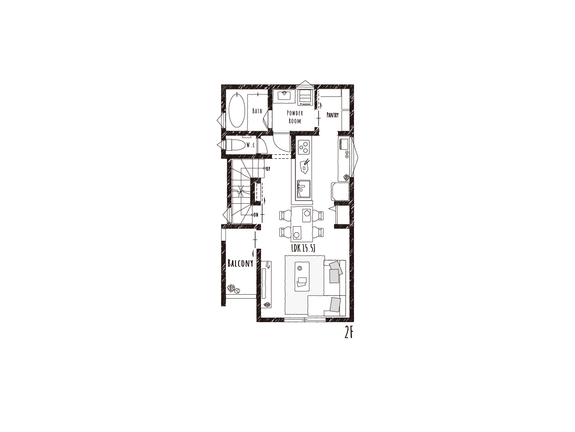
  • キッチンを中心にぐるっと回れる快適家事動線

    キッチンを中心に、ダイニングやパントリー・洗面脱衣室へとつながる回遊動線。ダイニングが横並びだから、お料理の配膳や後片づけもスムーズ。買い物から帰ったときは、洗面室を通ってパントリーへ入れるので、買ってきたものをしまうのもラクラク。毎日の動きを考え、使いやすさを追求しました。
    ※画像はイメージパースです。

  • やわらかな光と家族の笑顔が集まるリビング

    折り上げ天井が空間に広がりをもたらすリビング。木目調のクロスをあしらった見せ梁がアクセントとなり、間接照明のやわらかな光が空間を包み込む、ぬくもりのある雰囲気に仕上げています。またリビング階段を採用することで、家族が自然に顔を合わせ、豊かなコミュニケーションが育まれます。
    ※画像はイメージパースです。

  • スキップフロアで広がりを感じる主寝室

    スキップフロアと勾配天井で、ひとつの空間に立体的な広がりをもたせた主寝室。段差を活かしたベッドスペースは、ホテルのような上質な雰囲気を演出します。造作カウンターはテレワークや就寝前のスキンケアにも使いやすく、その向かいには大容量のウォークインクローゼットを設けました。
    ※画像はイメージパースです。

  • 家族みんなで使えるウォークインクローゼット

    3階の階段を上がってすぐのところにあるウォークインクローゼット。家族みんなが使いやすい場所にあるので、乾いた洗濯物をまとめてしまえば、各部屋へ運ぶ手間がかかりません。オンシーズンの服は各部屋に、オフシーズンの服はここに収納しておくことで、いつもスッキリとした空間を保てます。
    ※画像は弊社施工例です。

  • 家族もお客さまも気持ちよく迎える2WAY玄関

    来客用と家族用に分けられる2WAY玄関。家族用の玄関はシューズクローゼットを兼ねていて、家族みんなの靴やアウトドア用品などをたっぷり収納できます。扉付きなので、急な来客時もサッと閉めるだけで生活感を隠せます。来客はいつでも気持ちよく迎えられ、家族は毎日を快適に過ごせます。
    ※画像は弊社施工例です。

PLANNING

LOCATION & ACCESS

〒577-0825 東大阪市大蓮南2丁目22-17付近