家事スペースがうれしい、フルフラットキッチンが中心の家

フルフラットキッチンを中心に、家族の時間がやさしくつながるお家です。キッチンからリビングに向けて自然と視線が広がる設計で、LDK全体を明るく開放的に見せてくれます。料理や片付けをしながらでも空間に一体感があり、毎日の家事もゆったりと行えます。背面収納は扉付きで、冷蔵庫まできれいに収まる仕様。生活感をおさえ、いつでも美しいキッチン空間を保てます。キッチンのすぐ隣には、可動棚とデスクを備えたユーティリティスペースをご用意。食品のストック管理や家事の合間の作業、ちょっとしたワークスペースとしても使え、暮らしに合わせて重宝します。キッチンからLDK全体を見渡せるため、料理中も家族の気配を感じられ、家族のコミュニケーションを豊かに育む住まいです。

WORKS
尼崎市

LIVONE 菜切山町7号地

    • 所在地

      尼崎市
    • 間取り

      3LDK+S
    • 敷地面積

      91.81m²(27.77坪)
    • 延床面積

      108.05m²(32.68坪)
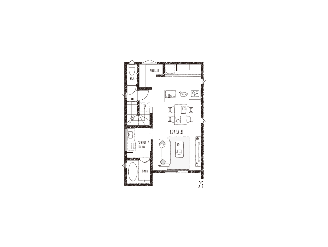
  • 機能的で美しいスッキリ整うキッチン空間

    開放的で作業スペースを広く確保したフルフラットキッチンを採用しました。扉付きの背面収納は冷蔵庫も隠せる、生活感を抑えたスタイリッシュな仕様で、見た目はいつも整った印象に。隣のユーティリティスペースにはデスクと可動棚を設置していて、パントリー兼ワークスペースとして活用できます。
    ※画像はイメージパースのため、実際とは異なる場合があります。

  • 家族とつながるコミュニケーションリビング

    リビングからキッチンまで一直線につながる縦型LDKです。料理をする家族の気配を感じながら過ごせるため、声もかけやすく、自然と会話が生まれます。リビング階段を採用しているので、「いってきます」「おかえり」といった何気ないあいさつをきっかけに、家族のコミュニケーションが育まれます。
    ※画像はイメージパースのため、実際とは異なる場合があります。

  • 家族で使いやすいプライバシーに配慮した玄関

    L字型の上り框を採用した、家族が同時に使いやすい空間です。お子さまが並んで靴の脱ぎ履きができるため、朝の支度や帰宅時も動きがスムーズです。また、玄関から室内が直接見えないクランクイン設計とし、ドアを開けた際に生活空間が視線に入りにくく、来客時も安心してお使いいただけます。
    ※画像は弊社施工例です。

  • 家族のカタチに合わせて変更できる洋室

    ゆとりある広さの洋室は、将来の暮らしに柔軟に対応できる空間です。お子さまたちが小さい間は、のびのび遊べる一つの大きな部屋として使えます。成長に合わせて個室が必要になった際には、間仕切りを設けて二部屋に分けることが可能です。子ども部屋はもちろん、趣味や在宅ワークにも対応します。
    ※画像は弊社施工例です。

  • 家族の暮らしに寄り添うインナーバルコニー

    屋根のあるインナーバルコニーは、急な雨でも洗濯物をあわてて取り込む必要がありません。3階の廊下から直接出入りできるため、居室を通らずに使えて動線もスッキリし、毎日の家事がはかどります。床にはホワイトヒッコリーのバルコニータイルを敷き、明るく清潔感のある雰囲気に仕上げました。
    ※画像は弊社施工例です。

  • 家族で使えるファミリークローゼット

    3階の廊下にあるファミリークローゼットは、洗濯物が乾いたらそのまま畳んで、まとめてしまえる収納スペース。共用スペースにあるため、各居室へ運ぶ手間が少なく、毎日の家事をやさしくサポートしてくれます。収納をまとめることで、各居室は場所を取られず、ゆったりとした空間として使えます。
    ※画像は弊社施工例です。

PLANNING

LOCATION & ACCESS

〒660-0073 尼崎市菜切山町16-1付近