心地よい開放感に包まれる、全17区画の新街区「LIVONE菜切山町」
モデルハウス公開中!続々完成予定!
【LIVONE菜切山町】
~利便性、心地よさ、憧れ。すべてがそろう新街区~
■4面接道の開放感溢れる街区■
・敷地面積27坪以上
・前面道路幅員6m以上
■地震対策◎省エネ対策◎■
・耐震等級2×制震ダンパーで安心のお家!
・断熱等級5+一次エネルギー消費量等級6の省エネ住宅!
・家中すべての水がプラチナノバブルになる「UFB DUALⓇ」を全邸に標準採用!
■子育て世帯にやさしいロケーション■
・JR神戸線・阪神本線の2路線利用可能!
・スーパーやドラッグストアも徒歩5分圏内♪
・大庄小学校まで徒歩6~7分、大庄中学校まで徒歩4~5分♪
■LIVONE菜切山町、魅力たっぷりのロケーションを動画でご紹介!■
※掲載の徒歩分数は80m、自転車分数は250m、
車分数は400mを1分として算出した概算時間です。
現地周辺はフラットで生活しやすい住環境で、小・中学校やスーパー、ドラッグストアが身近にそろう嬉しいロケーションです。最寄りの阪神「尼崎センタープール前」駅へは徒歩8~9分、JR「立花」駅も利用可能で通勤や通学も快適です。国道2号線や国道43号線も近く、ららぽーと甲子園やコストコホールセール尼崎倉庫店など休日のお出かけスポットへのアクセスも良好です。


ご予約いただくと、事前にスタッフがスケジュールを調整し、ご案内させていただきます。お待ちいただくこともございませんので、ご予約ください。もし都合が悪くなれば、前日までにお伝えいただければ、代わりの日程を調整させていただきます。

近隣の分譲物件情報や家づくりの資料などをご予約時にお渡しさせていただきます。モデルハウスを見学いただいた後、ご自宅でじっくりと家づくりについてお話をいただくことができます。

ご来場予約をいただいた方に、QUOカードを進呈しています。モデルハウス見学後に、使っていただいてもOK。
※ご家族様1回限りとなります。またモデルハウス見学アンケートにご記入いただくことが条件となります。
| 物件種別 | 新築一戸建て(ご見学・入居可能) |
|---|---|
| 所在地 | 兵庫県尼崎市菜切山町16番1号付近 |
| 主要交通 | 阪神本線「尼崎センタープール前」駅徒歩8~9分(630~710m) |
| その他交通 | JR神戸線「立花」駅自転車7~8分(1,700~1,770m) |
| 総区画 | 17区画 |
| 販売区画数 | 7区画 |
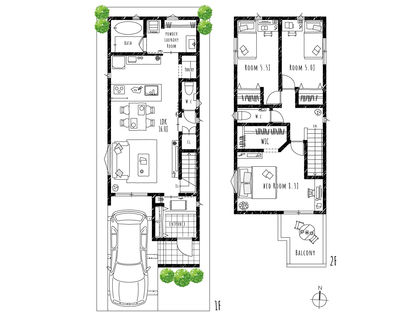
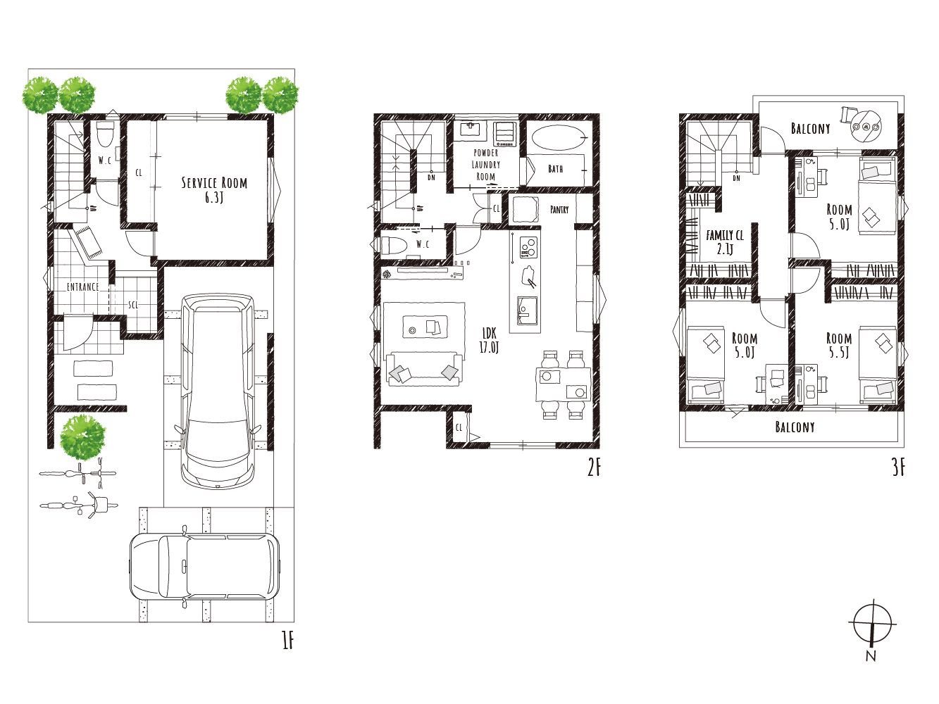
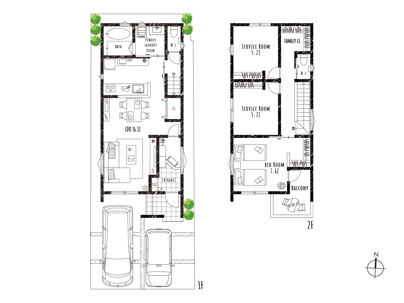
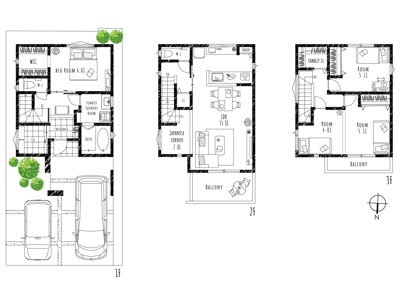
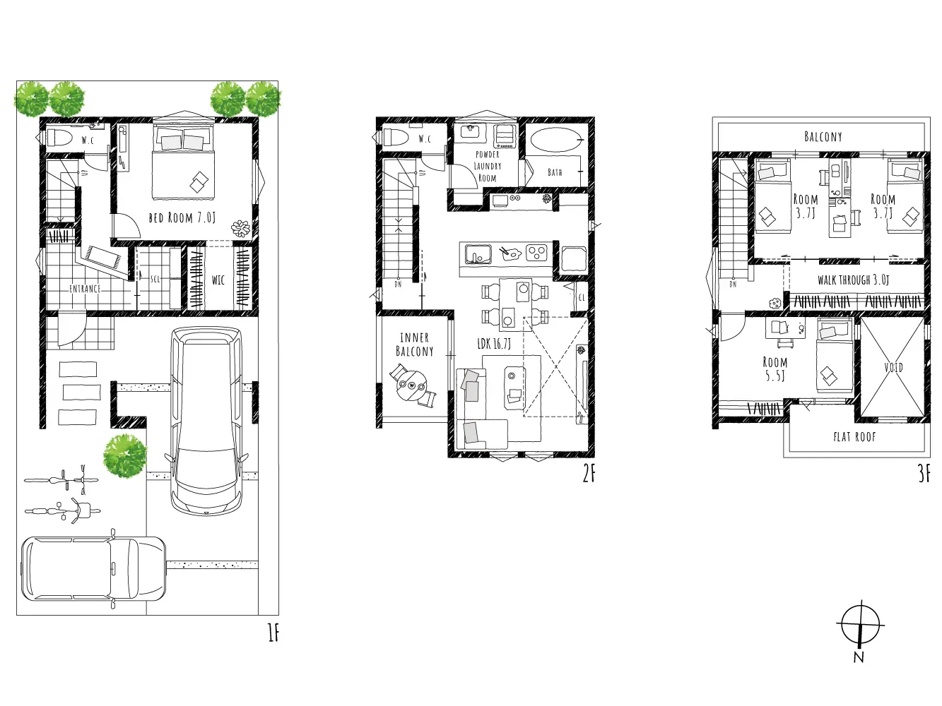
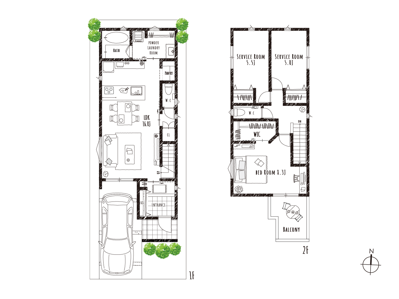
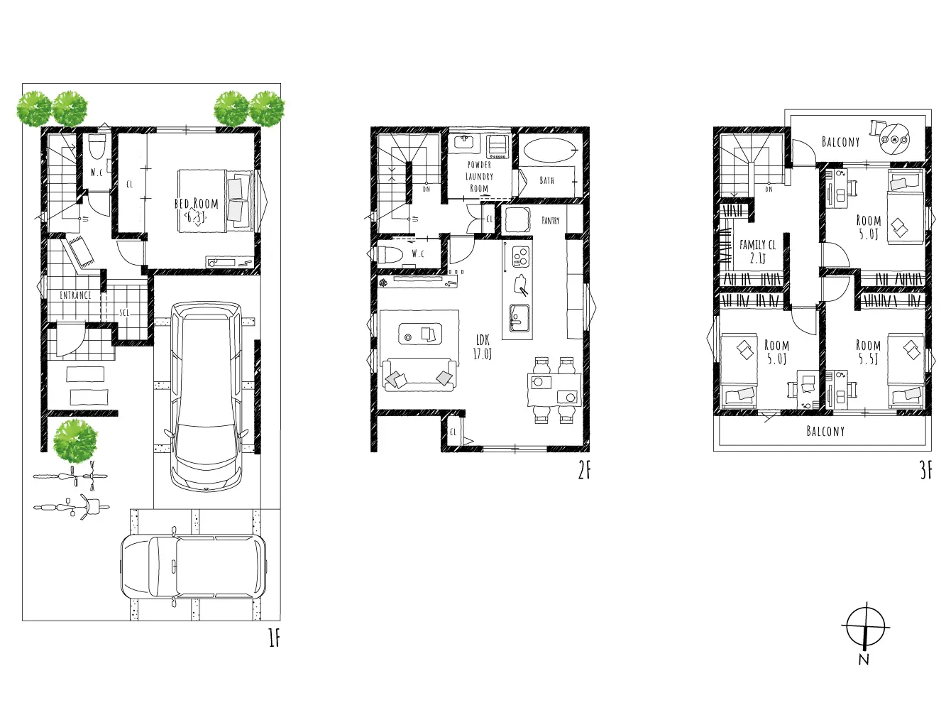
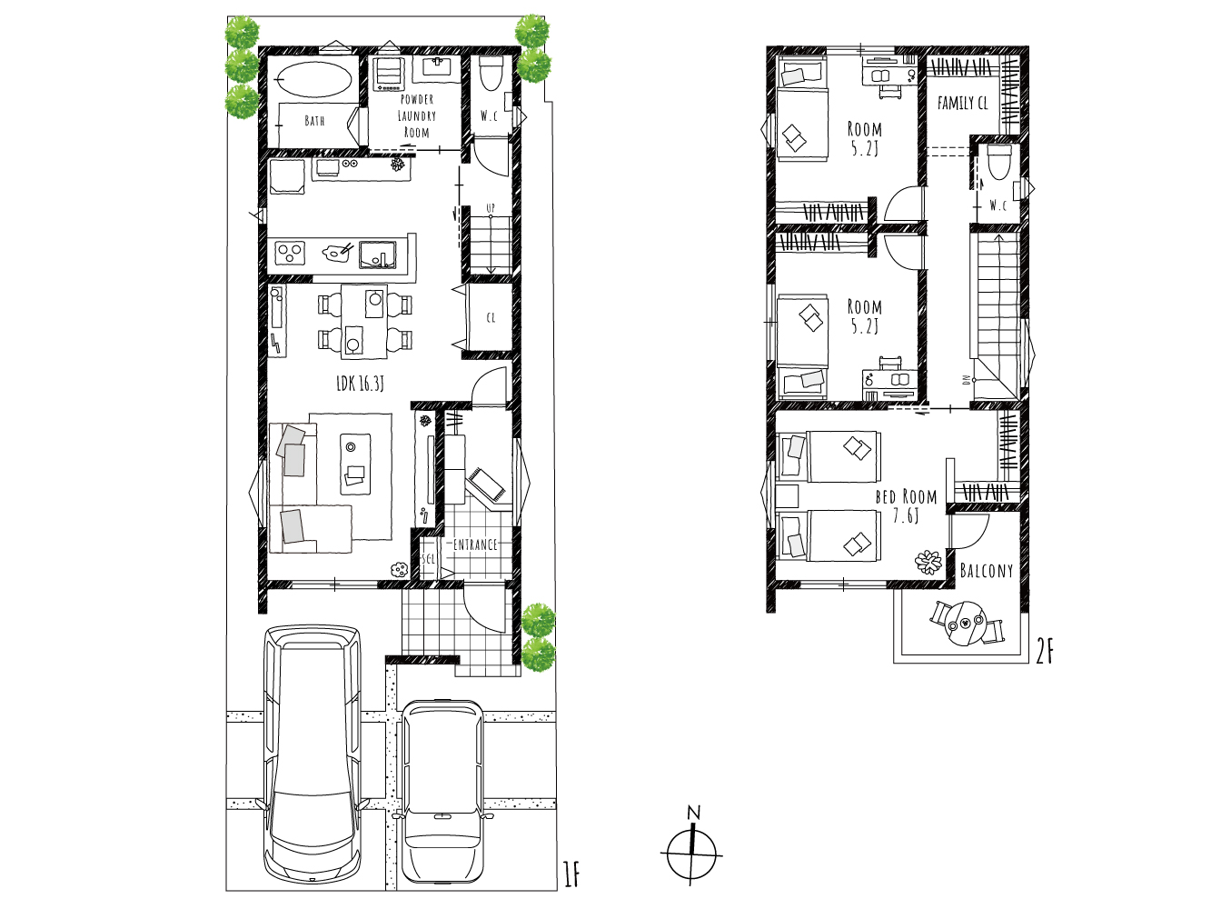
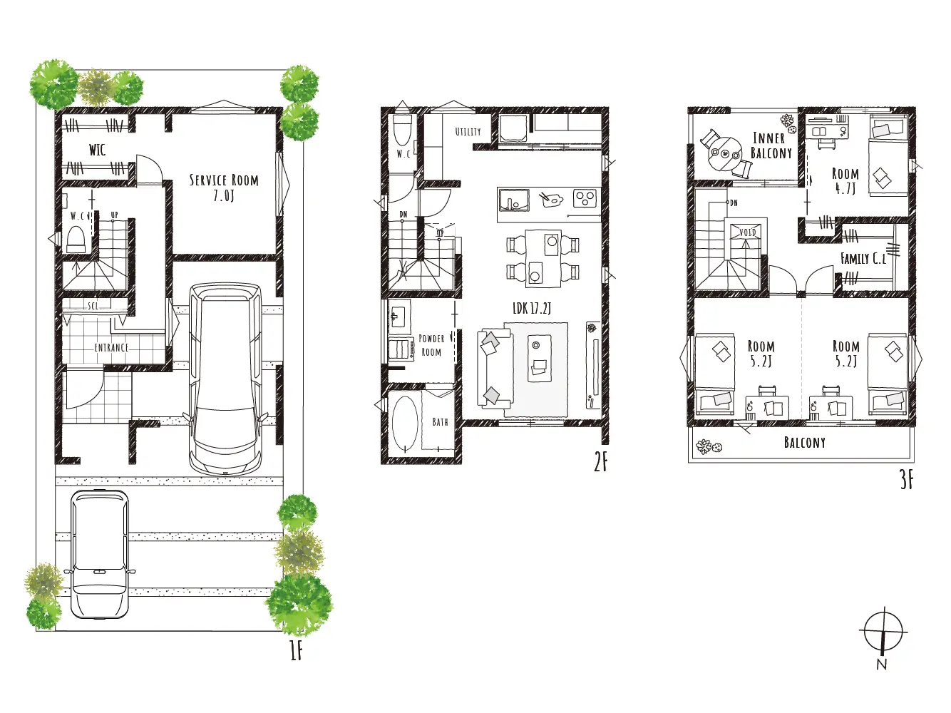
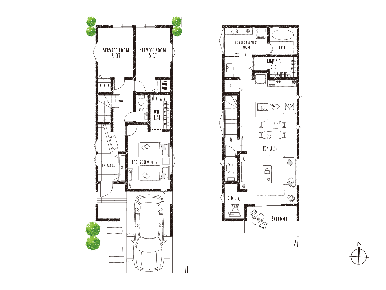
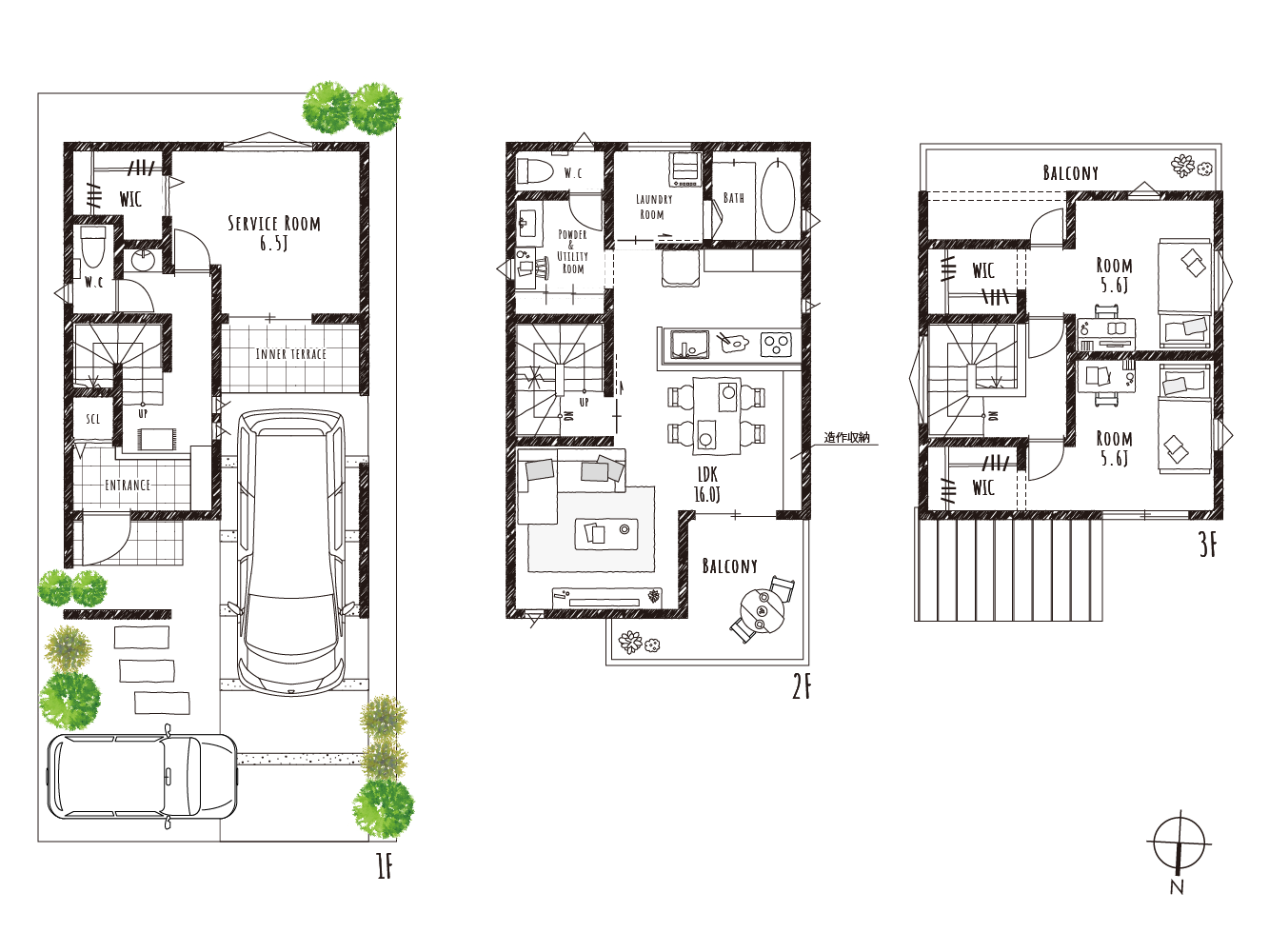
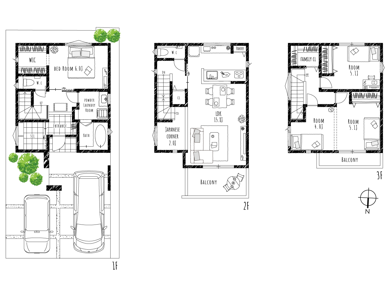
| 敷地面積 | 3号地:92.65㎡、4号地:91.20㎡、5号地:91.40㎡、7号地:91.81㎡、8号地:93.27㎡、9号地:94.53㎡、10号地:94.51㎡ |
| 延床面積 | 3号地:99.35㎡、4号地:103.50㎡、5号地:100.19㎡、7号地:102.25㎡、8号地:98.95㎡、9号地:97.96㎡、10号地:101.85㎡ |
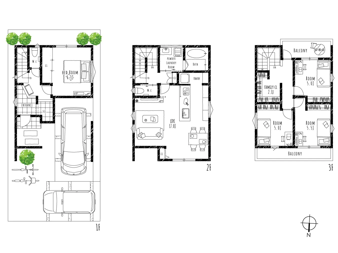
| 間取り | 2LDK+S〜3LDK+S |
|---|---|
| 構造・工法 | 木造2・3階建て |
| 駐車場 | 1台~2台 |
| 建ぺい率 | 60% |
| 容積率 | 200% |
| 地目 | 宅地/平坦 |
| 用途地域 | 第一種中高層住居専用地域 |
| 道路 | 区画図をご参照ください |
| 設備仕様 | 公営水道、本下水、都市ガス |
| 引渡時期 | 3号地:即引渡可、4号地:即引渡可、5号地:即引渡可、7号地:2026年3月上旬、 8号地:即引渡可、9号地:即引渡可、10号地:即引渡可 |
| 完成時期 | 3号地:2025年9月完成済、4号地:2025年9月完成済、5号地:2025年11月完成済、7号地:2026年3月上旬、8号地:2026年1月完成済、9号地:2025年9月完成済、10号地:2025年12月完成済 |
| 権利形態 | 所有権 |
| 取引形態 | 売主 |
| 建築確認番号 | 3号地:第HK24-0730号(2025年3月11日付)、4号地:第HK24-0731号(2025年3月11日付)、5号地:第HK25-0065号(2025年5月13日付)、7号地:第HK25-0484号(2025年11月13日付)、8号地:第HK25-0147号(2025年6月13日付)、9号地:第HK24-0790号(2025年3月31日付)、10号地:第HK24-0790号(2025年3月31日付) |
| その他の制限 | 準防火地域、第2種高度地区 |
| 情報公開日 | 2026年1月22日 |
| 次回更新予定日 | 2026年2月5日 |