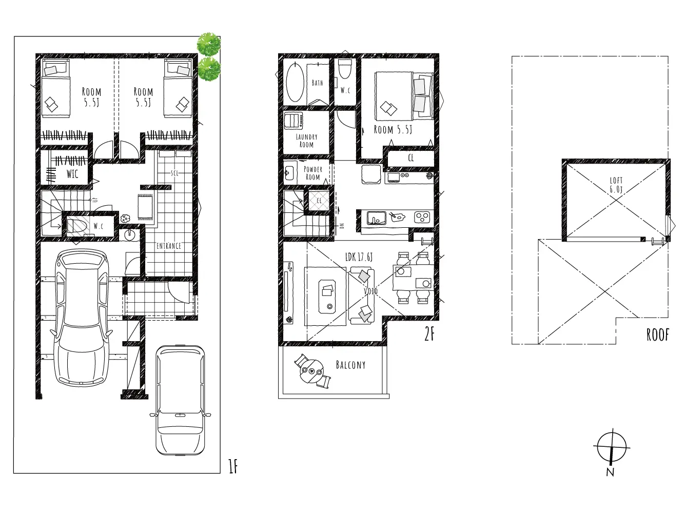
土地約28坪で2階建て×駐車2台可!
自由設計用地!小学校まで徒歩6分♪
安心の定期点検10年間!
【LIVONE西難波町3丁目】
~設計士とつくる夢の詰まったお家~
■明るくゆとりのある住まい■
・広い土地や間口を活かした吹抜けや駐車2台など様々なプランが可能♪
・周辺に高い建物がないので光をたくさん取り込めます!
・前面道路は約7.1mで広々!
■地震対策◎省エネ対策◎■
・耐震等級2×制震ダンパーで安心のお家
・吹付断熱で省エネ・静か・健康的な生活環境を実現
■家族みんなが嬉しい立地■
・阪神本線「出屋敷」駅まで徒歩10分♪
・スーパーコノミヤまで徒歩4分
・難波小学校まで6分でお子さまも安心◎
・週末はあまがさきキューズモールやららぽーと甲子園などお出かけスポットも多数♪
※掲載の徒歩分数は80m、自転車分数は250m、
車分数は400mを1分として算出した概算時間です。
スーパーやドラッグストア、コンビニや小学校などが徒歩10分圏内の家族みんなに嬉しい立地です!休日は、あまがさきキューズモールやららぽーと甲子園などお出かけスポットもたくさんございます!


ご予約いただくと、事前にスタッフがスケジュールを調整し、ご案内させていただきます。お待ちいただくこともございませんので、ご予約ください。もし都合が悪くなれば、前日までにお伝えいただければ、代わりの日程を調整させていただきます。

近隣の分譲物件情報や家づくりの資料などをご予約時にお渡しさせていただきます。モデルハウスを見学いただいた後、ご自宅でじっくりと家づくりについてお話をいただくことができます。

ご来場予約をいただいた方に、QUOカードを進呈しています。モデルハウス見学後に、使っていただいてもOK。
※ご家族様1回限りとなります。またモデルハウス見学アンケートにご記入いただくことが条件となります。
| 物件種別 | 注文住宅用地 |
|---|---|
| 所在地 | 尼崎市西難波町3丁目28番2号 付近 |
| 主要交通 | 阪神本線「出屋敷」駅 徒歩10分 |
| その他交通 | JR神戸線「立花」駅 自転車8分(1900m) 阪神バス「昭和通8丁目」停 徒歩4分、JR神戸線「立花」駅 バス14分 |
| 全体区画数 | 1区画 |
| 販売区画数 | 1区画 |
| 敷地面積 | 94.51㎡(28.58坪) |
| 建ぺい率 | 60% |
|---|---|
| 容積率 | 200% |
| 地目 | 宅地/平坦 |
| 用途地域 | 第一種中高層住居専用地域 |
| 道路 | 区画図をご参照ください |
| 設備仕様 | 公営水道、本下水、都市ガス |
| 引渡時期 | 相談 |
| 権利形態 | 所有権 |
| 取引形態 | 売主 |
| 建築条件付き | 本物件は建築条件付売土地です。本物件の売主と買主は、土地の売買契約の締結後2ヶ月以内に建物の工事請負契約を締結する。この期日までに両者が工事請負契約の内容に合意できないときには、本契約は白紙解約することとし、売主が買主より受領済みの金銭は速やかに返還するものとする。 |
| その他の制限 | 準防火地域・第2種高度地区 |
| 情報公開日 | 2025年12月5日 |
| 次回更新予定日 | 2025年12月19日 |