近鉄南大阪線「北田辺」駅徒歩1分の立地♪
ペット飼育可能♪(但し規約による制限あり)
住環境と駅近ライフを兼ね備えた場所になります♪
オートロック・宅配ボックス完備。
駐車場は平面、立体駐車場があり、ミニバンも駐車可能です。
※掲載の徒歩分数は80m、自転車分数は250m、
車分数は400mを1分として算出した概算時間です。
駅から徒歩1分、駅近の物件が出ました!駅前には商店街もあり、生活至便に優れた住みやすい環境です♪築6年で設備も新しく快適にお過ごしできます♪


ご予約いただくと、事前にスタッフがスケジュールを調整し、ご案内させていただきます。お待ちいただくこともございませんので、ご予約ください。もし都合が悪くなれば、前日までにお伝えいただければ、代わりの日程を調整させていただきます。

近隣の分譲物件情報や家づくりの資料などをご予約時にお渡しさせていただきます。モデルハウスを見学いただいた後、ご自宅でじっくりと家づくりについてお話をいただくことができます。

ご来場予約をいただいた方に、QUOカードを進呈しています。モデルハウス見学後に、使っていただいてもOK。
※ご家族様1回限りとなります。またモデルハウス見学アンケートにご記入いただくことが条件となります。
| 物件種別 | 中古マンション |
|---|---|
| 所在地 | 大阪市東住吉区駒川1丁目9-15 |
| 主要交通 | 近鉄南大阪線「北田辺」駅 徒歩1分 |
| その他交通 | 地下鉄谷町線「田辺」駅 徒歩11分 |
| 総区画 | 33戸 |
| 販売区画数 | 1戸 |
| 販売価格 | 3,280万円 |
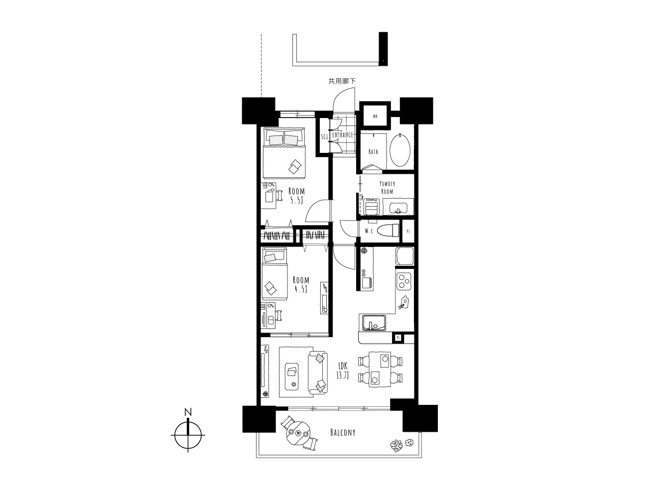
| 専有面積 | 53.59m²(16.21坪) |
| 間取り | 2LDK |
|---|---|
| 所在階 | 2階 |
| 向き | 南 |
| 構造・工法 | RC造 |
| 駐車場 | 空無 |
| 用途地域 | 第一種住居地域 |
| 設備仕様 | ■電気 ■上水道 ■下水道 ■都市ガス |
| 引渡時期 | 相談(入居中) |
| 完成時期 | 2019年1月 |
| 取引形態 | 仲介(専任) |
| 管理費 | 7,500円/月 |
| 修繕積立金 | 16,500円/月 |
| 情報公開日 | 2026年2月16日 |
| 次回更新予定日 | 2026年3月2日 |