令和2年11月建築のペット飼育可能マンション、LDK約17.9帖。
■令和2年11月築、ペット飼育可能な分譲マンション。
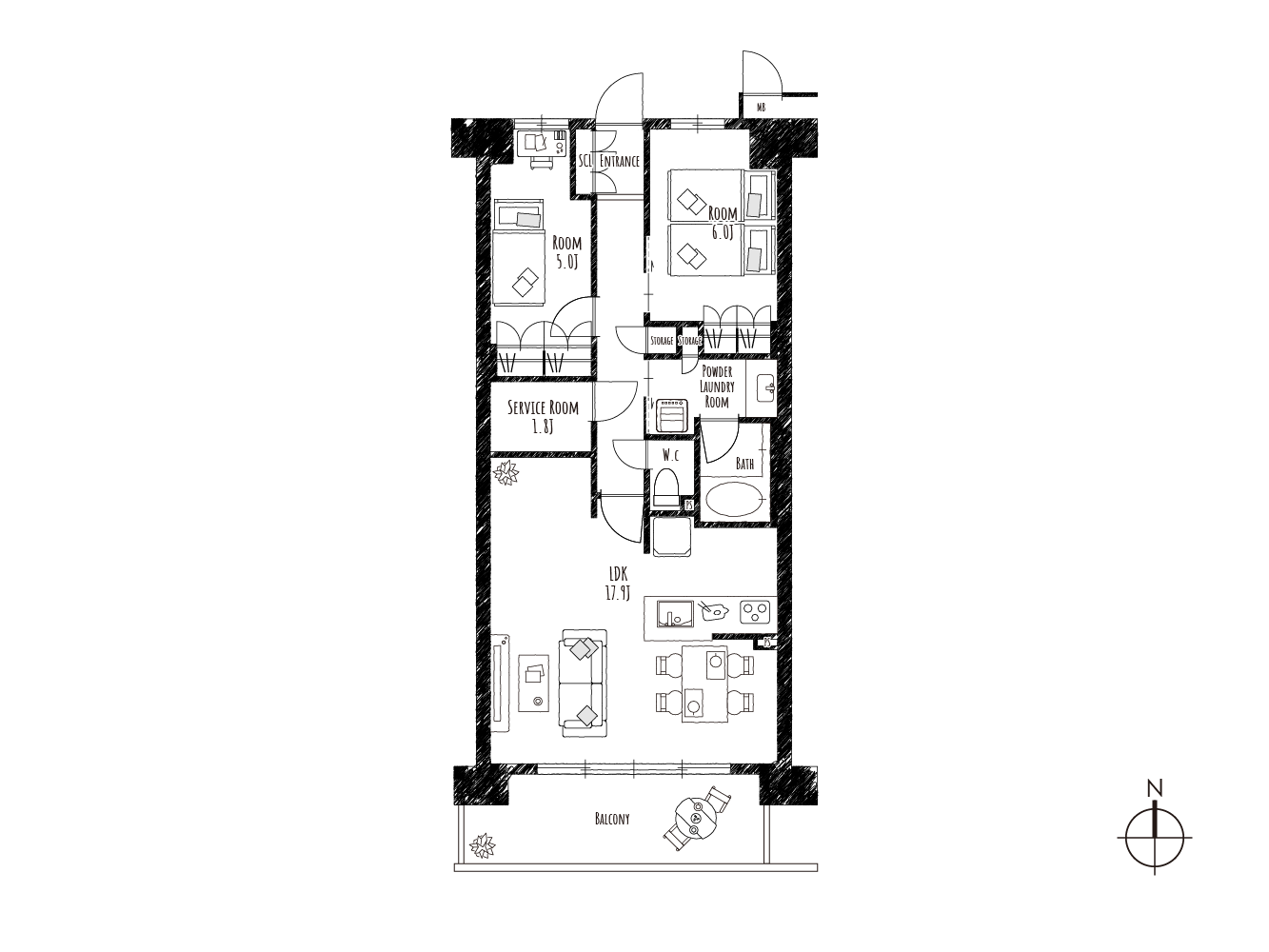
■LDK約17.9帖に加え、約1.8帖の納戸付きで収納も充実。
■リビングには温水式床暖房を2ヵ所設置し、玄関・トイレには調湿・消臭効果のあるエコカラットを採用。
■システムキッチンは浄水器一体型水栓を備え、浴室には温水暖房換気乾燥機やミストサウナも搭載。
■洋室の入口建具は引戸に変更され、空間を有効活用できます。
■共用部にはオートロックや宅配ボックス、EV充電設備、レンタルサイクル、キッズルーム、クラフトルームなど多彩な設備を備え、快適で安心の暮らしを叶える住まいです。
※掲載の徒歩分数は80m、自転車分数は250m、
車分数は400mを1分として算出した概算時間です。
築浅で設備・共用施設ともに充実したマンションです。床暖房やミストサウナ、エコカラットなど快適仕様。ペット飼育も可能で、ご家族皆さまにおすすめです。


ご予約いただくと、事前にスタッフがスケジュールを調整し、ご案内させていただきます。お待ちいただくこともございませんので、ご予約ください。もし都合が悪くなれば、前日までにお伝えいただければ、代わりの日程を調整させていただきます。

近隣の分譲物件情報や家づくりの資料などをご予約時にお渡しさせていただきます。モデルハウスを見学いただいた後、ご自宅でじっくりと家づくりについてお話をいただくことができます。

ご来場予約をいただいた方に、QUOカードを進呈しています。モデルハウス見学後に、使っていただいてもOK。
※ご家族様1回限りとなります。またモデルハウス見学アンケートにご記入いただくことが条件となります。
| 物件種別 | 中古マンション |
|---|---|
| 所在地 | 兵庫県尼崎市大庄西町4-4-20 |
| 主要交通 | 阪神本線「武庫川」駅 徒歩8分 |
| その他交通 | 阪神武庫川線「武庫川」駅 徒歩7分 阪神本線「尼崎センタープール前」駅 徒歩9分 |
| 総区画 | 125戸 |
| 販売区画数 | 1戸 |
| 販売価格 | 3,280万円 |
| 専有面積 | 68.40m²(20.69坪) |
| 間取り | 2LDK+S |
|---|---|
| 所在階 | 5階 |
| 向き | 南 |
| 構造・工法 | RC造8階建 |
| 駐車場 | 空有(11,000〜16,500円/月) |
| 用途地域 | 第一種住居地域 |
| 設備仕様 | ■電気 ■上水道 ■下水道 ■都市ガス |
| 引渡時期 | 相談(入居中) |
| 完成時期 | 2020年11月 |
| 取引形態 | 仲介(専任) |
| 管理費 | 9,090円/月 |
| 修繕積立金 | 6,160円/月 |
| その他の特記事項 | 管理形態:全部委託(通勤) |
| 情報公開日 | 2025年11月17日 |
| 次回更新予定日 | 2025年12月1日 |