明るい南向き◎全2区画の自由設計用地
最寄駅や小学校などが徒歩10分圏内♪
安心の定期点検10年間◎
【LIVONE北昭和台町】
~設計士とつくる夢の詰まったお家~
■明るく開放的な暮らし
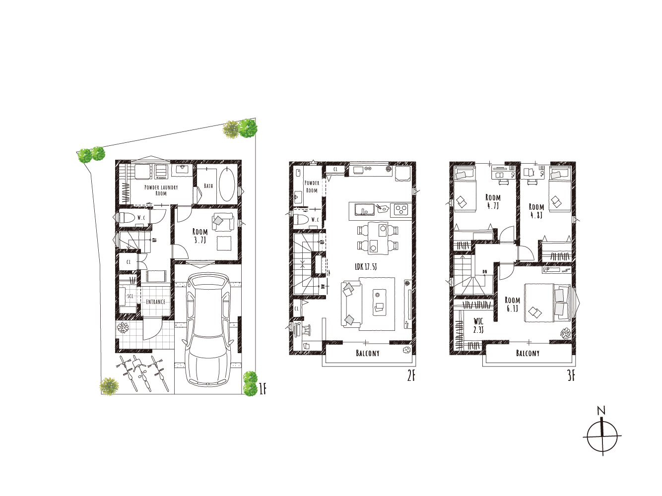
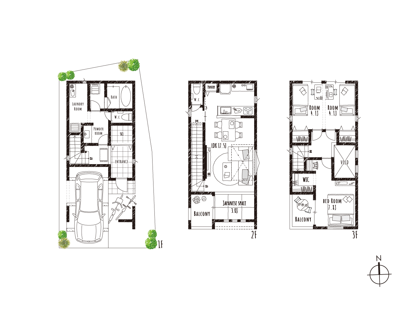
・南向きを活かした吹抜けや2階水廻りもOK!自由度が高く理想の間取りを実現
・周辺に高い建物がないので光をたくさん取り込めます!
・前面道路は交通量も少なくお子さまも安心◎
■安心の耐震・省エネ性能
・耐震等級2×制震ダンパー採用で安心安全
・吹付断熱で省エネ・静かな生活環境を実現
■暮らしやすい住環境
・阪急京都線「総持寺」駅まで徒歩10分!
・JR京都線も利用可能♪
・関西スーパーまで徒歩10~11分
・赤大路小学校まで徒歩7分
・イオンモール茨木や万博記念公園などお出かけスポットも多数♪
※掲載の徒歩分数は80m、自転車分数は250m、
車分数は400mを1分として算出した概算時間です。
阪急京都線とJR京都線の2路線が利用可能。小学校まで徒歩7分、スーパーやドラッグストアも徒歩圏内で、ご家族みんなにうれしい立地です。南向きの立地を活かした、明るいお家が建てられる全2区画の分譲地です!


ご予約いただくと、事前にスタッフがスケジュールを調整し、ご案内させていただきます。お待ちいただくこともございませんので、ご予約ください。もし都合が悪くなれば、前日までにお伝えいただければ、代わりの日程を調整させていただきます。

近隣の分譲物件情報や家づくりの資料などをご予約時にお渡しさせていただきます。モデルハウスを見学いただいた後、ご自宅でじっくりと家づくりについてお話をいただくことができます。

ご来場予約をいただいた方に、QUOカードを進呈しています。モデルハウス見学後に、使っていただいてもOK。
※ご家族様1回限りとなります。またモデルハウス見学アンケートにご記入いただくことが条件となります。
| 物件種別 | 注文住宅用地 |
|---|---|
| 所在地 | 高槻市北昭和台町20番4号付近 |
| 主要交通 | 阪急京都線「総持寺」駅 徒歩10分(750~760m) |
| その他交通 | 阪急京都線「富田」駅 徒歩12分(900~910m) JR京都線「摂津富田」駅 徒歩14分(1100~1110m) |
| 全体区画数 | 2区画 |
| 販売区画数 | 2区画 |
| 敷地面積 | 1号地/69.74㎡(21.09坪)・2号地/70.00㎡(21.17坪) |
| 建ぺい率 | 60% |
|---|---|
| 容積率 | 200% |
| 地目 | 宅地/平坦 |
| 用途地域 | 第一種中高層住居専用地域 |
| 道路 | 区画図をご参照ください |
| 設備仕様 | 公営水道、本下水、都市ガス |
| 引渡時期 | 相談 |
| 権利形態 | 所有権 |
| 取引形態 | 売主 |
| 建築条件付き | 本物件は建築条件付売土地です。本物件の売主と買主は、土地の売買契約の締結後2ヶ月以内に建物の工事請負契約を締結する。この期日までに両者が工事請負契約の内容に合意できないときには、本契約は白紙解約することとし、売主が買主より受領済みの金銭は速やかに返還するものとする。 |
| その他の制限 | 準防火地域、第二種高度地区 |
| 情報公開日 | 2025年11月17日 |
| 次回更新予定日 | 2025年12月1日 |