フリープラン用地!間取りの自由度◎
小学校まで徒歩6分で安心!
安心の定期点検10年間♪
【LIVONE鳥飼西4丁目】
~設計士とつくる夢の詰まったお家~
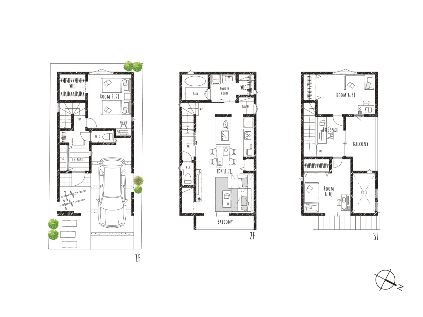
■明るく開放的な暮らし
・吹抜けや2階水廻りなど、様々なプランが可能♪
・周辺に高い建物がないので光をたくさん取り込めます!
・前面道路は交通量も少なくお子さまも安心◎
■安心の耐震・省エネ性能
・耐震等級2×制震ダンパー採用で安心安全
・吹付断熱で省エネ・静かな生活環境を実現
■暮らしやすい住環境
・大阪モノレール本線「南摂津」駅まで自転車7分(1710m)
・ラ・ムー摂津店まで自転車6分(1310m)
・周辺にはドラッグストアやコンビニもあります!
・イオンモール大日や万博記念公園などお出かけスポットも多数♪
※掲載の徒歩分数は80m、自転車分数は250m、
車分数は400mを1分として算出した概算時間です。
間取りの自由度が高い土地です。周辺にはスーパーやドラッグストア、コンビニなどがそろっており、小学校も徒歩6分なのでお子さまも安心。ご家族が生活しやすい地域ですので、ぜひお問い合わせください!


ご予約いただくと、事前にスタッフがスケジュールを調整し、ご案内させていただきます。お待ちいただくこともございませんので、ご予約ください。もし都合が悪くなれば、前日までにお伝えいただければ、代わりの日程を調整させていただきます。

近隣の分譲物件情報や家づくりの資料などをご予約時にお渡しさせていただきます。モデルハウスを見学いただいた後、ご自宅でじっくりと家づくりについてお話をいただくことができます。

ご来場予約をいただいた方に、QUOカードを進呈しています。モデルハウス見学後に、使っていただいてもOK。
※ご家族様1回限りとなります。またモデルハウス見学アンケートにご記入いただくことが条件となります。
| 物件種別 | 注文住宅用地 |
|---|---|
| 所在地 | 摂津市鳥飼西4丁目13番5号 付近 |
| 主要交通 | 大阪モノレール本線「南摂津」駅 自転車7分(1700m) |
| その他交通 | 大阪メトロ谷町線「大日」駅 自転車11分(2700 m ) |
| 全体区画数 | 2区画 |
| 販売区画数 | 1区画 |
| 敷地面積 | 2号地/70.07㎡(21.19坪) |
| 建ぺい率 | 60% |
|---|---|
| 容積率 | 200% |
| 地目 | 宅地/平坦 |
| 用途地域 | 第二種住居地域 |
| 道路 | 区画図をご参照ください |
| 設備仕様 | 公営水道、本下水、都市ガス |
| 引渡時期 | 相談 |
| 権利形態 | 所有権 |
| 取引形態 | 売主 |
| 建築条件付き | 本物件は建築条件付売土地です。本物件の売主と買主は、土地の売買契約の締結後2ヶ月以内に建物の工事請負契約を締結する。この期日までに両者が工事請負契約の内容に合意できないときには、本契約は白紙解約することとし、売主が買主より受領済みの金銭は速やかに返還するものとする。 |
| その他の制限 | 準防火地域 |
| 情報公開日 | 2026年2月18日 |
| 次回更新予定日 | 2026年3月4日 |