角地を含む全2区画!
土地約30坪で2階建て可能な自由設計用地♪
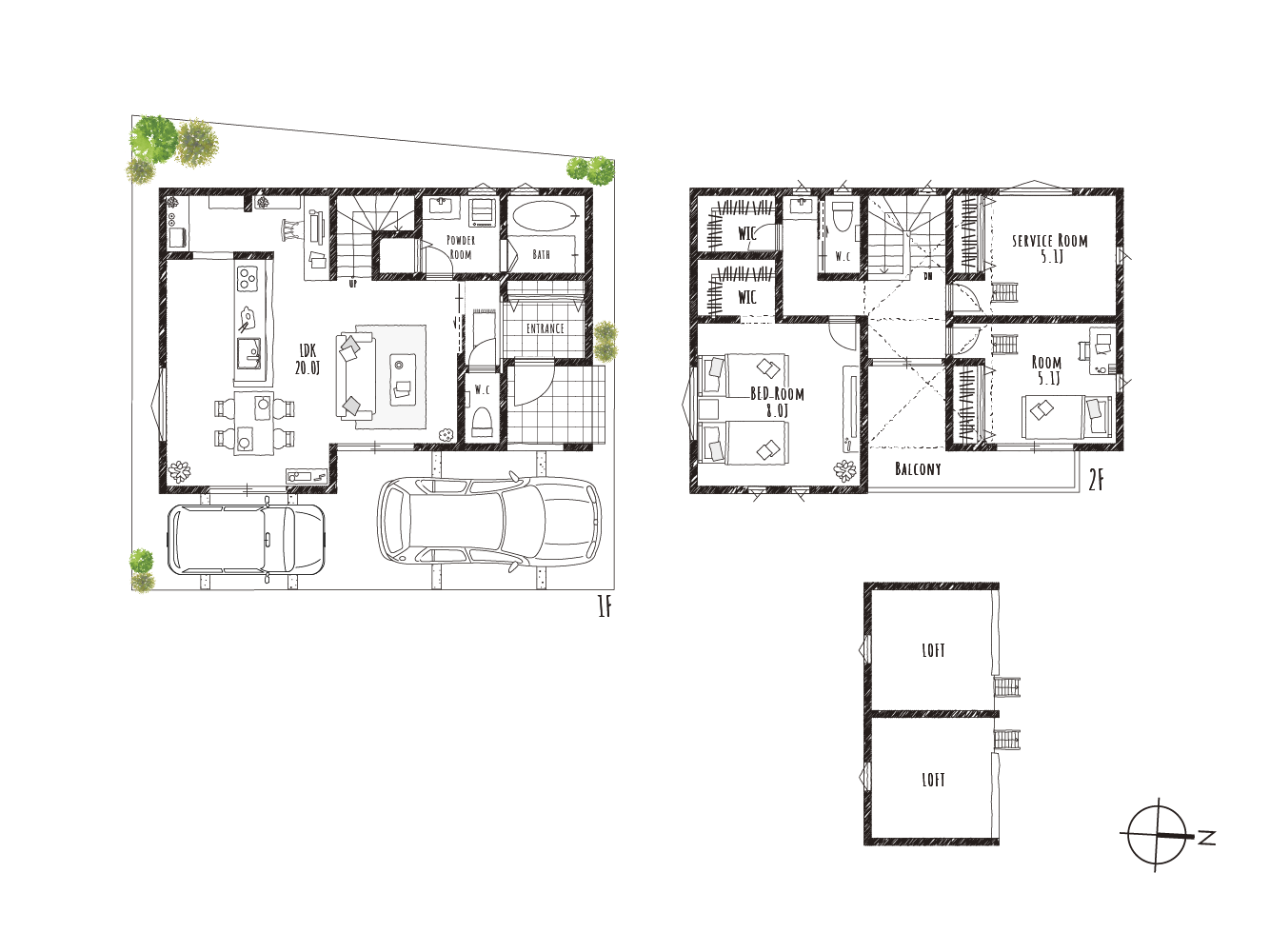
吹抜けやロフトなど間取りの自由度◎
【LIVONE尾浜町1丁目】
~設計士と作る夢の詰まったお家~
■明るく開放的な暮らし
・角地を含む全2区画!土地約30坪で間口も広々♪
・吹抜けや2階水廻り、畳コーナーやロフトなど、様々なプランが可能♪
・前面道路は交通量も少なくお子さまも安心◎
■安心の耐震・省エネ性能
・耐震等級2×制震ダンパー採用で安心安全
・吹付断熱で省エネ・静か・健康的な生活環境を実現
■暮らしやすい住環境
・JR神戸線と阪急神戸線の2路線利用可♪
・スーパー、ドラッグストア、コンビニが徒歩5分圏内
・尼崎市立名和小学校まで徒歩9分
・週末はイオンモール伊丹や元浜緑地などお出かけスポットも多数♪
※掲載の徒歩分数は80m、自転車分数は250m、
車分数は400mを1分として算出した概算時間です。
全2区画で2階建て可能な、広々間口のフリープラン用地です。学校やスーパー、ドラッグストアなどが徒歩圏内にあり、家族みんなにうれしい立地です。休日はイオンモール伊丹でお買い物や映画鑑賞も楽しめます♪


ご予約いただくと、事前にスタッフがスケジュールを調整し、ご案内させていただきます。お待ちいただくこともございませんので、ご予約ください。もし都合が悪くなれば、前日までにお伝えいただければ、代わりの日程を調整させていただきます。

近隣の分譲物件情報や家づくりの資料などをご予約時にお渡しさせていただきます。モデルハウスを見学いただいた後、ご自宅でじっくりと家づくりについてお話をいただくことができます。

ご来場予約をいただいた方に、QUOカードを進呈しています。モデルハウス見学後に、使っていただいてもOK。
※ご家族様1回限りとなります。またモデルハウス見学アンケートにご記入いただくことが条件となります。
| 物件種別 | 注文住宅用地 |
|---|---|
| 所在地 | 尼崎市尾浜町1丁目28番12号 付近 |
| 主要交通 | JR神戸線「立花」駅 自転車6分(1400・1410m) |
| その他交通 | 阪急神戸線「塚口」駅 自転車8分(1800・1810m) |
| 全体区画数 | 2区画 |
| 販売区画数 | 2区画 |
| 敷地面積 | 1号地/約99.59㎡(約30.12坪) 2号地/約99.79㎡(約30.18坪) |
| 建ぺい率 | 60% |
|---|---|
| 容積率 | 200% |
| 地目 | 宅地/平坦 |
| 用途地域 | 準工業地域 |
| 道路 | 区画図をご参照ください |
| 設備仕様 | 公営水道、本下水、都市ガス |
| 引渡時期 | 相談 |
| 権利形態 | 所有権 |
| 取引形態 | 売主 |
| 建築条件付き | 本物件は建築条件付売土地です。本物件の売主と買主は、土地の売買契約の締結後2ヶ月以内に建物の工事請負契約を締結する。この期日までに両者が工事請負契約の内容に合意できないときには、本契約は白紙解約することとし、売主が買主より受領済みの金銭は速やかに返還するものとする。 |
| その他の制限 | 準防火地域,第5種高度地区,居住誘導地域 |
| 情報公開日 | 2026年3月5日 |
| 次回更新予定日 | 2026年3月19日 |