南西角地につき陽当たり良好◎
土地約32坪!2階建てが可能な、ゆとりあるフリープラン用地♪
【LIVONE三井が丘3丁目】
~設計士とつくる夢の詰まったお家~
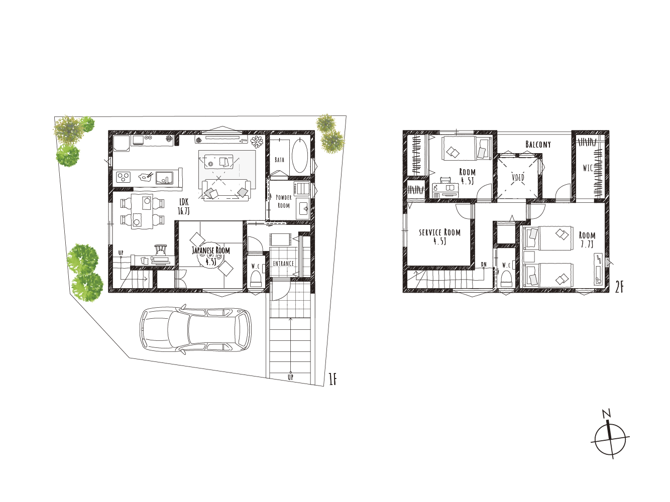
■明るく開放的な暮らし
間口の広さを活かし、吹抜けや2階水廻りなど、
暮らしに合わせた多彩な住まいづくりが楽しめます♪
■安心の耐震・省エネ性能
・耐震等級2×制震ダンパー採用で安心・安全
・吹付断熱で省エネ・静か・健康的な生活環境を実現
■暮らしやすい住環境
・京阪本線「香里園」駅まで自転車8分(1900m)
・スーパーマルシゲまで徒歩7分
・寝屋川市立三井小学校まで徒歩4分、
寝屋川市立第十中学校まで徒歩7分
・打上川治水緑地まで徒歩12分
・週末はイオンモール四條畷や寝屋川公園など、おでかけスポットも多数♪
※掲載の徒歩分数は80m、自転車分数は250m、
車分数は400mを1分として算出した概算時間です。
土地約32坪!南西角地につき陽当たり良好な自由設計用地♪スーパーやドラッグストア、コンビニ、小・中学校が徒歩10分圏内にそろう便利な住環境◎休日は打上川治水緑地でお花見やバーベキューも楽しめます!


ご予約いただくと、事前にスタッフがスケジュールを調整し、ご案内させていただきます。お待ちいただくこともございませんので、ご予約ください。もし都合が悪くなれば、前日までにお伝えいただければ、代わりの日程を調整させていただきます。

近隣の分譲物件情報や家づくりの資料などをご予約時にお渡しさせていただきます。モデルハウスを見学いただいた後、ご自宅でじっくりと家づくりについてお話をいただくことができます。

ご来場予約をいただいた方に、QUOカードを進呈しています。モデルハウス見学後に、使っていただいてもOK。
※ご家族様1回限りとなります。またモデルハウス見学アンケートにご記入いただくことが条件となります。
| 物件種別 | 注文住宅用地 |
|---|---|
| 所在地 | 寝屋川市三井が丘3丁目9番30号 付近 |
| 主要交通 | 京阪本線「香里園」駅 自転車8分(1900m) |
| その他交通 | JR学研都市線「寝屋川公園」駅 自転車11分(2700m) |
| 全体区画数 | 1区画 |
| 販売区画数 | 1区画 |
| 敷地面積 | 107.59㎡(32.54坪) |
| 建ぺい率 | 60% |
|---|---|
| 容積率 | 200% |
| 地目 | 宅地/平坦 |
| 用途地域 | 第一種中高層住居専用地域 |
| 道路 | 区画図をご参照ください |
| 設備仕様 | 公営水道、本下水、都市ガス |
| 引渡時期 | 相談 |
| 権利形態 | 所有権 |
| 取引形態 | 売主 |
| 建築条件付き | 本物件は建築条件付売土地です。本物件の売主と買主は、土地の売買契約の締結後2ヶ月以内に建物の工事請負契約を締結する。この期日までに両者が工事請負契約の内容に合意できないときには、本契約は白紙解約することとし、売主が買主より受領済みの金銭は速やかに返還するものとする。 |
| その他の制限 | 準防火地域,第二種高度地区 |
| 情報公開日 | 2026年4月16日 |
| 次回更新予定日 | 2026年4月30日 |