生活利便施設が充実した藤井寺駅徒歩12分!
間取りの自由度が高いフリープラン用地♪
【LIVONE西古室1丁目】
~設計士とつくる夢の詰まったお家~
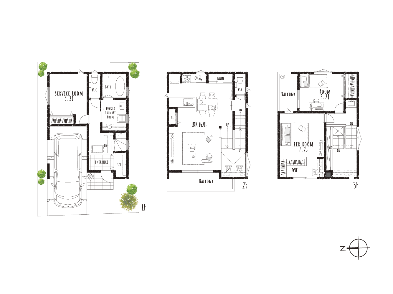
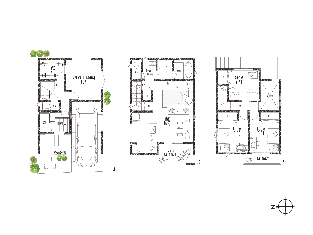
■明るく開放的な暮らし
吹抜けや2階水廻り、スキップフロアなど、
多彩なプランで住まいの可能性が広がります♪
ご家族の暮らしに寄り添い、理想の住まいを描けます!
■安心の耐震・省エネ性能
・耐震等級2×制震ダンパー採用で安心・安全
・吹付断熱で省エネ・静か・健康的な生活環境を実現
■暮らしやすい住環境
・業務スーパーまで徒歩12分、ロピアまで徒歩13分
・藤井寺西小学校まで徒歩10分でお子さまも安心◎
・イオン藤井寺まで徒歩14分
・キリン堂まで徒歩8分
・週末はららぽーと堺や大泉緑地など、おでかけスポットも多数♪
※掲載の徒歩分数は80m、自転車分数は250m、
車分数は400mを1分として算出した概算時間です。
小学校やスーパー、ドラッグストアが身近に揃う、子育て世帯にもうれしい住環境!毎日の暮らしがスムーズに整います♪イオン藤井寺も徒歩14分で、休日のおでかけも気軽に楽しめます。是非お問い合わせください!


ご予約いただくと、事前にスタッフがスケジュールを調整し、ご案内させていただきます。お待ちいただくこともございませんので、ご予約ください。もし都合が悪くなれば、前日までにお伝えいただければ、代わりの日程を調整させていただきます。

近隣の分譲物件情報や家づくりの資料などをご予約時にお渡しさせていただきます。モデルハウスを見学いただいた後、ご自宅でじっくりと家づくりについてお話をいただくことができます。

ご来場予約をいただいた方に、QUOカードを進呈しています。モデルハウス見学後に、使っていただいてもOK。
※ご家族様1回限りとなります。またモデルハウス見学アンケートにご記入いただくことが条件となります。
| 物件種別 | 注文住宅用地 |
|---|---|
| 所在地 | 藤井寺市西古室1丁目8番22号 付近 |
| 主要交通 | 近鉄南大阪線「藤井寺」駅 徒歩12分(950m) |
| 全体区画数 | 1区画 |
| 販売区画数 | 1区画 |
| 敷地面積 | 73.81㎡(22.32坪) |
| 建ぺい率 | 60% |
|---|---|
| 容積率 | 200% |
| 地目 | 宅地/平坦 |
| 用途地域 | 第一種中高層住居専用地域 |
| 道路 | 区画図をご参照ください |
| 設備仕様 | 公営水道、本下水、都市ガス |
| 引渡時期 | 相談 |
| 権利形態 | 所有権 |
| 取引形態 | 売主 |
| 建築条件付き | 本物件は建築条件付売土地です。本物件の売主と買主は、土地の売買契約の締結後2ヶ月以内に建物の工事請負契約を締結する。この期日までに両者が工事請負契約の内容に合意できないときには、本契約は白紙解約することとし、売主が買主より受領済みの金銭は速やかに返還するものとする。 |
| その他の制限 | 準防火地域 |
| 情報公開日 | 2026年4月16日 |
| 次回更新予定日 | 2026年4月30日 |