くつろぎ広がるダウンフロアリビングのお家

段差でゆるやかに仕切られたリビングと、伸びやかに広がる天井高がゆとりある空間をつくり出すお家です。一段下がることで天井がより高く感じられ、リビング全体に開放感が心地よく広がります。包み込まれるような落ち着きの中で、ソファ上の間接照明がやさしく灯り、夜はゆったりとしたくつろぎの時間を演出します。窓際の小上がりは腰掛けて会話を楽しむのにちょうど良い空間で、家族との距離がぐっと近づく心地よい場所になります。キッチンを中心にパントリーやユーティリティスペースへと回遊できる動線で、忙しい日々の家事もスムーズに進みます。室内物干しや収納も充実し、暮らしやすさをしっかり支えながら、毎日の生活をより快適に整えます。家族が自然と集まり、ゆったりと過ごせる住まいです。

WORKS
枚方市

LIVONE北中振1丁目2期

    • 所在地

      枚方市
    • 間取り

      2LDK+S
    • 敷地面積

      63.36m²(19.16坪)
    • 延床面積

      97.37m²(29.45坪)
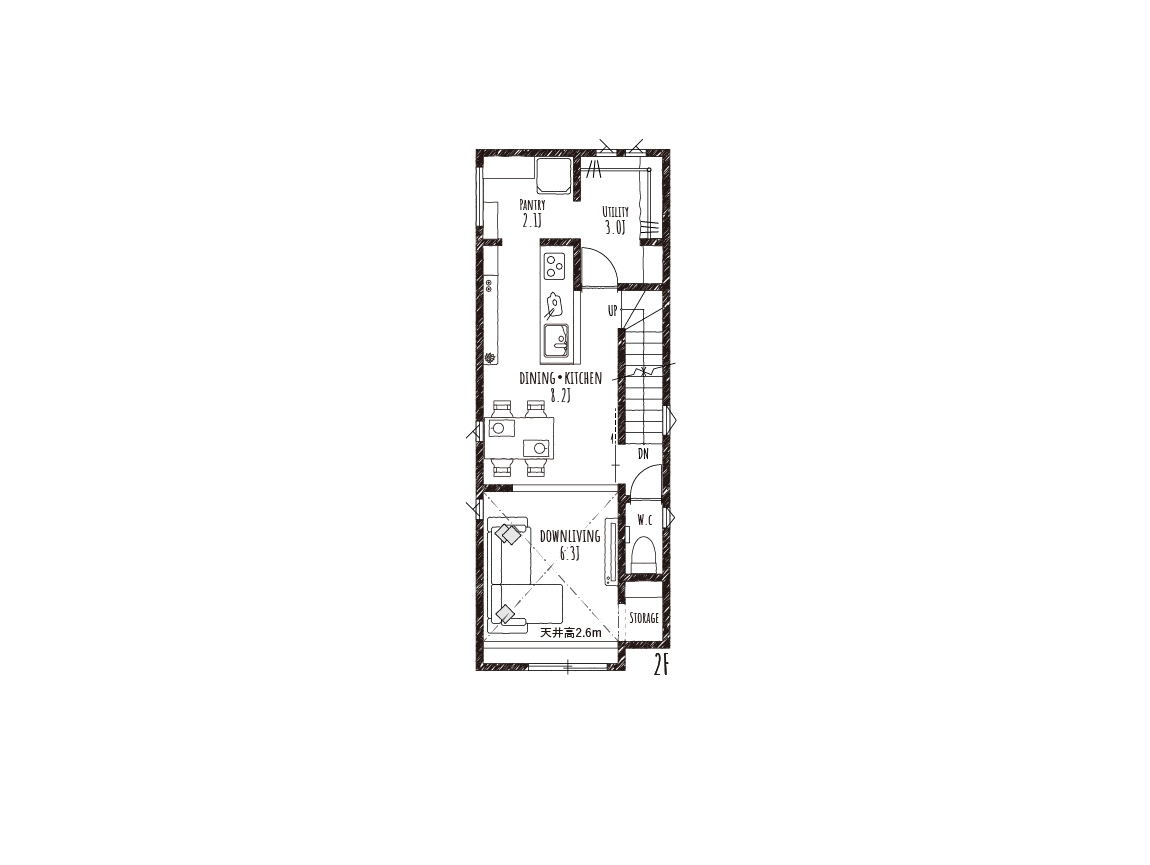
  • 光と段差が心地いいダウンフロアリビング

    ダイニングより一段下げたリビングは、天井が高くなり広がりを感じられます。段差でゆるやかに空間が分かれるので、落ち着いて過ごすことができます。間接照明で、昼はやさしい明るさ、夜は落ち着いた雰囲気に。小上がりに腰かけながら会話も楽しめ、収納も備えているので、整った状態を保てます。
    ※画像はイメージパースのため、実際とは異なる場合があります。

  • ぐるっとつながる家事ラクのキッチン動線

    キッチン→パントリー→ユーティリティ→廊下→ダイニングへ、キッチンを中心にスムーズにつながる回遊動線。約1坪のパントリーには冷蔵庫も収まり、ストックなどもまとめて置けます。ユーティリティには室内物干しと収納を設け、カウンターは洗濯物をたたんだり、アイロンがけに便利です。
    ※画像はイメージパースのため、実際とは異なる場合があります。

  • セパレートなのがうれしい洗面室と脱衣室

    1階の階段の上り口近くにある洗面スペースで、帰ってすぐ手洗い・うがいができます。家に入ってすぐ使える位置にあり、日々の習慣にしやすいのがポイントです。洗面室と脱衣室を分けているので、入浴中でも気兼ねなく使えます。来客時も使いやすく、脱衣スペースを見せずに済む安心の配置です。
    ※画像は弊社施工例です。

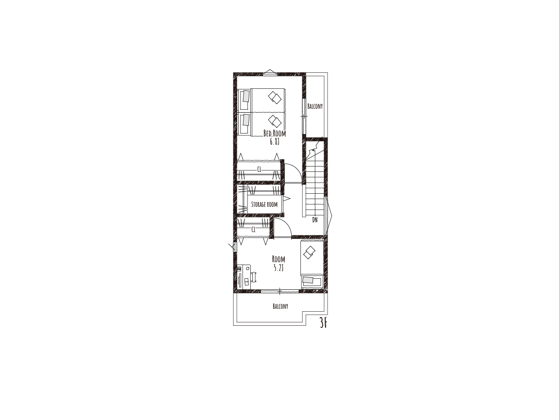
  • やわらかな光と風を感じる心地よい主寝室

    3階の南側に配置した主寝室は、バルコニーに面した明るい空間です。外からの光をたっぷり取り込み、日中はやさしい明るさに包まれます。風も通りやすく、心地よい空気の中でゆったり過ごせるのが魅力です。収納もしっかりと設けているので、室内を広く使え、落ち着いて過ごせる心地よい空間です。
    ※画像はイメージパースのため、実際とは異なる場合があります。

  • 家族で使いやすい3階ホールの収納スペース

    3階の廊下に設けた収納スペースは、家族みんなで使いやすい場所にあります。日常でよく使うものから季節ものまで、ひとまとめにしまえます。掃除機や季節家電なども無理なく収まり、置き場所に悩みにくいのも助かります。居室に物を持ち込まずにすむので、各部屋をゆったり広く使えるのも魅力です。
    ※画像は弊社施工例です。

PLANNING

LOCATION & ACCESS

〒573-0064 枚方市北中振1丁目3番25号 付近
TOP