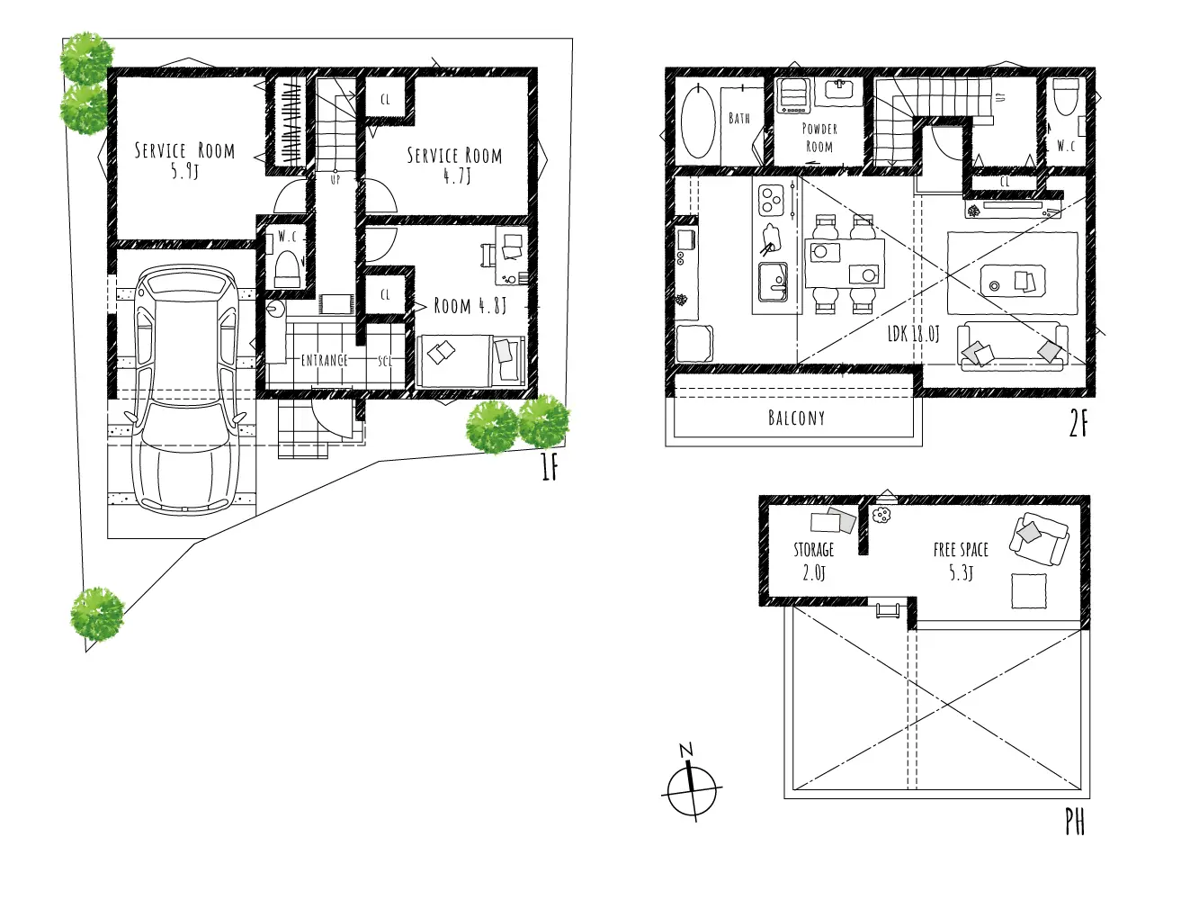
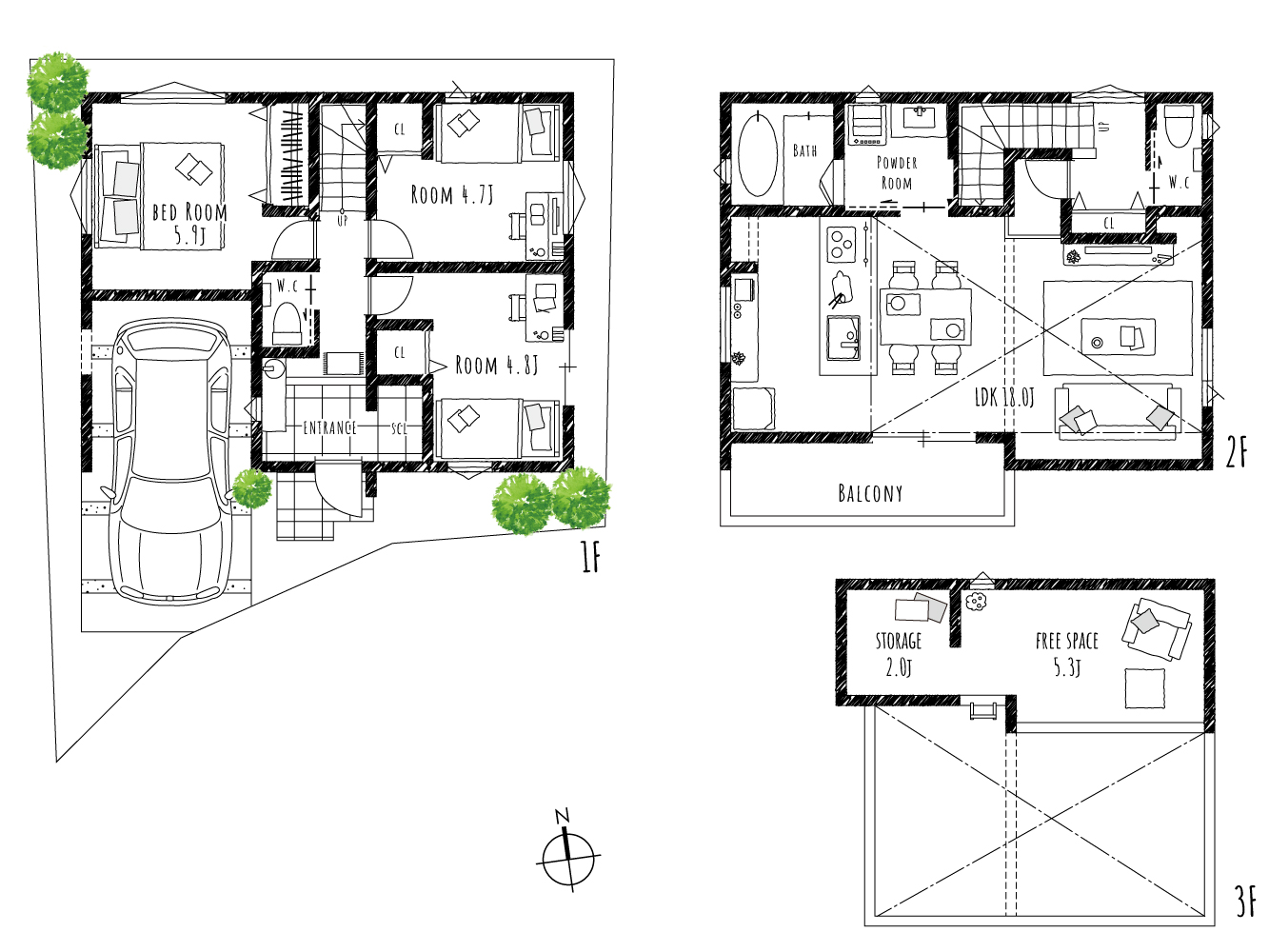
南向き!2階リビング+吹抜け+ロフト付1LDK+2S!スマイルーフ×ENETOで光熱費削減
家具・照明・LDKにエアコン付き
ロフトには約5帖のフリースペースと2帖の小屋裏収納
安心の定期点検10年間◎
【LIVONEはびきの4丁目2期】
~家計に優しい2階リビングのお家~
■明るくゆとりのある住まい■
・2階に水廻り集結で家事ラク動線◎
・明るく開放感のある2階LDK18帖に吹抜け+勾配天井♪
・玄関入ってすぐにセカンド洗面!
・前面道路は約6.1mで広々♪
■地震対策◎省エネ対策◎■
・耐震等級2×制震ダンパーで安心のお家
・吹付断熱で省エネ・静かな生活環境を実現
■家族みんなが嬉しい立地■
・スーパー、薬局、コンビニが徒歩10分圏内♪
・埴生南小学校まで徒歩10分
・週末はイオンやららぽーと、峰塚公園などお出かけスポットも多数♪
※掲載の徒歩分数は80m、自転車分数は250m、
車分数は400mを1分として算出した概算時間です。
太陽光とエネファームのW発電で光熱費が削減できる、家計にやさしいお家です♪休日には家族でお買い物を楽しめる施設が多数あり、徒歩9分にある峰塚公園では、家族みんなでピクニックなども楽しめます♪


ご予約いただくと、事前にスタッフがスケジュールを調整し、ご案内させていただきます。お待ちいただくこともございませんので、ご予約ください。もし都合が悪くなれば、前日までにお伝えいただければ、代わりの日程を調整させていただきます。

近隣の分譲物件情報や家づくりの資料などをご予約時にお渡しさせていただきます。モデルハウスを見学いただいた後、ご自宅でじっくりと家づくりについてお話をいただくことができます。

ご来場予約をいただいた方に、QUOカードを進呈しています。モデルハウス見学後に、使っていただいてもOK。
※ご家族様1回限りとなります。またモデルハウス見学アンケートにご記入いただくことが条件となります。
| 物件種別 | 新築一戸建て(ご見学・入居可能) |
|---|---|
| 所在地 | 羽曳野市はびきの4丁目9番14号付近 |
| 主要交通 | 近鉄南大阪線「古市」駅 自転車8分(1900m) |
| その他交通 | 近鉄南大阪線「藤井寺」駅 自転車9分(2200m) 近鉄バス「羽曳山住宅前」停 徒歩6分、近鉄南大阪線「古市」駅 バス7分 |
| 総区画 | 1区画 |
| 販売区画数 | 1区画 |
| 敷地面積 | 78.27m²(23.67坪) |
| 延床面積 | 81.97㎡(24.79坪) |
| 間取り | 1LDK+2S |
|---|---|
| 構造・工法 | 木造2階建て |
| 駐車場 | 1台 |
| 建ぺい率 | 60% |
| 容積率 | 200% |
| 地目 | 宅地/平坦 |
| 用途地域 | 第一種中高層住居専用地域 |
| 道路 | 区画図をご参照ください |
| 設備仕様 | 公営水道、本下水、都市ガス |
| 引渡時期 | 即入居可 |
| 完成時期 | 2024年8月完成済 |
| 権利形態 | 所有権 |
| 取引形態 | 売主 |
| 建築確認番号 | 第総合23-0181号 |
| 情報公開日 | 2025年12月8日 |
| 次回更新予定日 | 2025年12月22日 |