モデルハウス堂々完成【完成見学会開催中!】
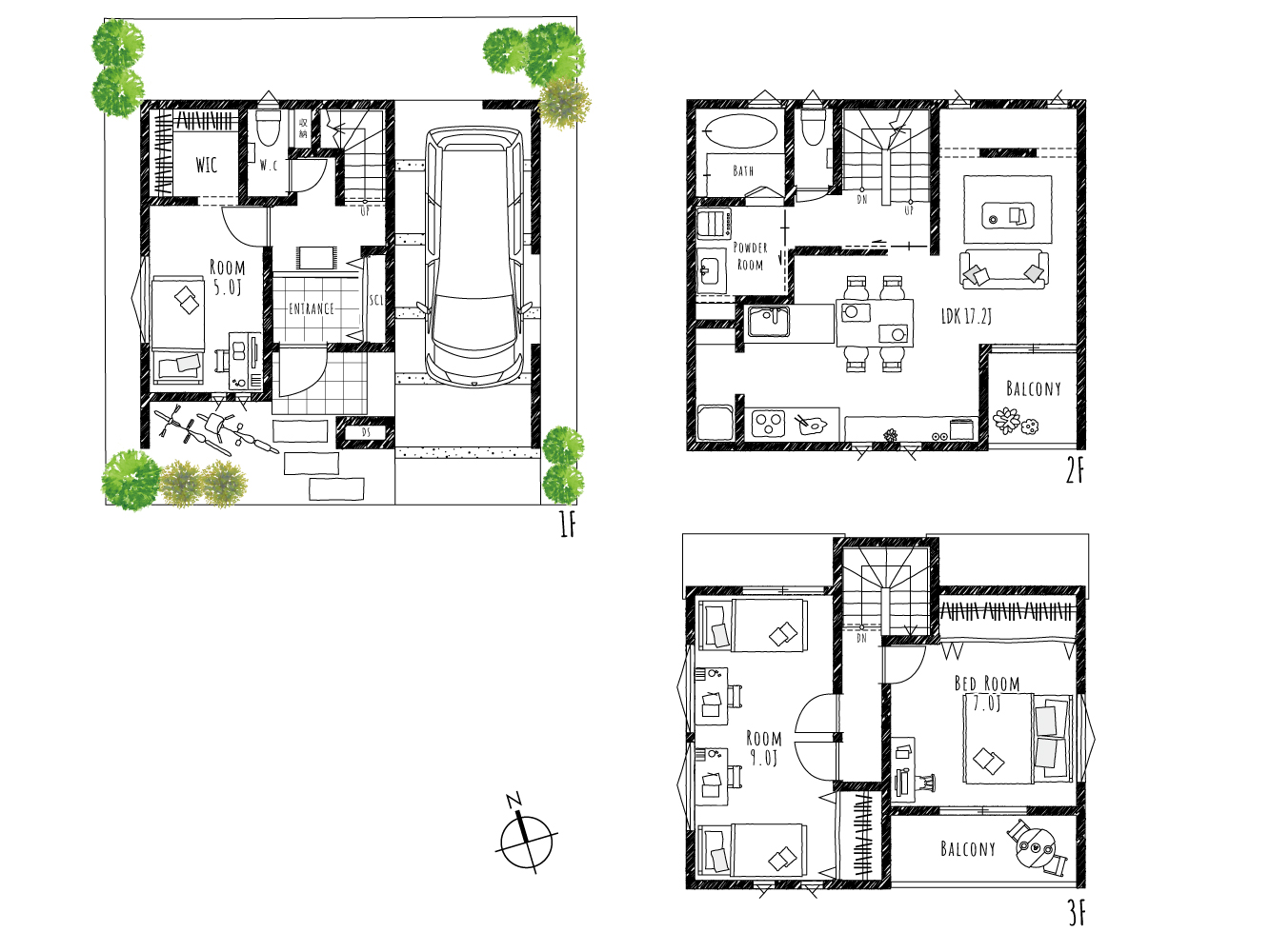
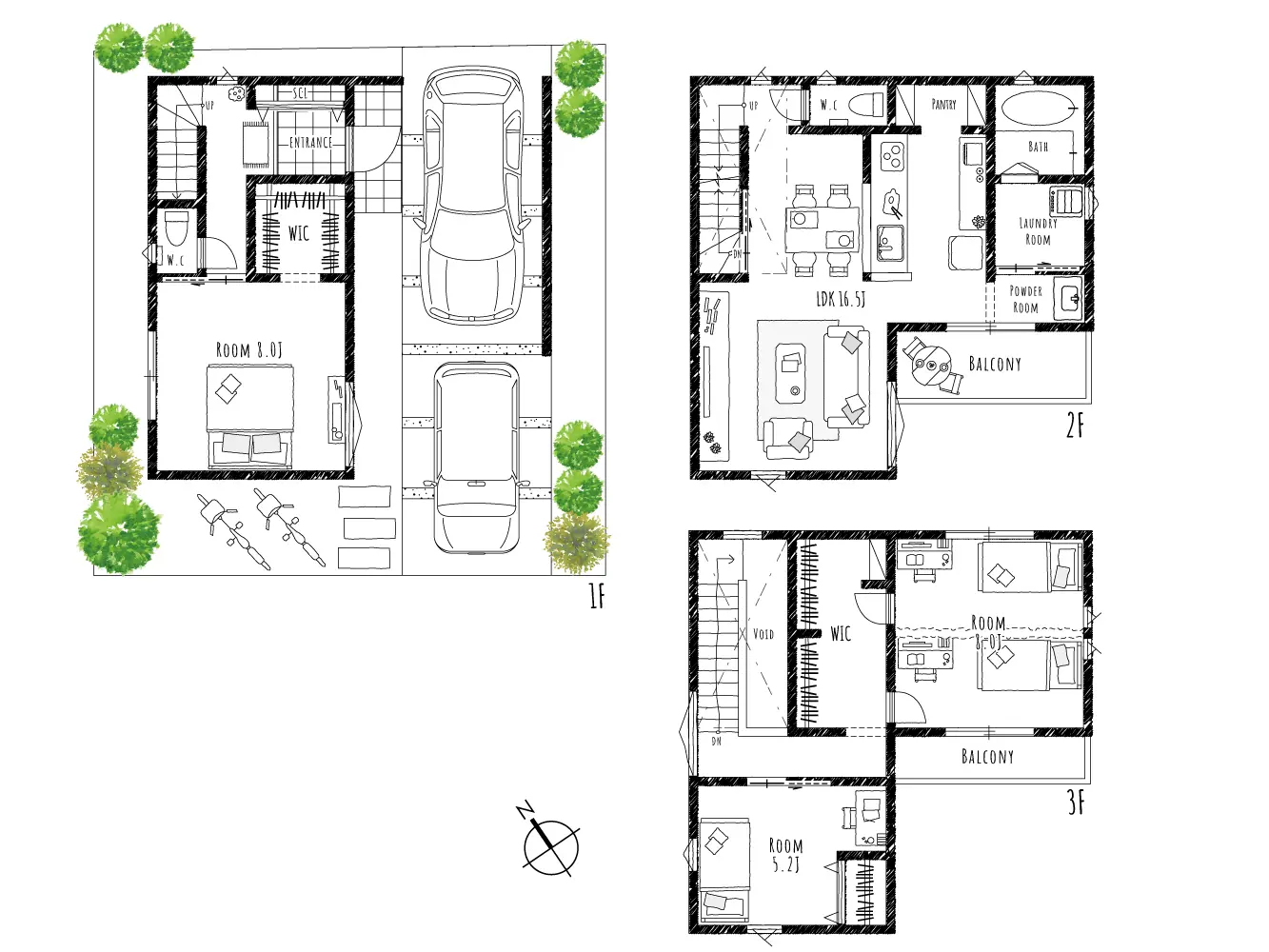
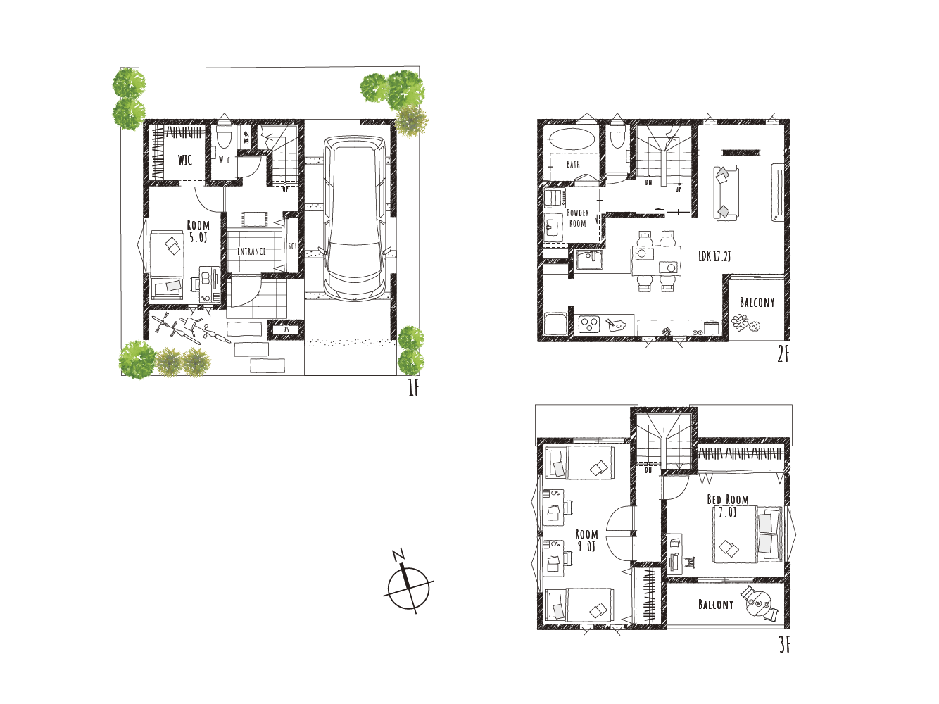
南向き×広々間口で陽当たり◎
2階水廻りで家事ラク♪小学校まで徒歩8分!
【LIVONE東園田町3丁目2期】
~家族時間と自分時間を大切にするお家~
■明るくゆとりのある住まい■
・インナーガレージで大切なお車も安心◎
・3階に将来間仕切りが可能なお部屋あり!
・ウォークインクローゼットやパントリーなど収納も充実♪
■地震対策◎省エネ対策◎■
・耐震等級2×制震ダンパーで安心のお家
・ZEH水準で省エネ・高断熱の生活環境を実現!
■家族みんながうれしい立地■
・業務スーパーまで徒歩7分!
・スギ薬局まで徒歩6分!
・園和北小学校まで徒歩8分、園田東中学校まで徒歩13分でお子さまも安心◎
・週末はイオンモール伊丹や伊丹スカイパークなどお出かけスポットも多数♪
※掲載の徒歩分数は80m、自転車分数は250m、
車分数は400mを1分として算出した概算時間です。
南向きで間口も広いため、たくさんの光を取り入れられるお家です!また徒歩10分圏内にスーパーやドラッグストア、コンビニ、小学校などがそろう家族みんなにうれしい立地です!


ご予約いただくと、事前にスタッフがスケジュールを調整し、ご案内させていただきます。お待ちいただくこともございませんので、ご予約ください。もし都合が悪くなれば、前日までにお伝えいただければ、代わりの日程を調整させていただきます。

近隣の分譲物件情報や家づくりの資料などをご予約時にお渡しさせていただきます。モデルハウスを見学いただいた後、ご自宅でじっくりと家づくりについてお話をいただくことができます。

ご来場予約をいただいた方に、QUOカードを進呈しています。モデルハウス見学後に、使っていただいてもOK。
※ご家族様1回限りとなります。またモデルハウス見学アンケートにご記入いただくことが条件となります。
| 物件種別 | 新築一戸建て(ご見学・入居可能) |
|---|---|
| 所在地 | 尼崎市東園田町3丁目7番12号 付近 |
| 主要交通 | 阪急神戸線「園田」駅 徒歩13分(1000m) |
| その他交通 | JR宝塚線「猪名寺」駅 自転車11分(2700m) 阪神バス「椎堂」停 徒歩5分、JR宝塚線「猪名寺」駅 バス5分 |
| 総区画 | 1区画 |
| 販売区画数 | 1区画 |
| 敷地面積 | 79.82㎡(24.14坪) |
| 延床面積 | 101.43㎡(30.68坪) |
| 間取り | 3LDK |
|---|---|
| 構造・工法 | 木造3階建て |
| 駐車場 | 1台 |
| 建ぺい率 | 60% |
| 容積率 | 200% |
| 地目 | 宅地/平坦 |
| 用途地域 | 第一種中高層住居専用地域 |
| 道路 | 区画図をご参照ください |
| 設備仕様 | 公営水道、本下水、都市ガス |
| 引渡時期 | 即引渡可 |
| 完成時期 | 2026年4月完成済 |
| 権利形態 | 所有権 |
| 取引形態 | 売主 |
| 建築確認番号 | HK25-0363号(2025年9月25日) |
| その他の制限 | 準防火地域・第2種高度地区 |
| 情報公開日 | 2026年4月30日 |
| 次回更新予定日 | 2026年5月10日 |