角地につき陽当たり◎
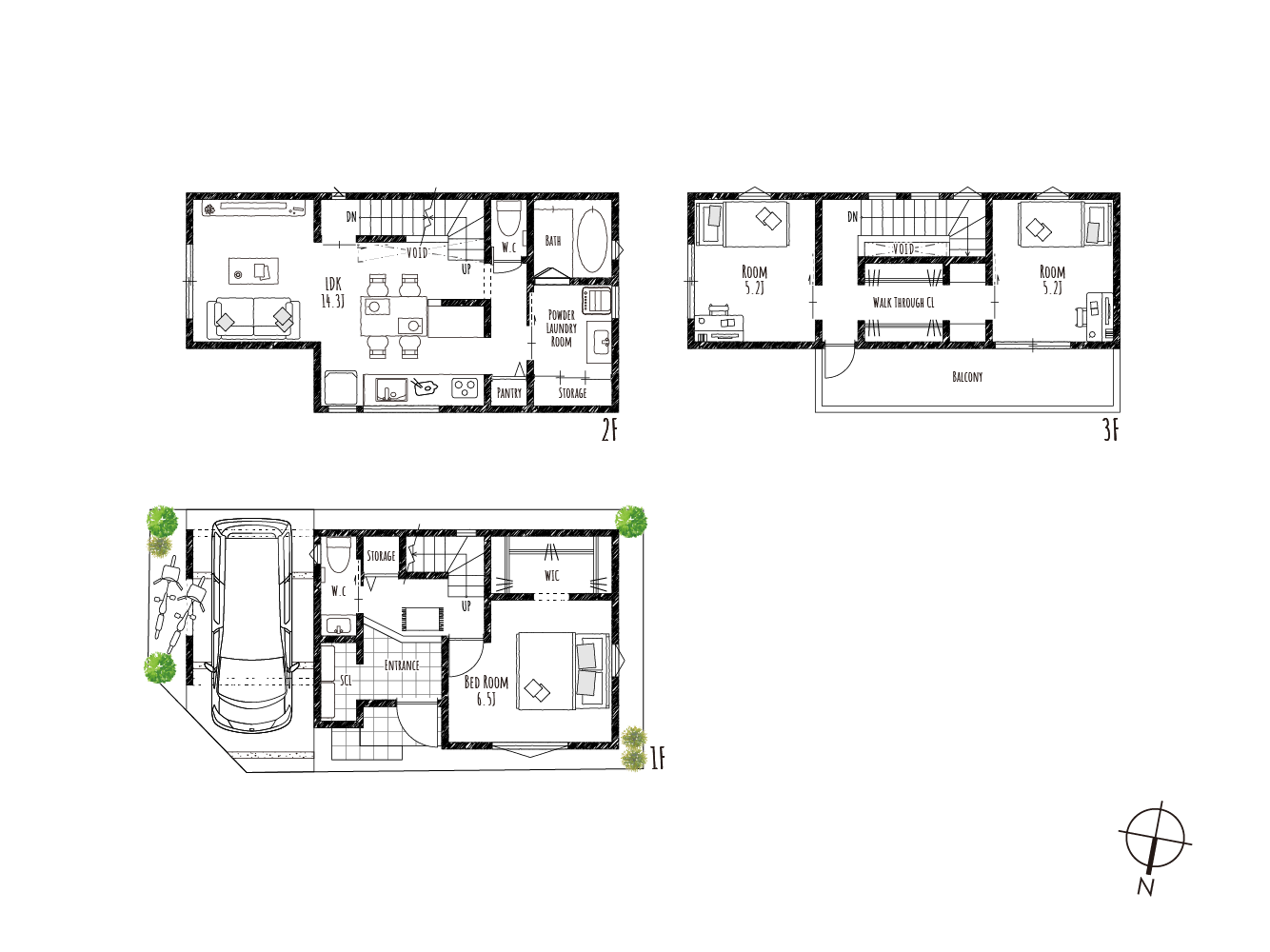
回遊動線+2階に水廻りを集約した、家事ラク動線♪
安心の定期点検10年間!
【LIVONE草部4期】
~ぐるりと回遊できる家事ラク動線のお家~
■明るく開放的な暮らし
・LDK内に吹抜け!
・主寝室は大きなウォークインクローゼット付き◎
・ウォークスルー収納やパントリーなど各階の収納も充実♪
・3階に開放的なワイドバルコニー!
■安心の耐震・省エネ性能
・耐震等級2×制震ダンパー採用で安心安全
・ZEH水準で省エネ・高断熱の生活環境を実現
■暮らしやすい住環境
・スーパーマンダイまで徒歩4分!
・スギ薬局まで徒歩7分!
・ファミリーマートまで徒歩4分!
・福泉小学校まで徒歩12分、福泉中学校まで徒歩15分
・アリオ鳳や浜寺公園などお出かけスポットも多数♪
※掲載の徒歩分数は80m、自転車分数は250m、
車分数は400mを1分として算出した概算時間です。
お休みの日は、アリオ鳳でお買い物!映画館もあるのでご家族で映画鑑賞を楽しめます!また、日々の生活に欠かせないスーパーやドラッグストア、コンビニが徒歩7分圏内で家族みんなに嬉しい立地です◎


ご予約いただくと、事前にスタッフがスケジュールを調整し、ご案内させていただきます。お待ちいただくこともございませんので、ご予約ください。もし都合が悪くなれば、前日までにお伝えいただければ、代わりの日程を調整させていただきます。

近隣の分譲物件情報や家づくりの資料などをご予約時にお渡しさせていただきます。モデルハウスを見学いただいた後、ご自宅でじっくりと家づくりについてお話をいただくことができます。

ご来場予約をいただいた方に、QUOカードを進呈しています。モデルハウス見学後に、使っていただいてもOK。
※ご家族様1回限りとなります。またモデルハウス見学アンケートにご記入いただくことが条件となります。
| 物件種別 | 新築一戸建て(建築中) |
|---|---|
| 所在地 | 堺市西区草部44番9号 付近 |
| 主要交通 | JR阪和線「鳳」駅 自転車7分(1700m) |
| その他交通 | JR阪和線「富木」駅 自転車6分(1500m) 南海バス「石橋」停 徒歩3分(180m)、JR阪和線「鳳」駅までバス12分 |
| 総区画 | 1区画 |
| 販売区画数 | 1区画 |
| 敷地面積 | 56.83m²(17.19坪) |
| 延床面積 | 92.73m²(28.06坪) |
| 間取り | 3LDK |
|---|---|
| 構造・工法 | 木造3階建て |
| 駐車場 | 1台 |
| 建ぺい率 | 60% |
| 容積率 | 200% |
| 地目 | 宅地/平坦 |
| 用途地域 | 第一種住居地域 |
| 道路 | 区画図をご参照ください |
| 設備仕様 | 公営水道、本下水、都市ガス |
| 引渡時期 | 2026年8月下旬予定 |
| 完成時期 | 2026年8月下旬完成予定 |
| 権利形態 | 所有権 |
| 取引形態 | 売主 |
| 建築確認番号 | 第総合25-0160号(2026年3月4日) |
| その他の制限 | 準防火地域 |
| 情報公開日 | 2026年4月30日 |
| 次回更新予定日 | 2026年5月10日 |