住まうほどに、暮らしになじむ家

トレンドに流され過ぎない、使い込まれた落ち着いたテイストが好きで、温かみのある部屋でゆっくり過ごしたいという方におすすめの、ナチュラルビンテージのお家です。吹抜けを通じて3階ともつながり、キッチンを中心にリビング・ダイニングともコミュニケーションのとりやすいつくり。くつやベビーカーなど、物があふれがちな玄関にもたっぷり収納を備え、使いたい時間が重なる洗面台は2か所に。子どもが宿題したり、パパやママがPC作業できるカウンターをリビングに設けるなど、家族が繋がりながらも生活しやすい工夫を盛り込んでいます。落ち着いた色目の木目に、色味を抑えたディテール感のあるクロス、手すりやシーリングファンにアイアンをあしらい、デザイン性と使い勝手の良さを両立させました。暮らしに寄り添い住むほどになじむんでいく、そんなお家にしています。

WORKS
THANK YOU

MODEL HOUSE 128

    • 所在地

      THANK YOU
    • 間取り

      3LDK
    • 敷地面積

      60.90m²(18.42坪)
    • 延床面積

      97.23m²(29.41坪)
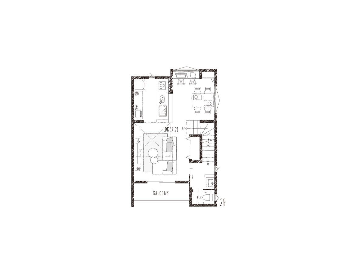
  • 家族がつながるLDK

    フロアの真ん中に吹抜けを施した、明るく開放感あるLDK。キッチンを中心に、リビング~ダイニング・スタディカウンターとつながります。ごはんができたら、吹抜けを通じて3階に「ごはんできたよ~」と声をかけたり、帰宅時には、リビング階段を通って自室に行くとき「ただいま」「お帰り」が言い合える、コミュニケーションのとりやすいつくり。ひな壇になっているリビング階段は、アイアンのスケルトンになっていて、見た目もおしゃれに。壁をなくすことで、ダイニングとリビングがつながり、ほどよい距離感を保ちつつも、さりげなくつながれる空間にしています。

  • 飾れるキッチン

    となりにリビング、正面にダイニングとスタディカウンターのある、コミュニケーションのとりやすいキッチンは、その分視界にも入りやすいのが気になるところ。モルタル調のクロスをあしらった腰壁で、手元や汚れた食器は隠せ、ブラックのアクセントクロスがおしゃれな飾り棚には、お気に入りのデザイン家電や食器をディスプレイしながら収納。ダクトレールを使って、照明やグリーンで演出したり、収納しながらアレンジを楽しめるキッチンにしています。

  • 階段ホールのセカンド洗面

    2階リビング入口に、セカンド洗面を設けました。子どもが汚してもサッと手を洗えて、部屋を汚さずにすみ、お客さまにも気軽に使ってもらえます。誰かがお風呂を使っていて、洗面台が使いずらい、ということもなくなり、朝の混雑解消にもなります。人目に付く場所なので、シンプルなデザインながらもブラケットライトをあしらい、おしゃれな印象に仕上げています。

  • ダイニングのスタディカウンター

    キッチンからもよく見える、ダイニングの一角に、スタディカウンターをご用意しました。子どもが宿題をやっていても、わからないところがあれば、すぐに見てあげられ、約1.8mと余裕ある広さは、兄弟がおなじ机で並んで勉強することも可能に。家事の合い間にPCで調べものをしたり、在宅ワークにも便利なスペースです。

  • 主寝室のドレッサースペース

    主寝室には、ウォークインクローゼットと隣り合わせにワークカウンターをご用意しました。お出かけ前にクローゼットでお洋服を選んで、カウンターで身支度をして、全身をチェック。あわただしい朝の準備もスムーズになり、動線をコンパクトにすることで、散らかりにくくなりそうです。

  • 収納しやすい玄関

    造り付けのシューズボックスと、土間収納になっているシューズクローゼットをご用意しました。土間収納には、ベビーカーや三輪車もそのまましまえ、外出もスムーズに。収納スペースがたくさんあるので、玄関まわりもスッキリします。

  • 外観

    3棟が並ぶ分譲地の内の1件(1番左)。3棟を調和のとれたデザインにしつつ、それぞれに個性のあるテイストに仕上げています。その中のブラック×ホワイトの石目調の外壁に木目をアクセントにしたヴィンテージテイストのお家。キリっとかっこいい外観は、特別感を持って住んでいただけるデザインです。

The Architect’s Voice

3棟が並ぶ分譲住宅になります。外観は3棟が共に調和のとれたデザインにしつつ、それぞれに個性のあるテイストに仕上げました。バルコニーに面した吹抜けを設け、明るいリビングになるようにしています。リビング階段にアイアン手摺を設ける等、デザイン面にも工夫をし、18坪の狭小地ながら、狭さを感じない間取りになるように考えました。

TOP