シンプルな間取りの中に「生活のしやすさ」「家事のしやすさ」「デザイン性」「抜け感」を取り入れた、グレージュの家が完成しました。外からの視線を気にせず過ごせる2階リビングや、片づけやすい2WAY玄関、「ながら家事」ができるように、キッチンを中心に水廻りを2階にまとめました。天井を高くとったリビングには吹抜けや間接照明を用い「空間に抜け感や開放感」をあたえ、階段手すりをブラックのアイアンにすることで「シンボリックなリビング階段」にするなど、見どころある工夫を散りばめています。内装にはいろいろなテクスチャーのグレージュ色を重ねてワントーンでまとめ、手すりやカウンターなど所々にブラックやグレーを効かせてシンプルに。コンパクトながらも特別感を持って住まえる、明るくさわやかなお家にしています。
シンボリックなブラックのアイアン手すりと、吹抜けのリビング階段が印象的な、デザイン性あるリビング。テレビボード背面には、ふわっと間接照明を灯し、並んで切ってあるサッシのブラックと、ダイニングの折下げ天井とキッチンカウンターに配したグレーがアクセントになり、おしゃれな雰囲気に。リビング階段は、出かける際にリビングを通り、自然と顔を合わせられ、コミュニケーションも取りやすいつくり。明るく心地よく過ごせ、自然とリビングに家族が集まってくる、そんな空間にしています。
キッチンは壁で手元を隠してスッキリと。壁面にはニッチを施し、飾りながら収納できるスペースに。背面にもたっぷり収納できるカップボードがあるので、家電や調理済みの物を置いたり、足元にゴミ箱を置けば、振り返るだけですぐ使えて動線も短くすみます。飾り棚にお気に入りの雑貨や食器を飾れば、お気に入りに囲まれて、いるだけで楽しくなるキッチンに。
主寝室に、お部屋からも廊下からも出入りできる、ウォークインクローゼットをご用意しました。季節のものや家族が共用で使うものなど、ファミリークローゼットとして多目的に使えるようにしています。クローゼット内には、アーツ・アンド・クラフツ運動で有名なウィリアム・モリスの壁紙を使用。アートな気分を味いながらくつろげる寝室です。
ご家族用とお客様用で分けた2WAY仕様の玄関。ラフに靴を脱いでも大丈夫なご家族用と、いつでもスッキリを保てるお客様用で分けました。ご家族用の玄関には、大容量のシューズクロークを設け、R垂れ壁で仕切りました。ベビーカーやゴルフバッグも置け、扉の無いウォークスルータイプなので、外出時はさっと手に取れ、帰宅時はすぐに片付けられる、スムーズな動線です。
明るいグレーを基調に、ダークブラウンの石目調の外壁をアクセントに、カジュアルながらも軽くなりすぎないよう演出しました。玄関ドアと自転車を置けるポーチを壁で隠すことで、見た目をすっきりおしゃれにしています。家の中が見えないことで、プライバシーを守るだけでなく、防犯や飛び出し防止策にもなるようにしています。(写真左側)
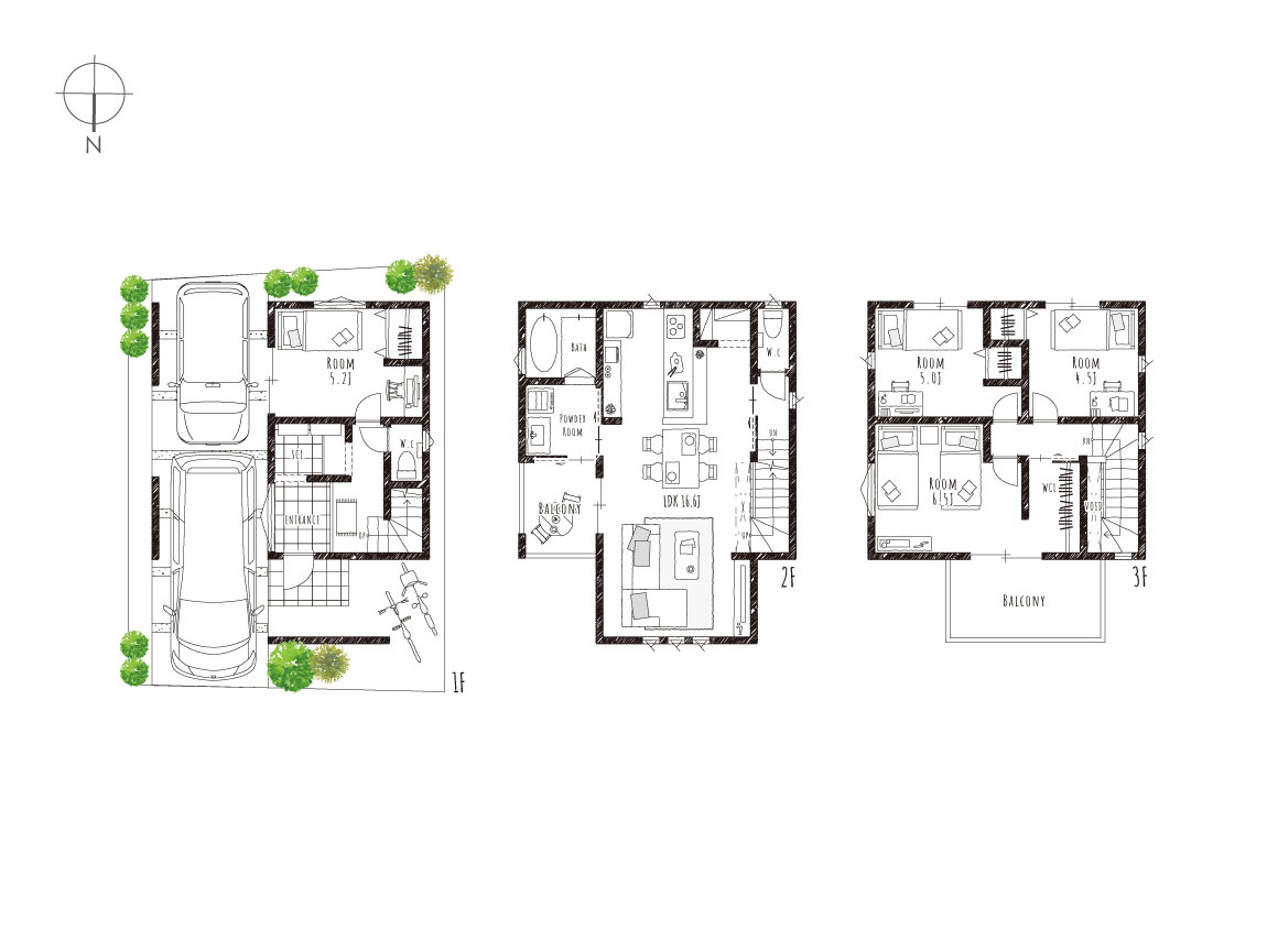
そこまで広くはない敷地で、2方向に比較的古い建物があり、もう一方に3階建を新築中という状況で、駐車スペースをしっかり2台分確保しながら4LDKにするため、レイアウトに苦労しました。また、「いかに隣地を気にせず光を取り入れられるか」「いかにリビングを広く見せられるか」「各々の空間の広さを確保しつつ生活し易く、見どころのあるプランにできるか」という所で工夫を凝らしました。
