自然に会話が弾む家

キッチンを中心に家族がLDKに集まり「自然に会話が弾む」お家が完成しました。キッチンのすぐ横にダイニングテーブルとカウンターがあり、夫婦でお酒を飲みながら料理をしたり、食器を洗いながら子どもの宿題を見たり、出勤の支度をしながら朝食を準備したり、配膳や後片付けもすぐ横に置くだけで簡単に。ワークカウンターはL字型になっており、PCコーナーと子供の宿題コーナーに分けられる広さなので、ダイニングと合わせて大人数での食事もできます。軽やかな木目と白をベースに、黒やグレー、コンクリートやタイルなどの素材を感じさせるクロスやブラックアイアンの手すりなどで、少しインダストリアルなテイストを加えた内装は、カフェみたいな雰囲気。一緒に食事の準備や後片付けを行うことで、家族の連帯感が高まり、キッチンを中心に人が集まり自然に会話が弾む、そんなお家にしています。

WORKS
THANK YOU

MODEL HOUSE 115

    • 所在地

      THANK YOU
    • 間取り

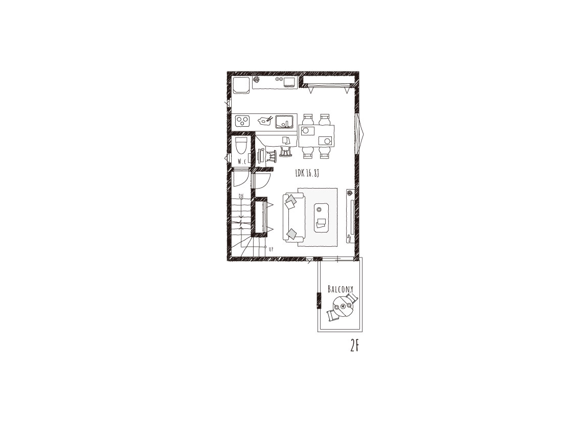
      4LDK
    • 敷地面積

      72.84m²(22.03坪)
    • 延床面積

      106.65m²(32.26坪)
  • 家族の集まるダイニングキッチン 

    キッチン前にワークカウンターを設け、横並びにダイニングを配した、家事や仕事をしながら家族とコミュニケーションの取りやすいつくり。リビング階段にもなっているので、生活の中で自然とリビングを通ります。帰宅して「カウンターにちょっと座って」→「キッチンにいるママやリビングで過ごす家族と、今日あったことを少し話して」→「3階の自室に着替えに行く」そんな様子が目に浮かびます。忙しい毎日の中でもコミニュケーションが取りやすくなり、すぐそばで子どもたちを見守ることができますね。

  • 家族で使えるワークカウンター

    キッチン前に設けた、L字型のワークカウンター。お料理をしながら子どもの宿題を見たり、小さいうちはお気に入りの絵本を読み聞かせたりする場所にぴったり。複数人で並んで使うこともできるので、PCを設置して、子どもが宿題する横で在宅ワークなどもできます。キッチンからもリビングからも近いので、家事の合間に本を読んだり、お茶を飲んだり、ホッとひと息つけるスペースとしても。

  • ナチュラル×インダストリアル

    ウォッシュドオークのフローリングに白をベースとした、全体的に明るく軽やかでナチュラルなテイスト。黒やグレーを差し色に使い、コンクリートやタイルなどの素材を感じさせるクロスや、ブラックアイアンの手すりなどで、少しインダストリアルなテイストを加えています。お気に入りのカフェを思い出させるような、おしゃれで居心地の良いお家になりました。

  • ちょこっとインダストリアルなキッチン

    複数人が並んで調理できるⅠ型キッチンに、カップボードと壁一面にパントリーを備えた、収納力もある使いやすいキッチン。調理中の気になる匂いや油の飛び散りも、前面が壁になっているので気にせず料理ができ、来客があっても冷蔵庫やゴミ箱も奥に見えづらくなっていて安心◎ブラックのヴィンテージメタル柄のキッチンとタイル調クロスで、ちょこっとインダストリアル風のキッチンに仕上げました。

  • アイアン手摺りのある玄関

    毎日帰ってくるのが楽しくなる、かわいいブラックアイアン手摺りのある玄関は、おしゃれなだけでなく収納力も◎ 奥行のあるシューズクローゼットは、土間収納になっていて、靴はもちろん、棚板を外せばベビーカーやゴルフバックなどもそのまま収納できます。階段下にも収納があり、ゴチャつきがちな玄関もすっきり片付き、いつもきれいな状態でお客様をお迎えできますね。

  • シンプルナチュラルな外観

    2棟並んだ双子みたいなお家の右側、ホワイトの石目調×木目調の外壁でシンプルでナチュラルなお家。すっきりしたデザインの中に、窓枠とバルコニーがアクセントになったかわいい外観ながら、自動車も2台駐車可能です。

TOP