こだわりを詰め込んだ、ナチュラルモダンな家

たくさんのこだわりを詰め込んだお家が完成しました。1階の「ベンチ付きの2WAY玄関」をはじめに、洗面室には「乾太くん(ガス衣類乾燥機)」を設置し、扉付きの収納もご用意。生活のメインとなる2階LDKには、「グレー×ホワイト×木目」のキッチンや、吹抜け階段と組み合わせた開放感あるリビング、テレビ裏の回遊できるパントリー兼リビング収納にスタディコーナー、生活シーンに合わせて明るさや色を使い分けられる間接照明など、日々の暮らしを豊かにするものを詰め込みました。ゆとりある適材適所の収納で、自然と片付き、スッキリとした空間で気持ちよく過ごせるようにしています。外観、内装ともに「ホワイト×木目」をベースにした、飽きのこないナチュラルモダンテイストに仕上げました。

WORKS
THANK YOU

MODEL HOUSE 170

    • 所在地

      THANK YOU
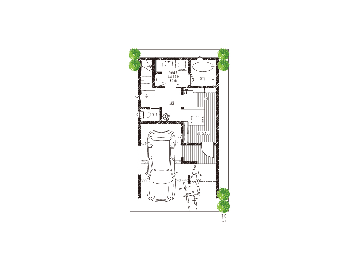
    • 間取り

      3LDK
    • 敷地面積

      63.44m²(19.19坪)
    • 延床面積

      100.17m²(30.30坪)
  • 個室感あるキッチン

    キッチンを囲む壁を「グレーのクロス+垂れ壁+折り下げ天井」でゆるく仕切られ、ちょっと個室感のある空間にしました。こもり感があるのでお料理に集中できて、「来客が多く生活感を見られたくない」という方にぴったり◎。また、キッチン背面にはオープン棚を設けました。使い勝手が良く、お気に入りの食器や調理器具を飾れば、キッチン空間をより楽しく、おしゃれに演出できます。

  • 開放感いっぱいの吹抜け階段

    吹抜け階段には、印象的なアルミ手すりとボール型の照明で、スタイリッシュなデザインに。南側に大きな窓を設けたため、たくさん光を取り込み、明るく開放的な空間になっています。また、リビング階段は、帰宅して必ずリビングを通って3階に上がることになり、自然と顔を合わせる機会が増えるつくり。家族の毎日の様子も気付きやすく、「ただいま」「おかえり」も言い合え、お友達が遊びに来た時は、お話しする機会もつくれそうですね。
    ※階段手すり後日設置予定

  • 便利な回遊収納とスタディカウンター

    キッチン横には、回遊できるパントリー兼リビング収納を施しました。壁一面に可動棚を設けているので、ストック品から子どものおもちゃ、掃除道具など用途に合わせて、高さを変えられるようになっています。また、キッチンからもよく見える、リビングの一角に、スタディカウンターをご用意しました。料理中、子どもが宿題をやっていても、わからないところがあれば、すぐにかけつけられます。

  • 生活シーンに合わせて調節できる照明

    リビングには、調光調色機能が付いた間接照明と、美術館やカフェのような「光の山」を演出する、壁際ダウンライトを施しました。間接照明は、空間に奥行きを与えるだけでなく、壁や天井もフラットになり、すっきり広く見えます。直接光源が目にふれないのでリラックス効果も◎。「家族が集まる」「映画鑑賞」「家族がくつろぐ」など、生活シーンに合わせて明るさや色を使い分けて、より心地よい空間にアレンジできます。

  • 家事ラクが叶う洗面脱衣室

    1階の洗面脱衣室に、乾太くん(ガス乾燥機)をご用意しました。洗濯したものをすぐ上にある乾燥機に入れることができ、お洗濯がラクに。サイドに扉付きの収納を備えているので、タオルや下着、パジャマなどを収納すれば、お風呂に入るタイミングで、必要なものがそろって便利です。また、サイドには、可動棚も設けたので、洗剤やストック品をスッキリ整理できます。

  • ベンチのある2WAY玄関

    家族用とお客様用を分けられる2WAY仕様の玄関。入ってすぐのところに、ホールまで続く横長のベンチをご用意しました。子供を座らせて靴を履かせたり、来客時におしゃべりを楽しんだり、ちょっとした荷物を置いたりと様々な使い方が出来ます。玄関奥には、シューズクローゼットだけでなく、コートなどを掛けられるハンガーパイプも設けており、服についた花粉などを家の中に持ち込む心配もありません。また、玄関正面にはニッチがあり、思い出の写真や、好きなインテリアを飾ると、さらにおしゃれな空間に。

  • ナチュラルモダンな外観

    微妙に色味と質感の異なる2種類の白×木目調サイディングをアクセントに、内装とリンクしたナチュラルモダンな外観。スッキリとしたシルエットで、永く飽きのこないデザインに仕上げました。また、インナーガレージになっているので、雨の日のお買い物も濡れるのを気にせず荷物を運べます。

The Architect’s Voice

リビングには、生活感が出るものをまとめて収納できるテレビ裏の収納スペースや、スタディコーナーを設け、回遊できる動線とすることで、利用しやすく、スッキリと見せる間取りの工夫を行いました。2階建てに囲まれている敷地でしたので、3階の各部屋は明るく、吹抜け階段を利用して、2階にも南側から採光を取り入れる計画としました。また、階段の手摺を抜け感のあるアルミ手摺にしたことで、ダイニングがより明るく、居心地の良い空間となっております。

TOP