住み心地のいい、シャビーナチュラルな省エネ住宅

暮らしやすいシンプルな動線に、使いやすくてたっぷり設けられた収納スペース、快適に住まえる「省エネで高断熱」なお家が完成しました。帰宅すれば、ゆとりある玄関が迎えてくれ、その横にはおしゃれなペンダントライトが彩る造作洗面。2階のLDKはコンパクトながら、2人座れるカウンターや隠す収納を多く設け、スイッチニッチやカーテンボックス、間接照明を取り入れ、細部にまでこだわりました。家事が時短になるよう、キッチンは奥行あるメラミン素材のカウンターを施し、お手入れも使い勝手も◎。お洗濯は「乾太くん」に任せて、自分時間もしっかりとれるように考えました。内装は、グレイッシュカラーをふんだんに取り入れ、やさしい印象の上質でくつろげる空間にしています。

WORKS
THANK YOU

MODEL HOUSE 165

    • 所在地

      THANK YOU
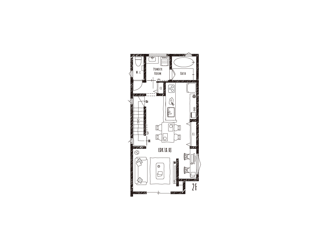
    • 間取り

      3LDK
    • 敷地面積

      61.49m²(18.60坪)
    • 延床面積

      100.18m²(30.30坪)
  • 「ただいま手洗い」と「ひろびろ玄関」

    帰ってきてすぐ「手洗い・うがい」ができ、お客様にもためらわずに使っていただけるセカンド洗面と、ベビーカーもそのまま置ける奥行きのある広々玄関。玄関脇にあるので、手洗い習慣も付きやすく、主寝室からも近いので、寝る前や身支度の時に、わざわざ2階に上がる手間も省けます。また、お客様を迎えるスペースに設置しているので、インテリア性のあるカウンターとペンダントライトを選びました。

  • 一体感ある、カウンターキッチン

    ほど良い高さで、ダイニングとの一体感を出し、対面部分には羽目板をあしらった、オリジナルの造作キッチン。カウンター部は、傷や熱に強いメラミン素材のものを取り入れ、お手入れも楽ちんです。奥行きを広めにとっているので、夫婦でお酒を楽しみたい時は、雰囲気を変えてバーカウンターとしても。カップボードのオープン部には、マグネットを貼ることができ、ごちゃつきがちな調味料やキッチンのメモなどを収納しつつおしゃれに飾れ、お料理中の気分も上がりますね。

  • 配膳らくちん、横並びダイニング

    横に移動するだけで配膳や後片付けができる、横並びダイニング。キッチン側に子どもを座らせて、家事をしながら子どもにご飯を食べさせることもできます。ダイニングの背面には収納を設け、調味料やストック用品など、ごちゃごちゃしたもの隠すことができ、すっきりと暮らせます。

  • フレキシブルに使える、リビングカウンター

    LDKの一角に、2人が並んで座れる広さのカウンターを設けました。キッチン・ダイニングから目の届くところにあるので、子どもが宿題したり、ちょっと作業がしたい時やご家族で使うPCコーナーにピッタリ。造り付けの書棚もあるので、ここをランドセルや教科書置き場にしておけば、宿題をやるときにも移動することなく勉強もはかどりそうです。リビングからは見えないので、多少散らかっていても気にならないのも嬉しいポイント。

  • シャビーナチュラルテイスト

    明るさと広がりをもたせたアイボリー色の床材に、グレージュの建具を合わせた、温かみあるやさしく大人っぽいテイストのお家です。ドアの取っ手や照明器具には、真鍮をあしらったものを施し、上品で落ち着く雰囲気に仕上げました。

  • ZEH 水準省エネ住宅

    省エネ住宅は、従来の住宅と比べて断熱性や気密性が高く、防露や換気性能にも優れています。さらに断熱性能をZEH 基準まで高めたことで、一年を通して快適な住環境を保ち「冬は暖かく夏は涼しい」家族の健康にもつながる住まいです。
    ※写真はイメージです。

  • YouTubeにてルームツアー動画を公開中

The Architect’s Voice

明るさと広がりを持たせたアイボリー色の床に、木目柄の建具を際立たせた温かみのあるラスティックな雰囲気の内装に、暮らしやすい広さと動線計画に加え、充実した設備や収納計画など、妥協なく細部にまでこだわったお家をつくりました。生活スペースを広く確保するため、2階はバルコニーをあえてなくしてLDKを広く取っています。併せて、洗面室に衣類乾燥機を設置することで普段の洗濯作業は3階まで干しに行く手間を無くし、2階で生活も家事も完結できるよう計画しました。

TOP