空間を有効活用した、スキップフロアのあるお家

家族が集まる2階のLDKは、白を基調にした明るい空間。そのLDKからプライベートスペースである3階へと、スキップフロアでつながるオープンなつくりのお家です。2階から3階へ向かう途中の踊り場にはカウンターを設け、リビングで過ごす家族の気配を感じながら、子どもたちが集中して勉強できるスタディコーナーに。スキップフロアの下には、約2帖ほどの収納スペースを設け、子どもたちが秘密基地のように楽しめる遊び場としても活用できます。限られた空間の中でスキップフロアを採用することで、プラスアルファの空間を生み出し、住まいに広がりをもたらすと同時に、家族のコミュニケーションを豊かに育む住まいになりました。

WORKS
THANK YOU

MODEL HOUSE 176

    • 所在地

      THANK YOU
    • 間取り

      3LDK
    • 敷地面積

      60.30m²(18.24坪)
    • 延床面積

      101.43m²(30.68坪)
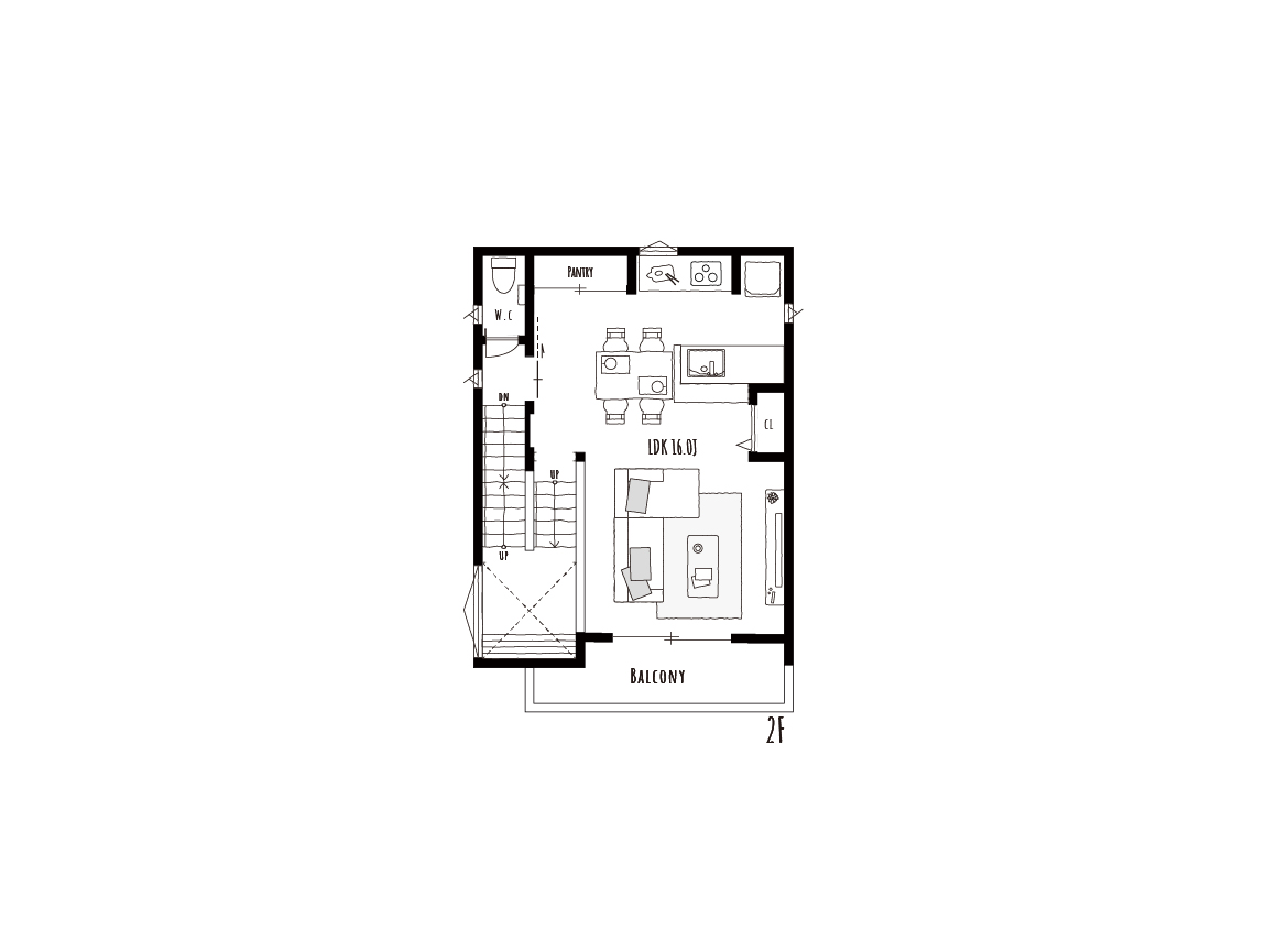
  • スキップフロアを採用したLDK

    LDKから3階へとつながる階段の途中には、スキップフロアを採用しました。上部はスタディコーナーやワークスペースとして、おこもり感のある下部は収納や子どもたちの遊び場として使用できます。空間を立体的に活用することで、ゆるやかにつながる開放的なスペースを演出します。

  • お料理が楽しくなるⅡ型キッチン

    コンロとシンクを分けて2列に並べたⅡ型キッチンは、コンロからシンクへの移動も振り返るだけ。スペースが広くて作業分担もしやすいので、子どもも楽しくお料理のお手伝いができます。食器や家電、食品のストックなどは、すぐ横のパントリーにしっかり収納できます。

  • シューズクローゼットのある玄関

    お客さまを気持ちよく迎えることができるよう、玄関横にシューズクローゼットを設けました。来客時に玄関が散らかっていても、サッと片付けて扉を閉めれば中を見られることもありません。玄関正面に設けたニッチには、お花やお気に入りの小物を飾って素敵な玄関を演出できます。

  • 収納を豊富に設けた洗面室

    少し広めの洗面室には、可動棚とカウンターを設置しました。上部の可動棚は洗剤のストックやリネン類をすっきり収納でき、下のカウンターは洗濯物を畳んだり、アイロンがけをしたりするワークスペースとして活用できます。置き場所に困りがちなランドリーボックスも、カウンター下にすっきり収まる、使い勝手のいい空間です。

  • たっぷり収納でリラックスを叶える主寝室

    主寝室には、大容量のウォークインクローゼットと造作カウンターを設けました。ご夫婦のオールシーズンの洋服をすっきり収納でき、中でゆったりと洋服を選べる十分なスペースを確保しています。隣のカウンターはメイクスペースとしても活用できるので、お出かけ前の準備をこの部屋でリラックスして整えることができます。

  • 3階ホールのセカンド洗面

    朝の身支度や就寝前の歯磨きの際に便利なセカンド洗面は、階段を降りなくても寝室と同じフロアで利用できて便利です。お家の中に洗面スペースが2つあれば、朝の忙しい時間帯の混雑の解消にもなり、ゆっくりと余裕をもってお出かけの準備ができます。