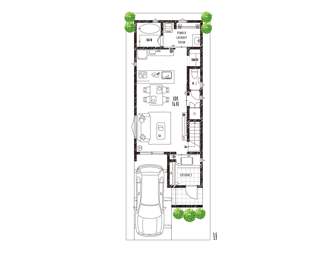
家族との時間をもっと大切にするために、家事を効率よくこなせる工夫を取り入れたお家にしました。1階の奥に水廻りをまとめることで、キッチンから洗面室への移動がとてもスムーズになり、日々の家事の負担が軽減されます。さらに、キッチン部分に折り下げ天井を採用することで、LDK全体に広がりを感じさせ、家族みんなが集まるリビング・ダイニングにより一層の開放感をプラスしました。フルフラットの対面キッチンは、リビング・ダイニングでくつろぐ家族と会話を楽しみながらお料理ができるのが魅力です。また、リビング階段を採用することで、自然と家族のコミュニケーションが増えます。家事を効率化し、家族と過ごす時間をしっかり確保できる、家族みんなに優しい住まいです。
キッチンには折り下げ天井を取り入れ、立体感のあるデザインで空間にメリハリをプラスしました。リビング・ダイニングとは緩やかに仕切られているので、落ち着いた雰囲気も楽しめます。天板はフルフラットで、配膳やお片付けもしやすく、家族みんなが自然と手伝いたくなる作りになっています。
南側と西側に設けた窓からたっぷりと陽光が差し込む、明るく心地よい開放感に包まれるリビングです。また、リビング階段を採用することで、家族が顔を合わせる機会が自然と増え、「ただいま」「おかえり」の何気ない会話が生まれる、温かな空間になっています。
ご夫婦の衣類から小物類、スーツケースのような大きなものまでたっぷりと収納できるウォークインクローゼットを主寝室に設けました。大きな収納を設けることで、室内空間を広くゆったりと使用できます。また壁面に取り付けた造作のカウンターは、書斎スペースやドレッサーとして重宝します。
玄関前は壁が目隠しとなり、道路側からの視線をカットすることでプライバシーに配慮しています。玄関内には大きなシューズクロークに加えてハンガーパイプを設置しているので、アウターをかけておけばお出かけの時にサッと羽織ることができてとても便利です。
主寝室からつながる奥行きのあるバルコニーは、南向きで明るい陽射しと爽やかな風に包まれるます。洗濯物を干す場所としてだけでなく、ご夫婦でお酒を楽しんだり、コーヒーを飲みながら本を読んだりと休日のリラックスタイムを存分に満喫することができるでしょう。