南向き吹抜けリビングと収納充実の家

南向きで明るく開放的なこの家は、各階に豊富な収納を備え、ご家族の快適な暮らしを実現します。2階には吹抜けによる開放感あふれるリビングを配置し、心地よい自然光が注ぎ込みます。リビング横のバルコニーは、外の風を感じながらくつろげる空間に。同フロアのランドリールームからの動線も考慮し、家事もスムーズです。1階の主寝室には、整理整頓のしやすいウォークスルークローゼットを完備。3階には広いバルコニーと、ウォークインクローゼット付きの2つの洋室を設け、ご家族それぞれの収納ニーズに応える充実のプライベート空間を確保しています。

WORKS
THANK YOU

MODEL HOUSE 179

    • 所在地

      THANK YOU
    • 間取り

      2LDK+S
    • 敷地面積

      62.83m²(19.00坪)
    • 延床面積

      94.08m²(28.45坪)
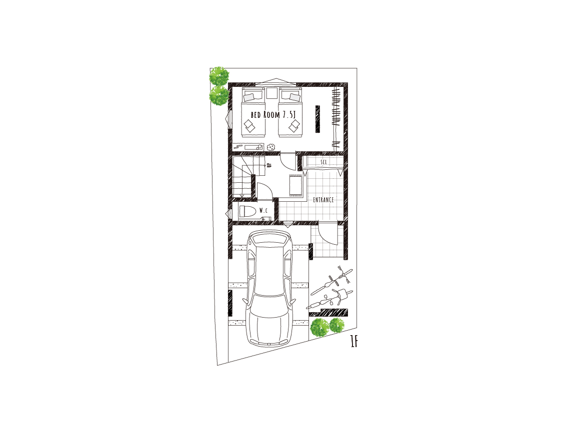
  • 広々と使用できるL字型玄関

    お子様と並んで靴の脱ぎ履きができ、ゆとりある動線を確保したL字型玄関。通り抜けもスムーズで、混雑時でもスペースに余裕があります。広い土間スペースは、ベビーカーや傘立ての設置にも対応できる実用的な設計です。

  • 便利なウォークスルークローゼット

    出入口を2ヶ所設けた、動線の良いウォークスルークローゼット。充実した収納力で居室をすっきりと保てます。主寝室に直結しているため、着替えもクローゼット内で完結できる機能的な設計です。

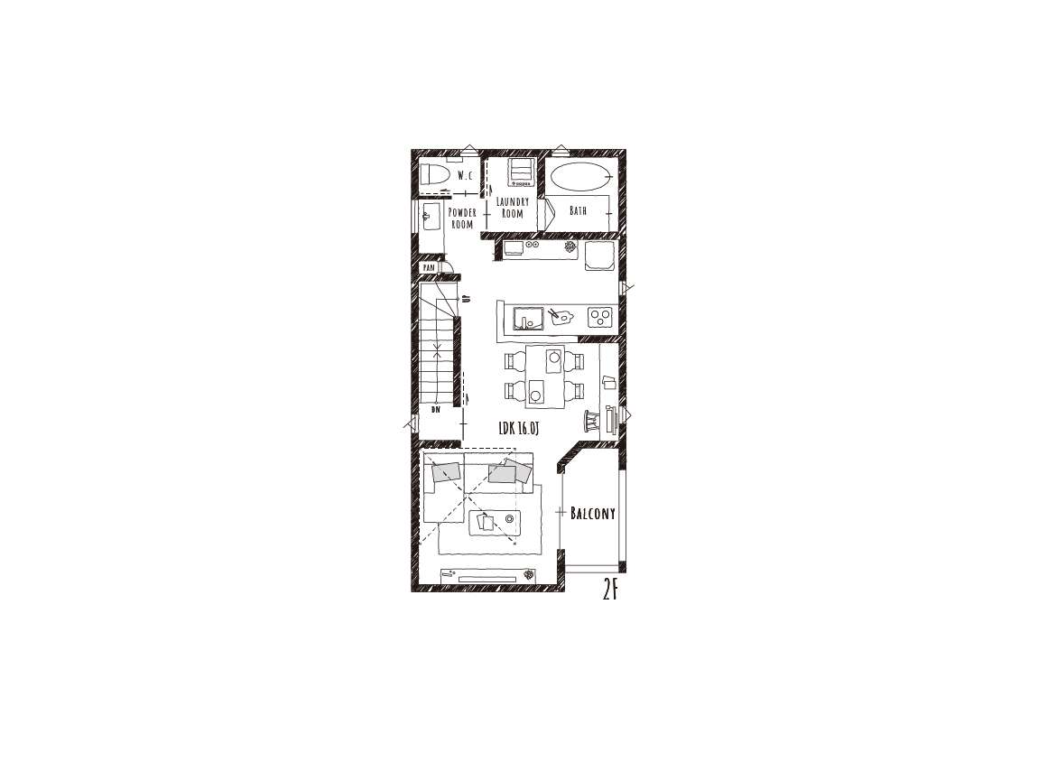
  • セパレートにした洗面・脱衣室

    洗面化粧台をリビングの一角に配置。脱衣室と分離することで、入浴中の家族を気にせず利用できます。来客時も脱衣室を隠せるため、プライバシーに配慮しながら快適にご利用いただける設計です。

  • 開放感たっぷりの吹抜けリビング

    3階の南向きの大きな窓から、心地よい陽光が注ぐ吹抜けリビング。縦方向に広がる空間が、くつろぎの場所を明るく開放的に演出します。吹抜けを介して3階の子どもたちとの会話も自然と生まれ、家族のコミュニケーションを育む空間となっています。

  • ダイニングに設けたスタディコーナー

    ダイニングの背面に、豊富な収納と造作カウンターを備えたスタディコーナーを配置。キッチンからお子様の学習姿勢を見守れる設計で、パソコンやプリンターを設置してワークスペースとしても活用できる多目的な空間です。

  • 収納充実の3階居室

    3階の2つの居室には、それぞれウォークインクローゼットを完備。各部屋に大容量の収納を確保することで、オールシーズンの衣類を自室で管理でき、衣替えもスムーズです。大型収納に対応した設計により、居室空間を広々と活用できます。

TOP