開放的な空間を楽しむリビングのあるお家

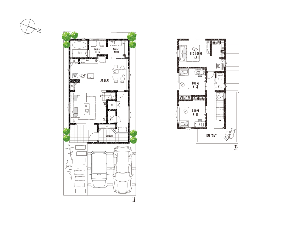
1階の中心となるLDKは、17.4帖の広々空間。家族みんなが集まって、食事をしたり、くつろいだり、思い思いの時間を過ごせます。リビングから繋がるテラスは、玄関ポーチと一体化しており、リビングの延長として使える開放的な空間。天気の良い日は、テラスでブランチを楽しんだり、お子様の遊び場にしたりと、暮らしに彩りを添えてくれます。キッチンからすぐに行ける洗面・脱衣室は、ランドリールームとしても使える広々設計。ガス衣類乾燥機「乾太くん」やハンガーパイプも備え付けられているので、雨の日や夜間でも洗濯の心配はいりません。いつでも快適に洗濯ができるので、家事の負担も軽減されます。2階には、8.0帖のゆったりとした主寝室と2つの洋室をご用意。それぞれのプライベート空間を確保しながらも、家族の繋がりを感じられる間取りです。階段を上がってすぐに出られるバルコニーは、洗濯物を干すだけでなく、ちょっとした休憩や読書など、心地よいアウトドア空間としても楽しめます。家事ラク動線と充実の設備で、毎日の暮らしを快適に。家族みんなが笑顔で過ごせる、そんな住まいです。

WORKS
THANK YOU

MODEL HOUSE 169

    • 所在地

      THANK YOU
    • 間取り

      3LDK
    • 敷地面積

      111.86m²(33.83坪)
    • 延床面積

      91.91m²(27.80坪)
  • 二面開口の心地よいリビング

    玄関ポーチと一体化したテラスが、外と中を緩やかにつなぐ開放感に恵まれたリビング。お料理をしながらリビングでくつろぐ家族との会話も楽しめるフラットな天板の対面キッチンや自然な会話を生み出すリビング階段など、家族のコミュニケーションを豊かに育む、家族の笑顔があふれる空間です。

  • 折り下げ天井のダイニング

    玄関から廊下を抜けてLDKに入ると、天井が一段下がった落ち着いた雰囲気のダイニングが迎えます。折り下げ天井が空間にメリハリを与え、奥にあるリビングへより一層の広がりをもたらします。またキッチンとは横並びで、料理の配膳やお片付けも移動が少なくスムーズに行えます。

  • ランドリールームも兼ねた洗面・脱衣室

    広々とした洗面・脱衣室にはガス衣類乾燥機「乾太くん」を設置しました。よく晴れた日はバルコニーでしっかり天日干し、雨の日でも室内干しできるハンガーパイプや「乾太くん」があるから安心です。豊富な収納があり、洗う→乾かす→たたむ→しまうまでの作業がこの場所で完結します。

  • 広く奥行きのある玄関

    広めの土間スペースのある玄関には、ベビーカーやゴルフバッグなど大きなものを置いても十分な広さがあり便利です。LDKへとつながる廊下は一部を折り上げ天井にし間接照明を入れることで、柔らかい光に心が癒され、ONからOFFへと気持ちを切り替えることができます。

  • ゆったりくつろげる広々主寝室

    主寝室には、ウォークインクローゼットの隣に造作のカウンターを設置しました。お出かけ前にクローゼットで洋服を選んで、カウンターでメイクや髪のセットができれば慌ただしい朝の身支度もスムーズに。在宅ワークなどをこなしたり、読書を楽しむ書斎スペースとしても活用できます。

  • L字型の広々バルコニー

    2階の廊下から直接アクセスできるL字型の大きなバルコニーは、外と中をスムーズに行き来ができ、たくさんの洗濯物を干したり取り込んだりするのもラクラクです。ガーデニングや家庭菜園を楽しむのにも十分な広さです。

TOP