2階LDKに設けた吹き抜けが心地よく、とても明るく開放感あふれるお家です。シューズクローゼットのある玄関ホールや、吹き抜けのあるダイニング、折り上げ天井を採用したリビング、プライバシーをしっかり確保できる約3帖の3階バルコニー、そしてすべての居室が6.5帖以上と、建物の間口からは想像できないほど広々とした空間が広がっています。この広がりのある空間が、家族で過ごす時間やプライベートなひとときをより豊かにし、心と体を癒してくれます。外観はブラックを基調としたスタイリッシュなデザインで、室内も黒とグレーをベースにまとめた、落ち着きのあるクールでかっこいい住まいです。
玄関には、靴の脱ぎ履きが楽になり、来客時にはちょっと腰掛けて会話を楽しめるベンチを設けました。ご家族用の玄関としても使えるシューズクローゼットには、ウェーブカーテンを設置。玄関収納に物が多くなりがちでも、サッと隠せるので、いつでもスッキリとした空間を保てます。
主寝室に入ってすぐのカウンタースペースには、上部にウォールキャビネットを設置しています。一人の時間を楽しむ趣味スペースや、ワークスペースとしても活躍する便利な空間です。ベッドの上には腰壁を設けているので、お気に入りの小物を飾ったり、自分好みにコーディネートして、落ち着きのある空間を演出できます。
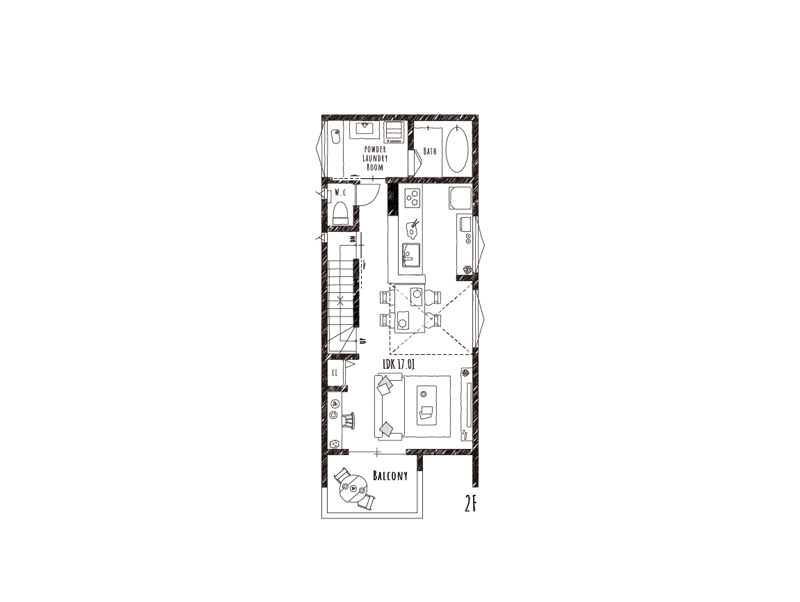
ネイビーのアクセントクロスが印象的な対面キッチン。お家のメインカラーでもある深いネイビーが、LDK全体を落ち着いた雰囲気でまとめています。キッチンの腰壁に設けたニッチは、ダイニングテーブルと高さを揃えており、小物を飾るスペースとしても活用でき、空間を最大限に有効活用できます。
リビングに折り上げ天井を設けることで、より独立した空間を実現しました。梁がアクセントとなり、立体感のあるデザインが魅力です。また、リビングの一角にはカウンターを設置しているので、家族や友人が集まる中でも、落ち着いて一人の時間を楽しむことができます。
ダイニング上部の吹抜けは、照明で壁面をやさしく照らし、明るさと洗練された雰囲気を演出します。日中は上部から降り注ぐ太陽の光を楽しみ、夜はライトアップされた心地よい空間が、家族の食事の時間をより豊かに彩ります。
少し広めの洗面室には、アイロンがけや洗濯物を畳める便利なカウンターを設置。上部には棚もあり、かさばるタオル類の収納に役立ちます。また、同じフロアにバルコニーがあるので「洗う→干す」の移動がスムーズで、家事の負担を軽減してくれます。
建物全体を通して、すべての階に見せ場を設けました。1階は入ってすぐニッチとベンチ、奥に広めのシューズクローゼット。主寝室にはキャビネットと引き出しのあるカウンタースペース。2階には入ってすぐのキッチンカウンターや折り上げ天井と吹抜け。3階はプライバシー確保ができる約3帖のバルコニー。モデルハウスを見に来て頂ければ、きっとご家族全員喜んで頂ける物件と自負しています。
