忙しい毎日の中でも、家族みんながゆったりと過ごせる時間を大切にできるお家ができました。洗面室と脱衣室を分けることで、毎日の使い勝手を良くしただけでなく、ガス衣類乾燥機「乾太くん」を備えたランドリールームが家事の時短を叶え、暮らしに余裕が生まれます。2階のリビングは、天井まで広がる吹き抜けが開放的な空間を作り出し、隣の畳コーナーではお子さんと一緒にお昼寝を楽しんだり、家族でほっと一息つくこともできます。3階の2つの洋室は、子どもたちが小さいうちは広い1部屋として使い、成長に合わせて2部屋に仕切ることも可能です。家族の成長やライフスタイルの変化に柔軟に対応しながら、みんながゆったりと心地よく暮らせるお家になりました。
お客様を気持ちよくお迎えできるように、玄関にはたっぷり収納できるシューズクローゼットを設け、いつでもスッキリとした空間を保てるようにしました。クローゼットにはコートなどをかけられるハンガーパイプも付いているので、外出時にサッと取り出せてとても便利です。
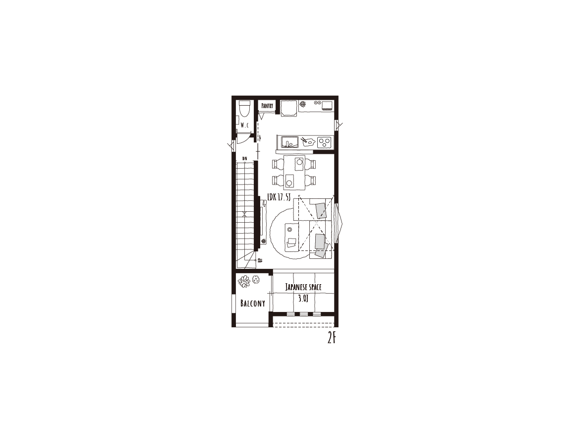
脱衣室には扉があるので、誰かが入浴中でも気兼ねなく洗面化粧台を使えます。また、ガス衣類乾燥機「乾太くん」を備えたランドリールームにはカウンターを設置。ここでアイロンがけや衣類を畳む作業ができるので、洗濯に関する家事がこのスペースで全て完結します。日々の家事がスムーズになり、快適に過ごせる工夫が詰まっています。
リビングやダイニングにいる家族と会話を楽しみながら料理ができる、開放感のある対面キッチンです。カウンタータイプのカップボードや、上部に設けた棚には、お気に入りの食器やおしゃれなキッチン家電をディスプレイする「見せる収納」が可能。自分好みのスタイルで、キッチンをより個性的で楽しい空間にカスタマイズできます。
2階に配置したリビングは、外からの視線を気にせず、ゆったりとくつろげるプライベートな空間です。上部の吹き抜けが開放感を演出し、家族みんながのびのびと過ごせる場所になっています。また、3階のホールともつながっているので、上の階にいる子どもたちの気配を感じながら安心して過ごすことができます。
縦長のスリット窓から差し込む柔らかな光が、和の落ち着いた空間を優しく包み込み、安らぎを感じさせます。キッチンからも見渡せるので、子どもたちが遊んでいる時やお昼寝をしている時も、お料理をしながら見守ることができ、安心して過ごせます。
南側にバルコニーを配置した、明るく開放的な主寝室には、ウォークインクローゼットとワークカウンターを設けました。ウォークインクローゼットにはたっぷりと衣類や小物を収納できるので、お部屋を広々と使えます。ワークカウンターは、PC作業や読書スペースとしても活用でき、快適で使いやすい空間です。