勾配天井が開放感をもたらす、陽光降り注ぐ2階リビングの家

心地よい開放感とたっぷりの陽射しに包まれた空間で、家族みんなが楽しいひとときを過ごせるお家です。LDKを2階に配置することで、縦への広がりも演出できる勾配天井を実現。リビングの天井高は最大2.9mで、開放感いっぱいのスペースになっています。そんなリビングの一角には、ほっこりと落ち着くことのできる小上がりのヌックを設けました。子どもと並んで座って絵本を読み聞かせたり、午後のティータイムにリラックスしたり、夜にはゆっくりと夫婦でお酒を楽しんだりといろいろな使い方が可能です。1階はそれぞれがプライベートな時間をゆっくり過ごすことができる空間、2階は家族がみんなが楽しい時間を共有できる空間とメリハリのある暮らしができる住まいです。

WORKS
THANK YOU

MODEL HOUSE 197

    • 所在地

      THANK YOU
    • 間取り

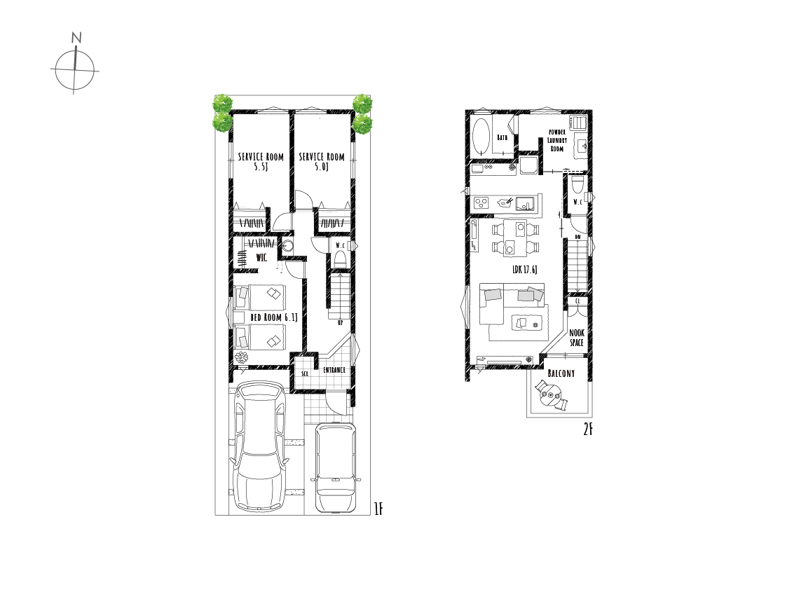
      1LDK+2S
    • 敷地面積

      90.50m²(27.37坪)
    • 延床面積

      88.18m²(26.67坪)
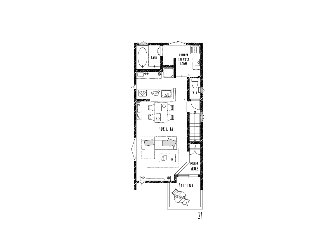
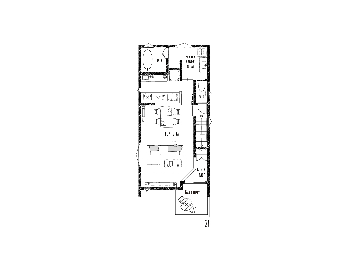
  • のびやかな開放感に包まれる2階LDK

    家族が集まるLDKを2階にすることで、開放感を生み出す勾配天井を実現しました。またダイニング・キッチンの上部を折り下げ天井にすることで、ゆるやかにゾーニングするとともにリビングにさらなる広がりをもたらします。開放的な明るい空間には、家族の笑顔が溢れます。

  • ほっこりできるヌックスペース

    リビングとバルコニーの間に設けた小上がりのヌックは、陽光に包まれる陽だまり空間。バルコニーから取り込んだ洗濯物をゆっくりと畳んだり、午後のひとときにコーヒーを飲みながら読書を楽しんだりと、ゆったりとした時間が流れる居心地の良いくつろぎスペースです。

  • 土間続きの便利なシューズクローゼット

    家族全員分の靴はもちろん、アウトドア用品やガーデニング用品など少し汚れが気になるものの収納にもぴったり。ベビーカーをたたまず置けたり、ゴルフバッグなど大きなものも収納できます。ロールカーテンなどを設置すれば、来客時にもキレイな玄関で気持ちよく迎えられます。

  • 快適な水廻り動線で家事もラクラク

    キッチンのすぐ後ろに洗面室があるので、家事のための移動が少なくて快適です。また同じフロアにバルコニーがあるので「洗う→干す」の動線もスムーズ。乾いた洗濯物を取り込んだ後はヌックで畳んだりとワンフロアでほとんどの家事ができる時短が叶うプランニングです。

  • 1階廊下に設けたセカンド洗面

    各居室の真ん中にセカンド洗面を設置しました。わざわざ洗面室まで行かなくても手洗いやうがいができたり、掃除のために2階にあがらなくても水が使えて便利。洗面台が2ヶ所にあれば、込み合う朝の時間帯でも2階と分かれて洗面台を使えるので余裕をもって身支度できます。

  • 広々使えるウォークインクローゼットのある主寝室

    ご夫婦の衣類やバッグなどの小物類も整理整頓してしまえるので、室内はいつもスッキリ保てます。普段あまり使用しないスーツケースや季節モノの家電、布団など衣類以外のかさばるものもしっかりと収納できます。スッキリとした空間でプライベートタイムをゆったり過ごせます。

TOP