開放感溢れる折り上げ天井、家族が自然と集まるリビングの家

南向きの大きな窓からたっぷりと陽光が差し込む、家族の笑顔があふれるリビングが魅力のお家です。昼間はやわらかな自然光がリビングを明るく照らし、夜になると折り上げ天井に仕込んだ間接照明が優しい光で空間を包み込みます。さらに、リビング上部に取り入れた折り上げ天井は、空間に開放感をもたらし、LDK全体に広がりを感じさせてくれます。また、キッチンと洗面・脱衣室を近くに配置することで、家事がスムーズになる動線を実現しました。家族みんなで使えるファミリークローゼットや、主寝室のウォークインクローゼットなど収納スペースもしっかりと確保しています。毎日の暮らしが快適になる工夫を凝らした、自然光とやさしい照明が織りなす開放的な空間に心が落ち着く住まいです。

WORKS
THANK YOU

MODEL HOUSE 193

    • 所在地

      THANK YOU
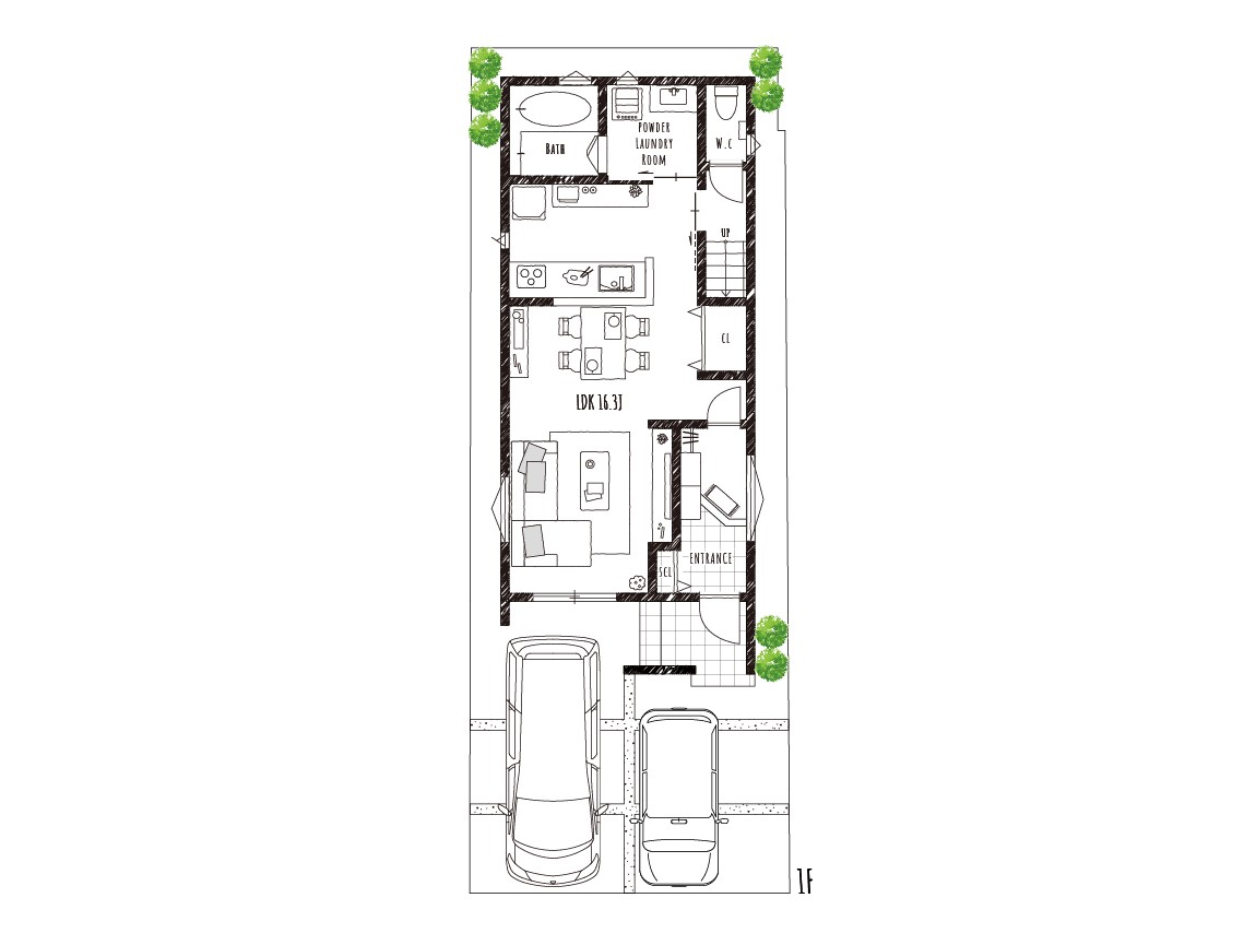
    • 間取り

      1LDK+2S
    • 敷地面積

      91.38m²(27.64坪)
    • 延床面積

      85.08m²(25.73坪)
  • 天井高約2.6mの開放感に包まれるリビング

    南側の大きな窓から明るい陽光が差し込むリビングは、折り上げ天井がさらなる開放感を空間にもたらします。テレビ上部に取り付けた間接照明が柔らかな光でリビング全体を優しく包み込み、チャコールのエコカラットが豊かな表情を見せながら、上品で落ち着いた雰囲気を演出しています。

  • スタディコーナーのあるダイニング

    ダイニングの隣には、家族で気軽に使える造作のカウンターを設けました。お料理をしながら、お子さまが勉強をする様子を優しく見守ることができるスタディコーナーとして活用できます。また、パソコンやプリンターを置いて、ワークスペースとしても重宝する多目的な空間です。

  • 優しく迎える玄関ホール

    シューズボックスの下に取り付けた間接照明が、柔らかい光で足元を照らす温かい空間に仕上げました。また、ハンガーパイプを設置しているので、アウターをかけておけば、外出時や帰宅時もスムーズに。実用性と心地よさを兼ね備えた空間が、家族や訪れる人をやさしく迎え入れます。

  • ウォークインクローゼットのある主寝室

    小物や写真を飾って、自分らしさを楽しめる造作のヘッドボードと、グレーや木目調のアクセントクロスが洗練された落ち着きのある空間を演出。また、ウォークインクローゼットにはご夫婦の衣類はもちろん、季節家電などもしっかり収納でき、お部屋を広々と快適にお使いいただけます。

  • みんなで使えるファミリークローゼット

    家族みんなの洋服をまとめて収納できる便利なファミリークローゼット。バルコニーから取り込んだ洗濯物は、主寝室で畳んでそのままファミリークローゼットへ。家族それぞれの衣類を一ヶ所にまとめられるので、必要なものを探しやすく、毎日の暮らしが少し快適になります。

TOP