2階水廻りとⅡ型キッチンを採用の、回遊動線で家事が捗る家

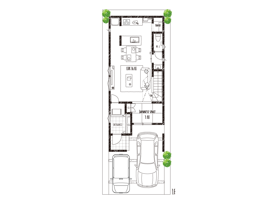
家事も家族時間も大切にできる、こだわりのお家です。毎日の料理が楽しくなるセパレートタイプのⅡ型キッチンは、作業スペースが広く家族みんなで料理を楽しめます。さらに、ダイニングとキッチンはぐるりと回遊できる動線で、移動もスムーズです。水廻りは2階にまとめ、バルコニーへもスムーズにアクセス。洗濯・乾燥・収納が同じフロアで完結するから、家事の負担がぐっと減ります。リビングには、家族の会話が自然と生まれるリビング階段を採用。吹抜けから明るい光が降り注ぐ開放的な空間が、家族の時間を心地よく演出します。さらに、リビング横にはほっとくつろげる畳コーナーを設置。お昼寝や読書、お子さまの遊び場にもぴったりです。暮らしやすさと快適さを両立した、みんなが心地よく過ごせる住まいです。

WORKS
THANK YOU

MODEL HOUSE 191

    • 所在地

      THANK YOU
    • 間取り

      1LDK+2S
    • 敷地面積

      90.51m²(27.37坪)
    • 延床面積

      91.19m²(27.58坪)
  • 回遊できるダイニング・キッチン

    シンクからコンロへの移動は振り返るだけ、調理スペースもゆったり使えるセパレートタイプのⅡ型キッチンを採用しました。回遊動線でキッチンを中心にスムーズに動き回れるので、お料理の効率もアップ。 さらに、食品のストックなどをしっかり収納できるパントリーもご用意しました。

  • 家族の気配を感じられる吹抜けのあるリビング

    「いってきます」「いってらっしゃい」「ただいま」「おかえり」、そんな何気ない挨拶が自然と生まれるリビング階段を採用しました。家族が顔を合わせる機会が増え、会話も弾みます。さらに、吹抜けからはやさしい光が降り注ぐ、家族みんなが集まりたくなる温もりあふれる空間です。

  • ほっこりと心がやすまる和のスペース

    リビングの横には、心がホッと落ち着く小上がりの畳コーナーを設けました。お子さまの遊び場やお昼寝スペースとしてはもちろん、来客時の応接やリモートワークの際に利用するなど、さまざまなシーンで活躍します。和のぬくもりを感じながら、家族みんながくつろげる心地よい空間です。

  • ウォークインクローゼットのある主寝室

    ご夫婦それぞれの衣類をたっぷりと収納できるウォークインクローゼット。季節家電やスーツケースなど大きなものもしまえて、主寝室はいつもスッキリ保てます。片付いた空間なら朝の身支度もスムーズに進み、一日の終わりは心落ち着くゆったりとした時間を過ごすことができます。

TOP