充実の収納と大きな吹抜けが魅力のお家

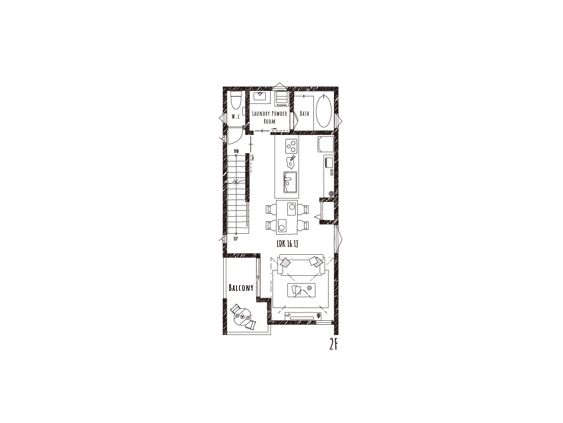
豊富な収納スペースを機能的に設けた、家族みんながのびのびと暮らせるお家です。2階にLDKと水廻りをまとめた、生活の中心をぎゅっと集めた使いやすい間取りです。キッチンとダイニングは横並びの配置で、料理の配膳や後片付けの動線がスムーズ。毎日の家事がちょっと楽になります。リビングの上部には大きな吹抜けがあり、たっぷりとした開放感が魅力です。さらに、東側にはインナーバルコニーがあり、やさしい光が差し込んで、朝の時間も気持ちよく過ごせます。1階の玄関を入ってすぐの場所と、3階の廊下には、それぞれファミリークローゼットを設置。季節のものやよく使うものを分けて収納できるので、とても便利です。スッキリ片付いた空間で、毎日を気持ちよく過ごせる住まいです。

WORKS
THANK YOU

MODEL HOUSE 198

    • 所在地

      THANK YOU
    • 間取り

      2LDK+S
    • 敷地面積

      63.79m²(19.29坪)
    • 延床面積

      99.36m²(30.05坪)
  • のびのび過ごす吹抜けリビング

    上部に設けた大きな吹抜けと東側に配置されたインナーバルコニーから、やわらかな光と風がたっぷり入る心地いいリビングです。ソファはダイニングに背を向けて配置して、少しこもれるような落ち着いた空間に。家族が自然と集まり、のんびり過ごせるあたたかい場所になります。

  • 2階に集約された水廻りスペース

    キッチン、洗面・脱衣室、浴室といった水廻りを2階に集約することで、家事の動線がスムーズになり、日々の作業がより効率的に行えます。また、キッチンのすぐ隣にダイニングを配置しているので、料理の配膳や後片付けも楽になり、暮らしやすさがさらにアップします。

  • ご家族の成長に柔軟に対応できる3階の洋室

    お子さまたちが小さいうちは、広々とした一部屋としてのびのびと遊べる空間として使用。成長して個室が必要になったタイミングで間仕切りを設置すれば、二つのお部屋として活用できます。ご家族の成長やライフスタイルの変化に合わせて、空間を柔軟に対応させることが可能です。

  • 2ヶ所に設けたファミリークローゼット

    1階のファミリークローゼットには、アウターを掛けておいたり、ゴルフバッグなど趣味に使う大きな物を収納しておけば、外出時にサッと取り出せて便利です。3階のファミリークローゼットは、お子さまたちの洋服をまとめて収納したり、普段使わないものの保管場所としても活用できます。

  • 広々空間でゆったり過ごせる主寝室

    主寝室にはウォークインクローゼットを設けて、ご夫婦の洋服等をしっかり収納できるスペースを確保しました。すぐ隣には、メイクスペースとしても使える造作カウンターを設置。さらに、扉を開けたところにはセカンド洗面もあり、メイクから着替えまで朝の身支度がスムーズに行えます。

TOP