ダウンフロアリビングに心が落ち着くお家

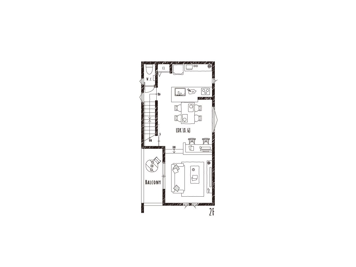
南向きのバルコニーから差し込むやわらかな光と、心地よく通り抜ける風が、日々の暮らしにやさしさをもたらすダウンフロアリビングのあるお家です。リビングとダイニングのあいだに段差をつけることで、空間をゆるやかに分け、ほっと落ち着く「おこもり感」も演出。リビングを見渡せる場所には造作のカウンターを設けており、お子さまのスタディコーナーやちょっとしたワークスペースにもぴったりです。玄関には土間とつながるシューズクローゼットがあり、アウトドア用品やガーデニンググッズなどもすっきり収納できて便利。さらに、3階の主寝室と2つの洋室にはそれぞれウォークインクローゼットを備えており、家族それぞれの持ち物もしっかり片づきます。光と風に包まれながら、毎日をゆったりと心地よく過ごせる、やさしさに満ちた住まいです。

WORKS
THANK YOU

MODEL HOUSE 196

    • 所在地

      THANK YOU
    • 間取り

      1LDK+2S
    • 敷地面積

      61.41m²(18.57坪)
    • 延床面積

      101.43m²(30.68坪)
  • 開放感あふれるダウンフロアリビング

    リビングはダイニングから一段さがったダウンフロアになっていて、天井高が約2.7mと開放感たっぷり。空間に段差を設けることでメリハリをもたらし、落ち着いたくつろぎの場所になります。さらに、南向きのバルコニーからはやさしい光がたくさん入り、家族が集う空間を明るく演出します。

  • ワークカウンターのあるダイニング

    ダイニングの隣に、2人並んでもゆったり座れる造作カウンターを設置しました。お子さまのスタディコーナーとして活用すれば、家事をしながら勉強する様子を見守ることができます。趣味の作業スペースとしても、リビングでくつろぐ家族の気配を感じながら、ほどよい距離感で集中できます。

  • 豊富に設けた収納スペース

    土間続きの広々としたシューズクローゼットや主寝室のウォークインクローゼットに加え、3階にある2つの洋室にも、それぞれウォークインクローゼットを設けました。住まいの各所にしっかりと収納スペースを確保することで、日々の暮らしがより快適になり、居室を広く使うことができます。

TOP