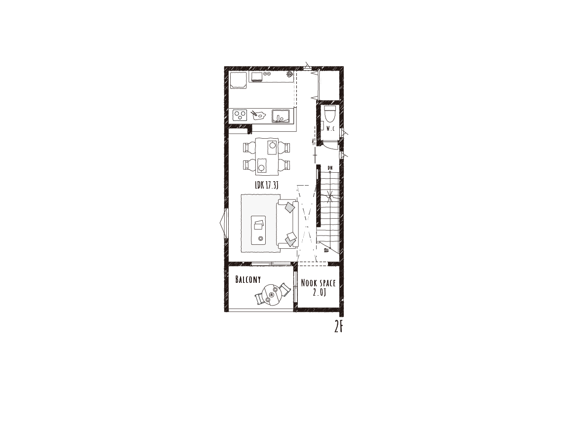
ほっこり落ち着くヌックスペースのあるお家

日常に小さな癒しをくれる、ぬくもりのあるヌックスペースがあるお家です。リビングのすぐ後ろには吹抜け階段があり、南向きバルコニーに面した窓から、やわらかな光がリビングへと差し込みます。吹抜けが空間につながりを生み出し、どこにいても家族の気配を感じられます。リビングのとなりには、段差と垂れ壁でゆるやかに仕切られたヌックスペースを設けています。ほどよい「おこもり感」があり、読書やお昼寝、子どもの遊び場など、多目的に使えるスペースです。キッチンは印象的なR形状の垂れ壁とカウンターに囲まれ、やわらかな雰囲気を演出。また、パントリーを設けているのでキッチンまわりがスッキリ片付き、家事をスムーズに行えます。家族が自然と集まり、明るさと落ち着きを両立した心地よい時間を過ごせる住まいです。

WORKS
東大阪市

LIVONE 大蓮南2丁目Ⅳ9号地

    • 所在地
      東大阪市
    • 間取り
      3LDK+S
    • 敷地面積
      70.00m²(21.17坪)
    • 延床面積
      104.98m²(31.75坪)
  • 家族のそばでくつろげる小上がりのヌックスペース

    リビングのとなりにある小上がりのヌックは、ちょっとした「こもれる」スペースです。段差と垂れ壁でゆるやかにリビングと仕切ることで、同じ空間にいながら気持ちを切り替えやすく、落ち着いた時間を過ごせます。本を読んだり、コーヒーを飲んだり、こどもと遊んだりと、使い方はいろいろです。
    ※画像はイメージパースです。

  • つながりを感じる吹抜け階段を採用したリビング

    リビングの後ろにある階段部分は吹抜けになっていて、南向きの窓から心地よい光をリビングへともたらします。またリビング階段を採用しているので、家族が顔を合わせやすく、「ただいま」や「おかえり」といった自然な会話が生まれます。家族の気配を感じながら、それぞれが自由に過ごせる空間です。
    ※画像はイメージパースです。

  • やわらかな曲線が包み込むキッチン空間

    R形状の垂れ壁とカウンターが印象的なキッチンは、やわらかな雰囲気に包まれています。隣にはパントリーを備え、食材や日用品をまとめて収納できます。2階の一番奥からLDK全体を見渡せる配置のため、リビングやダイニングでくつろぐ家族と自然に会話を楽しみながら、お料理ができます。
    ※画像はイメージパースです。

  • 来客も家族も気持ちよく迎える2WAY玄関

    来客用の玄関と、家族が出入りする玄関を分けた2WAY仕様。来客用はスッキリと見せて、家族用はシューズクローゼットを兼ねた便利なスペースに。土間続きで、ガーデニング用品やアウトドアグッズなど少し汚れが気になるものの収納にぴったり。扉を閉めれば、見られたくないものはサッと隠せます。
    ※画像は弊社施工例です。

  • 家事もしやすい少し広めの洗面・脱衣室

    約2.5帖のゆとりある広さを確保した洗面・脱衣室には、室内物干しを設けているため、雨の日や夜遅くでも安心して洗濯ができます。洗濯機置き場と洗面台の間には、高さを調整できる可動棚を備えており、タオルや洗剤のストックを整理して収納可能。いつでも整った気持ちのいい空間を保てます。
    ※画像は弊社施工例です。

  • 光と風を感じる心地よい主寝室

    吹抜けに面した室内窓を設けた主寝室は、家族の声や気配を感じられる安心の空間です。南向きの窓とバルコニーから光と風を取り込み、一日を通して明るく心地よい時間を過ごせます。洋服はもちろん、季節家電などの大きなものまでたっぷりと収納できるウォークインクローゼットも備えています。
    ※画像はイメージパースです。

PLANNING

LOCATION & ACCESS

〒577-0825 東大阪市大蓮南2丁目22-17付近