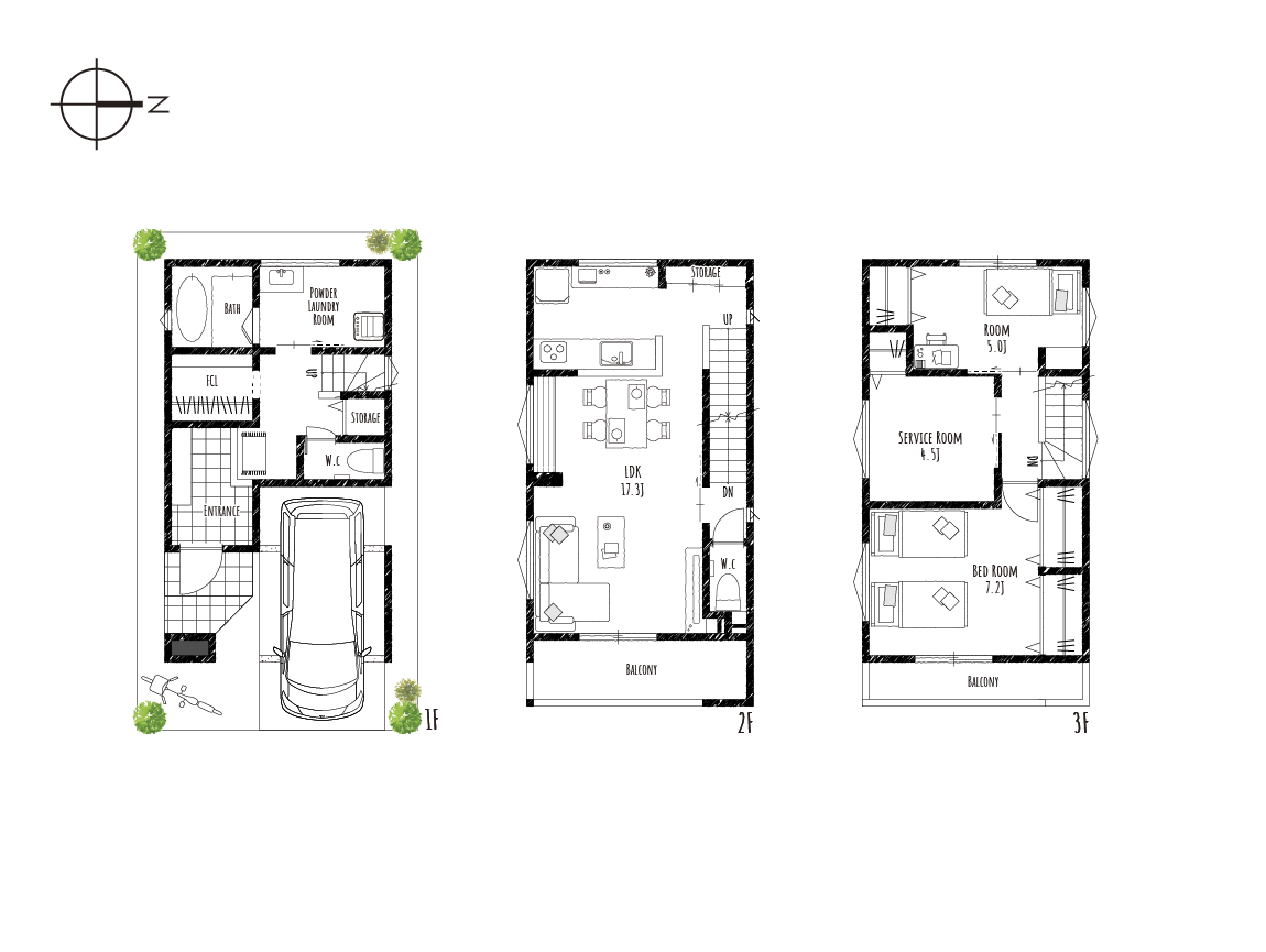
ゆるやかに分けた思い思いの居場所があるお家

空間をゆるやかに分けることで、家族それぞれが自分らしく心地よく過ごせる居場所を設けたお家です。リビングとダイニングは袖壁でほどよく仕切り、開放感はそのままに落ち着きのある空間に仕上げました。ソファでくつろぐ時間もダイニングで会話を楽しむ時間も、お互いの気配を感じながら安心して過ごせます。キッチンは下がり天井で空間にメリハリを持たせ、料理に集中しやすい落ち着いた雰囲気になり、毎日の家事も少し心地よく感じられます。ダイニング横のワークカウンターは、宿題を見守りながら家事をしたり、ちょっとした作業をしたりと、使い勝手にも優れています。家族が同じフロアで思い思いの時間を過ごしながら自然と会話も生まれる、やさしくつながる住まいです。

WORKS
高槻市

LIVONE柱本6丁目3期

    • 所在地

      高槻市
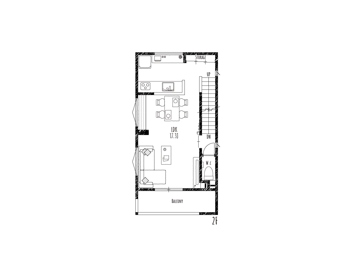
    • 間取り

      2LDK+S
    • 敷地面積

      59.61m²(18.03坪)
    • 延床面積

      95.63m²(28.92坪)
  • やさしい光に包まれるリビング

    バルコニーと南向きの窓から心地よい光をリビングへともたらす、明るくて気持ちのいいリビング。ソファの上には間接照明が仕込まれていて、夜はやわらかな光が、家族みんなのくつろぎ時間を彩ります。リビング階段を通して、自然と「おかえり」「ただいま」の会話が生まれる、あたたかな空間です。
    ※画像はイメージパースのため、実際とは異なる場合があります。

  • ワークカウンターのあるダイニング

    下がり天井でやわらかくゾーニングされたキッチンは、お料理に集中できる心地よい空間。ダイニングの隣に、2人並んでもゆったり座れるカウンターを設置しました。家事スペース、リモートワークにと幅広く活用できます。対面キッチンだから、勉強するお子さまの様子も見守ることができます。
    ※画像はイメージパースのため、実際とは異なる場合があります。

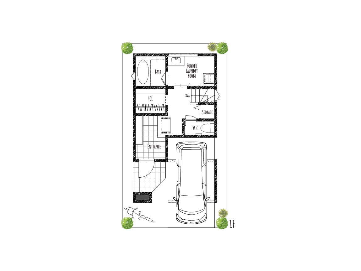
  • 暮らしを快適にサポートする洗面・脱衣室

    玄関を入ると洗面・脱衣室があり、帰宅後に自然と手洗いやうがいができる動線で、清潔を保つ習慣が身につきます。ガス衣類乾燥機「乾太くん」を設置しているので、よく晴れた日はバルコニーでしっかり天日干し、夜遅くに洗濯したい時や雨の日も心強い味方です。毎日の家事がぐっとラクになります。
    ※画像はイメージパースのため、実際とは異なる場合があります。

  • 使い勝手のいいファミリークローゼット

    玄関を入ってすぐの場所にあるファミリークローゼットは、帰宅後すぐに荷物や上着をサッと片付け、そのまま手洗いやうがいをして、家族の待つ2階のLDKへと向かえます。洗面・脱衣室にも近いため、洗う→乾かす→しまうまでの動線がスムーズに。毎日の暮らしに寄り添う、便利な収納スペースです。
    ※画像はイメージパースのため、実際とは異なる場合があります。

  • L字型上り框で動線がスムーズな玄関

    玄関ホールにはL字型の玄関框を採用しているので、お子さまと並んで靴を履けるゆとりのあるスペースになっています。お出かけの準備もスムーズにできるのがうれしいポイント。さらに、カウンタータイプのシューズクローゼットやニッチに、お気に入りの小物を並べて自分らしい空間に仕上げられます。
    ※画像はイメージパースのため、実際とは異なる場合があります。

  • 収納力と心地よさを両立した主寝室

    主寝室には、ご夫婦の洋服やバッグなどの小物類もスッキリ整理整頓できる、壁一面の収納を設けました。物が散らかりにくく、室内をすっきりと保てるため、主寝室をより広く快適に使用できます。南向きの窓とバルコニーから光と風を取り込み、一日を通して明るく心地よい時間を過ごせます。
    ※画像はイメージパースのため、実際とは異なる場合があります。

PLANNING

LOCATION & ACCESS

〒569-0844 高槻市柱本6丁目15番16号 付近
TOP