ヌックスペースのある南向きの心地よいお家

南向きの明るいLDKと小上がりヌックが、暮らしにゆとりを生む心地よいお家です。南西角地に位置し、たっぷりの陽ざしが住まい全体に届きます。2階に設けたLDKは南向きのバルコニーに面しており、窓を開ければ光と風が気持ちよく通り抜けます。バルコニーにはタイルを敷き、リビングの延長のようにくつろげる空間に。外でコーヒーを飲んでひと息ついたり、お子さまと一緒に遊んだりと、セカンドリビングのように気軽に使えます。リビングの奥には小上がりのヌックスペースをご用意しました。読書を楽しんだり、家事の合間に少し腰かけて休んだり、お子さまのスタディコーナーとしても使える落ち着いた場所です。家族がそれぞれの時間を楽しみながら、同じ空間でゆるやかにつながれる、やさしい陽だまりに包まれた住まいです。

WORKS
東大阪市

LIVONE 大蓮南2丁目Ⅳ1号地

    • 所在地

      東大阪市
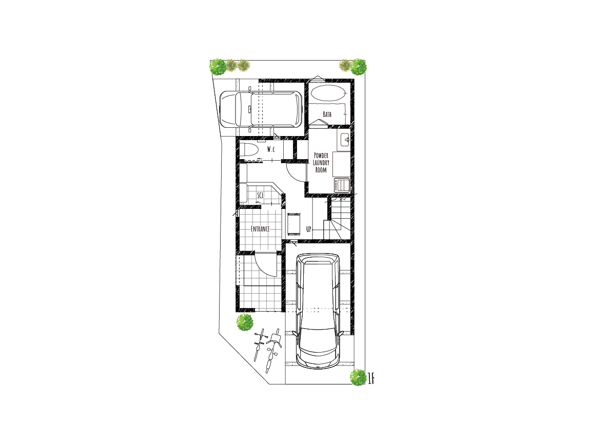
    • 間取り

      3LDK
    • 敷地面積

      72.40m²(21.90坪)
    • 延床面積

      101.43m²(30.68坪)
  • バルコニーとつながる明るいリビング

    南向きバルコニーに面したリビングは、やわらかな光が差し込む心地よい空間。リビング階段を採用し、3階へ上がる時もリビングを通るので、「おはよう」や「おかえり」といった声が自然に交わされます。隣のバルコニーはタイルを敷き、雰囲気よく仕上げたセカンドリビングとしても使える空間です。
    ※画像はイメージパースのため、実際とは異なる場合があります。

  • 自分時間をゆっくりと楽しむヌック

    リビングの奥に、小上がりのヌックを設けました。段差をつけることで、リビングとはゆるやかに区切られた落ち着きある空間になっています。リビングでくつろぐ家族の様子を感じながら、自分の時間をゆっくり過ごせます。ほどよいおこもり感があり、読書や趣味に没頭するなど心地よく使える場所です。
    ※画像はイメージパースのため、実際とは異なる場合があります。

  • 収納を楽しめる対面キッチン

    リビングやダイニングを見渡せる対面キッチンです。料理をしながら家族の様子が見え、暮らしの時間をゆるやかにつなぎます。ワイドなカウンタータイプのカップボードや上部の棚には、食器やキッチン小物を飾りながら収納できます。隣にはパントリーもあり、食品や調理家電の収納に便利です。
    ※画像はイメージパースのため、実際とは異なる場合があります。

  • 訪れる人をやさしく迎える玄関

    玄関の奥には、家族用の玄関も兼ねたシューズクローゼットを設けました。扉付きなので、急な来客があっても中が見えにくく、生活感をやさしくカバーできます。玄関に上がると正面には木目のアクセントウォールを配置。ペンダントライトがやさしく灯り、やわらかな質感が空間にあたたかみを添えます。
    ※画像はイメージパースのため、実際とは異なる場合があります。

  • 乾太くんのある家事ラクの洗面室

    洗面室には、ガス衣類乾燥機「乾太くん」を設置しているので、洗った衣類をすぐに乾かすことができます。室内にはランドリー用の収納も用意。上部はカウンターになっていて、アイロンがけや洗濯物をたたむスペースとして使えます。洗う→乾かす→たたむまでの流れが、この場所で完結します。
    ※画像はイメージパースのため、実際とは異なる場合があります。

  • 二面開口の開放感のある主寝室

    南側と西側の二面に開口部を設けた、光と風を感じられる主寝室です。バルコニーに面しているため、窓を開けるとさわやかな風が通り抜け、明るく開放的な空間になります。収納はクローゼットを2ヶ所に設置しました。衣類や小物を分けてしまえるので、使いやすく整理しやすい収納になっています。
    ※画像はイメージパースのため、実際とは異なる場合があります。

PLANNING

LOCATION & ACCESS

〒577-0825 東大阪市大蓮南2丁目22-17付近
TOP