大人かわいい家

歩いているだけで楽しくなる21区画の『三角屋根とシンボルツリーのある街』に、厳選された3つの住まいのうちの1つ「大人かわいい」をコンセプトにしたお家が完成しました。奥に開けた立地を最大限に生かし、旗竿地の閉鎖的なイメージからは想像がつかないほど、明るく開放的なお家になっています。内装は、やさしいブルーのドアにメープルの床、アーチの垂れ壁や所々に入れた花柄のクロスが丁寧に使い込んだような味わいのある上品な空間に仕上げてくれています。開けている西側に設けたウッドデッキと庭がLDKと一体になっており、生活の一部として使えるようにレイアウトしました。空間だけでなく、日々の家事を楽にする回遊動線や適材適所の収納も意識しました。家具や雑貨で装飾をほどこし、「家そのもの」の魅力だけではなく、「住まい方」もイメージできるお家です。

WORKS
THANK YOU

MODEL HOUSE 019

    • 所在地

      THANK YOU
    • 間取り

      3LDK
    • 敷地面積

      134.56m²(40.70坪)
    • 延床面積

      99.57m²(30.11坪)
  • こだわりのディティール

    ヨーロッパの雰囲気を感じるホワイトの羽目板に、目を引くかわいいアールの垂れ壁、可愛すぎない花柄のクロス。毎日の暮らしを楽しく飾るアクセントがちりばめられています。かわいいだけじゃない上品なお家に仕上げました。

  • ウッドデッキ

    西側に開けた立地を活かし、ダイニング横にウッドデッキを設けました。天気の良い日にはテーブルを出して、朝食やブランチを楽しんだり、ママ友とティータイムを過ごしたり。気持ちいい景色の中、イスに深く腰掛ければ自然とリラックスできそうです。

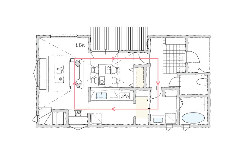
  • 毎日の家事を楽にする回遊動線

    玄関から、洗面室、パントリー、キッチン、リビングダイニングがぐるりと一周できる回遊動線を取り入れました。これなら買い物から帰ってきてすぐに洗面室を通って物を置くことができるので、重い荷物でも楽に収納できますね。玄関に洗面室があるので、帰ってきたらまずは手洗い・うがいの習慣も自然と身に付きそうです。

The Architect’s Voice

専用通路の奥にある敷地でありながら、西側が周囲に大きく遮るものがなく、景色が広がる気持ちいい立地を最大限に活かしてプランニングしました。西側に設けた庭と暮らしの中心となるLDKが一体になるよう、ダイニング横にウッドデッキを設けました。キッチンから庭が一望できるので、家事をしながらでも子供が庭で遊んでいる姿を見守ることができます。シンボルツリーを基準に考え、1階のLDKのどこからでも窓の外に爽やかな緑が感じられるようにレイアウトし、専用通路の奥まった圧迫感を払拭するために、玄関ドアを開ければ明るく広い庭とシンボルツリーがFIX窓から見えるよう工夫を凝らしました。また、2階ホールには吹抜けを設け、LDKに明るさと開放感もたらしました。可愛すぎないディティールに加え、利便性のよい動線や適材収納も魅力です。

TOP