アクティブなご家族に良く似合う、『自分達らしく子育てを楽しめる家』が完成しました。ブラック×木目の渋い外観、内装は石目やモルタルなどのダークな色目にアイアンを合わせ、甘さを抑えたかっこいいテイストに。家族が自然に繋がれるリビングや、コミュニケーションを取りながら家事もこなせるキッチンなど、「家事」と「育児」を仕事と両立しながら、生活しやすい工夫を凝らしています。近くにある花園公園で、子どもたちが自転車で遊んで帰ってきても、「汚れものは洗濯室で乾燥まで完結」「靴を脱ぎ散らかしても、お客様用とご家族用で玄関が分かれているので大丈夫」「ゆとりある屋根付きの自転車置場」など、心に余裕をもって過ごせ、自分達らしい世界観で子育ても楽しめる。そんな住まいにしています。
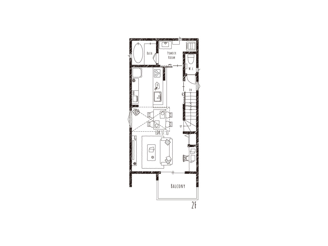
開放感たっぷりの明るい吹抜けがあるLDKは、離れている家族の気配も感じられる、安心と心地好さを繋ぐ空間。深みと落ち着きのある木目にダークな色目やアイアンを使った、甘さを抑えたクールなテイスト。吹抜けを通じて階上にいる家族に「ごはんできたよ~」や「お風呂わいたよ~」と、声掛けもできます。リビング内のワークカウンターで、リビング学習やパソコンを置いてネットサーフィンや家計簿を付けたり、もちろん在宅ワークにもピッタリ。リビングに作業スペースがあることで、家族が同じ場所で過ごす時間も増えそうです。
ぐるっとまわりがニッチになっているキッチンカウンターと、壁面をアンティークな雰囲気のタイル調のクロスと飾り棚を施し、まるでオープンキッチンのカフェのような雰囲気。よく使うものや、家電は手の届きやすい位置に、パッケージのかわいい食材やコーヒー道具、スパイスは飾りながら収納。カウンターニッチの正面側は、見た目にこだわり、お気に入りの雑貨や写真を飾って、ダイニング側には、毎日使う調味料やティッシュを隠してメリハリある収納に。横並びダイニングになっているので、家事をしながら、テーブルにいる家族やお客様との会話もたのしめるキッチンです。
洗濯室には乾太くん(ガス乾燥機)を設置し、1か所でお洗濯が完結できるようにしています。公園で遊んで帰ってきた子供が泥だらけ…!そんな時でも、乾燥まで完結するからどんどん汚されても大丈夫◎スポーツ系の習い事などの、よく洗うユニフォームも、お天気を気にせず、洗濯をその日のうちに終わらせられます。晴れや雨の日、花粉や黄砂など、明日までに乾くかな、といった「考える時間」も節約できるのもうれしいですね。
お客様用とご家族用で、玄関を2つに分けました。家族用のシューズクロークの出入り口に引き戸を設置し、玄関先からの来客の視線を遮ることで、散らかった玄関を見られないようにしています。ベビーカーや靴置き場、外出時だけ使う物を置いておけるので、家の中の整理整頓にも一役買ってくれます。家族用玄関の入口はR垂れ壁に、お客様用玄関にはアクセントクロスとアンティーク風ブラケットライトを施し、おしゃれな玄関にしています。
素朴な風合いの石目調のクロスにマットなブラッククロスを施した、クールなイメージの主寝室。お仕事スペース として使用できる、ワークカウンターをご用意しました。ウォークインクローゼットのすぐ隣りにあるので、出かける前の「洋服を選ぶ→スタイリング→身支度」までがスムーズにすみます。好きな雑貨や写真を飾って ご夫婦らしいインテリア を楽しむこともできますね。
3階にある居室には、2部屋ともにカウンターを設けています。子どもが小さいうちは、おもちゃ部屋&プレイルームとして、将来一人部屋が必要になった時にも、机を購入することなく、そのまま子ども部屋として使うことができます。書斎や趣味のスペースにするにも十分な広さをとっており、使いやすい間取りにしています。造り付けなので「無駄なスペースができてしまった」ということもなく、脚がないのでお掃除もラクになります。
ブラック×木目の男前な外観。玄関ドアを前面道路から見えない位置につけることで、プライバシーが守られ、見た目もすっきり。インナーガレージになっているので、雨の日の車の乗り降りもスムーズに、自転車も濡らさず置けます。
彩度を抑えたエイジドチェスナットの床材を活かし、ダークトーンなヴィンテージ感のあるカフェのような家を目指しました。石目やモルタルなどの質感を感じられるようなアクセントクロスを多く取り入れ、シンプルな家具でもおしゃれな空間が完成します。キッチンカウンターのニッチや、カップボード上の飾り棚、洗面室の可動棚など、おしゃれさと実用性を兼ね備え、住む方の個性も生かせる家になっています。好きなものを飾り、日々の生活が楽しくなるような住まいです。
