ウチソトに繋がるプライベートテラスと、心地よい間接照明のあるお家が完成しました。リビングの延長線上にテラスを設け、壁で囲ったプライベート屋外空間。外からの視線を遮ることで、個室のようにゆったりくつろぐことができます。リビング上部とTVボード上の照明は調光でき、気分に合わせて日常空間とリラックスタイムを使い分けて。永く住み続けられるよう、1年間で消費するエネルギーの量を実質的にゼロ以下にする「ZEH」を採用し、室内の温度変化が少ない「第一種換気」も取り入れています。内装は奥行を感じる柔らかいグレーの床材をベースに、ブラックをアクセントに加え、シックで落ち着いた大人っぽいテイストに。キッチンを中心にプランニングし、生活動線やご家族とのコミュニケーション面も視野に入れ、トータルで心地よい暮らしができる住まいに仕上がりました。
LDKとソトの間に、屋根があるプライベートテラスを設けました。リビングに面した窓は、全開放を実現する折戸タイプを使うことで、住まいの内と外をひとつに。外壁にスリットがあるので風が通り心地よく過ごせます。昼は日光浴・夜はお酒を嗜むなど、ご家族が好きなように過ごせ、ちょっとした非日常を味わえる特別な空間に。お庭へもステップで繋がっており、ガーデニングをしたり、お子様やペットの遊ぶスペースとしても。
空間全体を柔らかい明るさで包んでくれる「コーブ照明」と、リビング上部とに、調光できる照明を施しました。夜映画を見る時は明かりを落とすなど、気分や使用用途に合わせて調節できるようにしました。TVボードの背面には、ダークグレーのエコカラットを施し、ダウンライトがエコカラットの陰影を浮き上がらせ、上質な空間を演出します。フロートタイプのTVボードに、壁掛けTVと、お部屋もスッキリ見え、掃除も楽になります。
1Fの中心に位置するフラットキッチン。LDK全体を見渡せ、料理しながらでもコミュニケーションが取りやすくなっています。ダイニングと横並びになっているので、子供の宿題を見ながら料理でき、配膳や片付けも楽に。また、手元にクッキングコンセントを設けており、ミキサーなどの調理家電もカウンター上でスムーズに使うことができます。キッチンの前面収納に、カップボードと収納量もたっぷり確保しました。お気に入りのインテリアを飾れる棚をカップボード上に設け、見せる収納と隠す収納でスッキリとしたキッチン空間に。
柔らかいシックなグレーの床材に、建具・照明・壁紙でブラックを取り入れ、落ち着いた印象に。ダイニング上やキッチン手元・洗面など照明デザインにもこだわり、シンプルながらも空間にアクセントを加えました。TV面や洗面化粧台にはタイルを施し、機能面もデザイン性も考慮しています。2F居室にはウィリアム・モリスのクロスを取り入れ、大人っぽくも遊び心のある空間に。
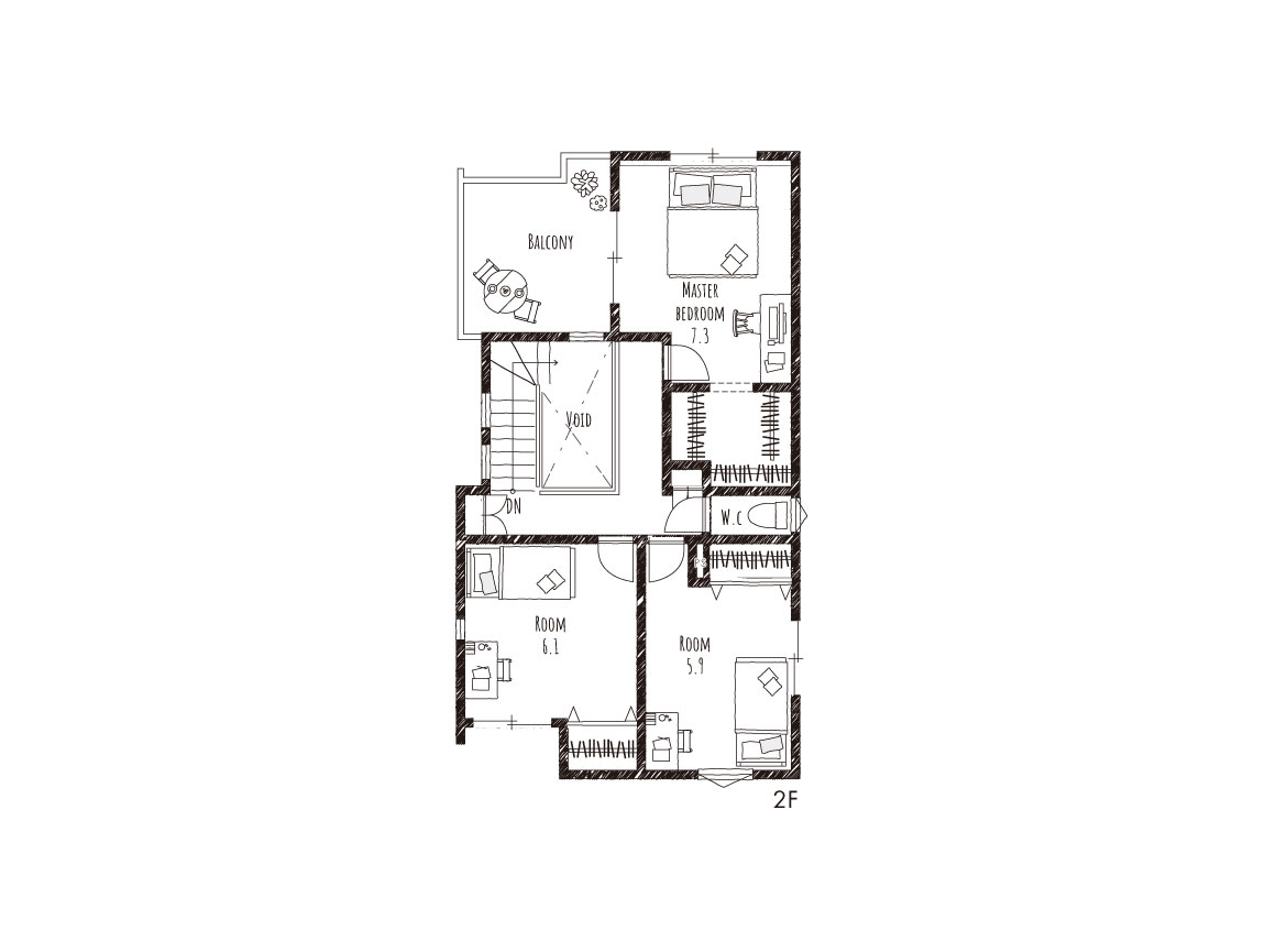
吹抜けにリビング階段を組み合わせ、より開放的なLDK空間に。2階廊下の手すりには透明樹脂パネルを使い、抜け感を高めることで、1F・2Fがより繋がり、家族とのコミュニケーションも取りやすくなっています。踊り場上に取り付けた、吊り下げ型のブラケットライトは空間のアクセントに。吹抜け下の畳コーナーは、ごろんとお昼寝をしたり、お子さまの遊び場としても使えるくつろぎのスペースです。
造り付けのヘッドボードに、スタイリッシュなブラケット照明を配し、ホテルのようなリラックスできる主寝室に仕上げました。ヘッドボードには左右2か所コンセント設け、ブラケットライトのスイッチは、「とったらリモコン」を採用。ベッドの上から動かず、スマホの充電や電気をスマートに消すことができます。壁面はダークトーンのウィリアム・モリスのクロスとダークグリーンクロスを貼り分け、落ち着いた空間になっています。
玄関↔洗面脱衣室↔キッチンで、ぐるっと回遊できる動線を取り入れました。キッチンで作業しながら、洗濯や掃除ができ、玄関とキッチンの2方向から行き来できるので、朝の準備もスムーズになりそうです。約3帖の洗面脱衣室には、乾太くんと収納棚を設けました。乾太くんがあるので、洗濯→乾燥→畳むが1箇所で完結。また、天井に下地を入れているので、洗面室で室内干しをしたくなったら、物干し金具を取り付けることができます。
洗面化粧台壁面に、細かな凹凸があるヘリンボーン調のタイルを貼り、ゴールドのブラケットライトを施しました。洗練されたデザインで、毎日の手洗いや歯磨き時に気分があがる空間に仕上げています。
ホワイトとブラックでまとめたモダンな外観。ルーバーで窓を隠しており、プライベート感UP&プライバシーにも配慮しました。正面の窓を少なく感じさせてくれるため、かっこよくもシンプルなデザインになっています。
太陽光とエネファームによるダブル発電で「創エネ」、気密性を高め「断熱」し、エコジョーズなどで「省エネ」することで、消費エネルギーよりつくるエネルギーを大きくました。また「第一種換気」という機械で給気と排気をさせる換気方式で、季節を通して家の中の温度と湿度を安定させ、家の中の空気をクリーンに保つことができます。毎日の電気代が抑えられ、災害の時にも自家発電があると安心できますね。
敷地の奥が南側の為、いかに陽当たり条件の良い南側を活かしたプランニングができるか検討を重ねていきました。採光が確保できるよう南面に空きスペースを確保し、吹抜けからの採光や駐車スペースと建物ボリュームの調整・広く見せるためにはどうしたらよいかなど、工夫を凝らしプランニングしました。
