趣味を楽しめる、大きな『土間収納』がある家

玄関ドアを開けると、一直線に伸びた土間収納が広がり、お気に入りの自転車やアウトドア用品が出迎えてくれるお家が完成しました。土間収納内には手洗い洗面があり、収納だけでなく、道具のお手入れや趣味用の作業スペースとしても使えます。LDKには折り上げ天井を取り入れ、立体感と開放感のある空間に。リビング収納や可動棚、カップボードにキッチンの固定棚など、適材適所の収納も意識しました。また、浴室・洗面室などの水廻りも同じフロアにまとめ、毎日の料理や洗濯をラクにこなせる動線となっています。3階にはスキップフロアと勾配天井のあるホテルライクな主寝室や、ご家族の成長やライフスタイルの変化に適応できる、将来間仕切りのある部屋も設け、永く楽しみながら住まえるお家に仕上がりました。

WORKS
THANK YOU

MODEL HOUSE 175

    • 所在地

      THANK YOU
    • 間取り

      4LDK
    • 敷地面積

      65.46m²(19.80坪)
    • 延床面積

      104.15m²(31.50坪)
  • 趣味を楽しむ、大きな土間収納

    ゴルフバッグやアウトドア用品、ロードバイクなど、大きなものでも余裕をもってしまえる土間収納。玄関前にはスロープを設けており、ベビーカーや自転車などがスムーズに運べます。急な来客でも扉を閉めるだけで目隠しがさっとでき、土間収納と1階の居室が繋がっているのも嬉しいポイント。オープン棚やショーケースを設置し、お気に入りのコレクションや観葉植物を飾って楽しむこともできます。また、手洗い洗面が付いているので、大切な道具のお手入れやDIYなど、趣味用の作業スペースとしても使える空間です。

  • スキップフロアのある主寝室

    スキップフロアと勾配天井で変化をつけた主寝室は、少し特別感のある、ホテルのような空間に。主寝室内に書斎を設けており、趣味の読書や、ちょっとしたワークスペースとしても利用できます。主寝室は1日の始まりを迎える場所であり、1日の疲れを癒す大切な場所。ただ寝るだけでなく、リラックスしたり、趣味や自分の時間を楽しめる。そんな快適な空間に仕上げました。

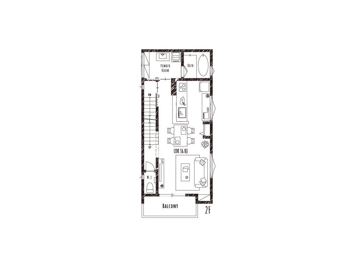
  • 開放感のあるリビング

    家族との大切な時間を過ごす場所として、LDKにもこだわりを詰め込みました。陽当りが良く風通しのいい2階リビングは、家族が自然と集まるくつろぎの場に仕上がりました。天井高2.8mの折り上げ天井は、立体感と開放感を演出し、スタイリッシュな雰囲気に。天井部分には、光のラインを描くようなシンプルで美しい照明を取り入れ、明るく落ち着きのある空間となっています。

  • ランドリー収納がある洗面室

    洗面室には、可動棚とカウンターを設けました。棚にはタオル類や洗剤類などを収納。カウンター下には脱衣カゴや引き出し収納を置いて、下着類やパジャマなどをしまえば、着替えを取りに行く手間も無くなります。お風呂の浴室乾燥機を使えば「洗う→乾かす→たたむ→収納」もワンコーナーで完結できます。

  • 将来間仕切りができるお部屋

    3階にお子様の成長や要望にあわせて、将来間仕切りのできる約9帖の部屋をご用意しました。子どもが小さい頃は、家族みんなが一緒に眠るファミリースペースとして使用。一人部屋が必要になったら、壁を付けられるよう下地やドア、エアコン用コンセントなどを用意しています。すぐ隣にファミリークローゼットもあるので、家族みんなの衣類もまとめて収納できます。

The Architect’s Voice

1階には大きな土間収納を設けており、収納だけでなく趣味用の作業スペースとしても使える空間になっています。2階に水廻りを配置し、キッチン→ダイニング→リビングが一直線となる動線で家事や生活のしやすさを意識しました。リビングには天井高2.8mの折り上げ天井を設け、畳数以上の広さを感じられるよう工夫しております。3階にはホテルライクな主寝室と将来間仕切りのある部屋を設け、ご家族の成長やライフスタイルの変化に対応できます。

TOP