キッチンを中心にぐるぐる回遊できるお家

毎日の家事をもっと楽しく、もっと快適にできるよう工夫をこらしたお家です。2階へ上がると目の前にキッチンとパントリーがあり、買い物から帰ってきた時に、荷物をスムーズに片付けられるのでとても便利です。調理がしやすいⅡ型キッチンの隣にはダイニングを配置しているので、食事の準備や後片付けもラクラク。キッチンのすぐ横にはランドリールームを設け、料理の合間に洗濯の様子を確認できるなど、移動のしやすさにもこだわりました。家族が集まるリビングは、上部に吹抜けを設けた開放的な空間です。3階のホールは、子どもたちが勉強をしたり、本を読んだり、趣味を楽しんだりできるフリースペースに。家族のコミュニケーションを大切にしながら、それぞれの時間も充実できる、心地よい住まいになりました。

WORKS
大阪市大正区

LIVONE 平尾2丁目2号地

    • 所在地

      大阪市大正区
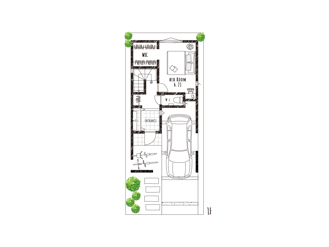
    • 間取り

      1LDK+2S
    • 敷地面積

      69.44m²(21.00坪)
    • 延床面積

      96.82m²(29.28坪)
  • 回遊動線で家事も捗るⅡ型キッチン

    コンロからシンクへの動線が短く、作業がしやすいセパレート型のⅡ型キッチンを採用しました。また、パントリーも備えているので、食材のストックや調理器具の収納に便利です。ダイニングはキッチンと横並びの配置になっているため、配膳や食後の片付けもスムーズに行えます。

  • 開放感に包まれる吹抜けリビング

    バルコニーに面したリビングは、上部に吹抜けを設けました。心地よい開放感に包まれる空間で、家族みんながゆったりとくつろげます。また、テレビの裏側には収納スペースを設けているので、散らかりがちな小物や日用品をすっきりと片付けることができ、いつでも整った空間を保てます。

  • 使い方いろいろなフリースペース

    3階のホール部分には、造作のカウンターを備えたフリースペースを設けました。子どもたちが並んで勉強できるスタディコーナーやリモートワーク、趣味の作業スペースとしても活用できます。すぐ隣にはバルコニーでは、ハンモックに揺られながら、日向ぼっこを楽しむこともできます。

  • 室内干しもできるランドリールーム

    キッチンのすぐ横にあるランドリールームには、室内干しができるスペースを作りました。お天気を気にせず洗濯物を干せるので、忙しいご家庭や小さなお子さまのいるご家庭にもぴったり。雨の日や夜遅い時間でも、安心してお洗濯できます。毎日の家事を楽にしてくれる便利な空間です。

  • 機能性に優れた玄関

    玄関前には目隠しの壁を設け、道路からの視線を気にせず安心して過ごせるように配慮しました。玄関内にはたくさんの靴をしっかり収納できるシューズクロークがあり、さらにすぐ近くにハンガーパイプを設置。コートなどをサッとかけられるので、お出かけの際もスムーズです。

PLANNING

LOCATION & ACCESS

〒551-0012 大阪市大正区平尾2丁目18-7
TOP