ちょうどいい「シンプルライフ」な家

適材収納で、家事・生活動線をできるだけコンパクトにしたお家ができました。各居室の収納はもちろん、シューズクロークやパントリー、洗面室の可動棚など勝手の良い収納をそれぞれに設けました。「生活に必要なものが、必要な場所にある」環境だから、ものを持ち過ぎず、無駄なく暮らすことができます。2階のキッチンを中心に、料理や洗濯などの家事を短い導線でこなせるのものこのお家ならでは。外観・内観共に落ち着きのあるテイストがシンプルな暮らしをより高めてくれます。

WORKS
THANK YOU

MODEL HOUSE 008

    • 所在地

      THANK YOU
    • 間取り

      3LDK
    • 敷地面積

      57.63m²(17.43坪)
    • 延床面積

      99.59m²(30.12坪)
  • 使い勝手のよい適材収納

    荷物を置き、靴を脱ぎ、上着を掛け、スリッパに履き替える……2階に上がるまで動線に沿って無駄なく収納ができるシューズクローク。洗面所の可動棚は、短い導線で収納でき、お風呂から出て、洗面所の引き出しから下着を取るという動線を考えて作りました。

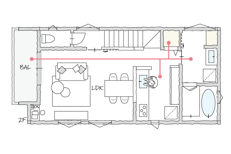
  • ミニマムな家事動線

    「短く、まっすぐ」にとった家事動線。洗面室からキッチン、バルコニーを一直線上にし、引き戸で繋いでいるので行き来がとってもラクラク。洗面室には下着やタオル、パントリーには食材のストックなど短い導線で収納できます。

  • 外部収納と歩車分離

    階段下を利用して作った外部収納は、アウトドア用品や、生ゴミなど家の中に置いておきたくないものを収納できます。また、歩車分離にしたことでゆとりができ、家族の出入り、車からの荷物の出し入れもスムーズに行えます。

  • 素材感を活かした外観

    石目とリアルな木目の素材感を活かした立体的でかっこいい外観。ガラス手すりは、リビングに光を取り込むだけでなく、外観を明るく、爽やかなモダンテイストに仕上げてくれます。

The Architect’s Voice

外観・内観共に落ち着きのあるテイストのシックモダンなお家。石目と木目の素材感を活かした立体的でかっこいい外観、2階はキッチンを中心に水廻りを配置し、家事が楽になる動線を意識しました。動線が短くなるように、適材適所に配置した外部収納やシューズクローク、キッチン横のパントリー。動線を短くすることで「ゆとり」が生まれ、家族の時間・自分の時間を楽しめるお家です。

TOP