歩いているだけで楽しくなる21区画の『三角屋根とシンボルツリーのある街』に、厳選された3つの住まいのうちの1つ「ナチュラルヴィンテージ」をコンセプトにしたお家が完成しました。三角屋根の外観は黒をベースにダークの木目をアクセントでかっこよく。内装は、ネイビーのドアにナチュラルオークの床で温かみのある心地の良い空間です。キッチン・ダイニング・リビング・ウッドデッキを一直線上で繋ぎ、より開放的で広がりを感じられるようになっています。空間だけでなく、広々とした2wayの玄関と洗面室に将来間仕切りなど、家事動線や家族のライフスタイルの変化も意識しました。家具や雑貨で装飾をほどこし、「家そのもの」の魅力だけではなく、「住まい方」もイメージできるお家です。
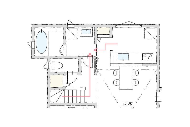
洗面室へはキッチンと廊下からの2WAYアクセスに。お料理、洗濯をしながらの“ながら家事動線”で時間短縮ができます。廊下からも入れるので来客があっても、リビングを通らずに洗面やお風呂に行くことができます。
ベビーカーも楽に置ける広い玄関スペースは、誰がいつ来てもスッキリ片付いているお客様用と、お行儀悪く靴を脱いでいても大丈夫な家族用の2WAY仕様。アウトドア用品やコートなどなんでも収納できちゃいます。玄関の壁には羽目板を使いました。ラフな木目感がアウトドア用品の収納にぴったりです。
リビング横のウッドデッキは、開放感ある第2のリビングとして。天気の良い日に朝食やブランチを楽しんだり、ティータイムを過ごしたり。友達を呼んでバーベキューをしたり、夏にはプールを出して、リビングに居ながら子供の様子を見守ることができます。 ※写真は弊社施工事例です。
天候を気にせず洗濯物を干せるインナーバルコニー。突然の雨が降っても、外出時に急いで帰宅する必要もありません。主寝室の延長として、夫婦だけのプライベートな屋外空間としても。 ※写真は弊社施工事例です。
43坪という大きな変形地を、どうすれば敷地を有効に使えるかすごく悩みました。ウッドデッキも当初から配置したいと考えていたので、ウッドデッキありきで設計しました。隣地建物とも角度を変えて、窓同士が正面にこないように考えた結果、このようなお家になりました。リビングから続くウッドデッキは、窓を開ければ一つの空間として使うこともでき、LDKと合わせれば20帖の広々とした開放的な空間になります。リビング階段や2way洗面室、適材適所に設けた収納などママ目線で動線も意識しました。
