アーバン×ナチュラルな家

石目のブラックをアクセントにしたモダンでスマートな外観。どんなインテリアにもあう、木の表情が柔らかなオークとアクセントにブラックを取り入れた、シンプルでナチュラルなお家が完成しました。道路面の窓をできるだけ少なくし、プライバシーを確保しながら、南からの光をLDKにたくさん取り込んだ、外観からは想像できないほど明るいお家になりました。雨に濡れない駐輪スペースに、大きな車もラクラク駐車できるゆとりあるガレージ。ファミリークロークやシューズクロークなどの大容量収納に、使い勝手の良い独立洗面台を採用し、キッチンを中心に水回りをコンパクトにまとめた家事のしやすい動線を取り入れました。

WORKS
THANK YOU

MODEL HOUSE 034

    • 所在地

      THANK YOU
    • 間取り

      4LDK
    • 敷地面積

      69.25m²(20.94坪)
    • 延床面積

      105.78m²(31.99坪)
  • 無垢のオーク材を使用したTVボード

    1階から少し張り出した部分を利用した、表情豊かな木目が美しい無垢のオーク材を使った木の暖かみを感じる、ピッタリサイズの造り付けのTVボード。横幅が2m以上あるので、ゲームやDVD、子供のおもちゃもたっぷり収納できます。また、脚がないのでお掃除もラクラクです♪

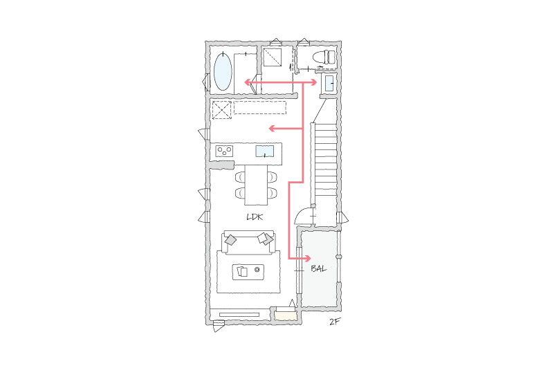
  • コンパクトにまとめた家事動線

    料理や洗濯、掃除といった毎日の家事の負担を軽くするためにキッチンを中心に水回りをコンパクトにまとめました。キッチンの後ろには洗面台と脱衣室があり、料理の準備をしながら洗濯やお風呂掃除をしたりと同時に家事をこなすことができます。また、同じ階にバルコニーがあるので、重い洗濯物を持って階段を上がる必要もありません♪

  • 独立洗面台

    脱衣所も洗面台も同時に別の人が使える独立洗面台。来客時には洗濯物などの生活感が出にくくスッキリ見えるので、お客様に遠慮なく洗面台を使ってもらうことができます。キッチンのすぐそばにあるので、朝ごはんの準備や洗濯をしながらでもササッと身支度ができちゃいます。

  • 広いガレージスペース

    駐車スペースの横幅が3.8mあるゆとりあるガレージ。大きなファミリーカーや駐車が苦手な方でも楽に出し入れできます。玄関前には雨に濡れない駐輪スペースも設けています。

The Architect’s Voice

限られた敷地の中でプライバシーを確保しつつ、どうすれば暮らしやすいお家になるか考えました。2階に水回りを配置することが難しい空間でありながら、独立洗面台を採用することで上手くコンパクトにまとめることができました。キッチンを中心に家事動線をしっかり確保しつつ、適材適所に配置した収納でスッキリした暮らしができるよう工夫しました。2階のTVボード部分は1階から少し張り出したことで、リビング空間に奥行きを作るだけでなく、外観に凹凸をつくり程よいアクセントに。白を基調としたナチュラルな内装・外観に、ブラックやグレーを使った飽きのこないシンプルなお家に仕上げました。