京阪本線「大和田」駅まで徒歩10分!
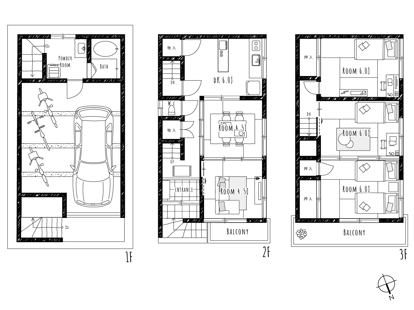
安心のシャッター付きガレージ!
2WAY利用可能な好立地!
1階にはシャッター付き駐車場なので車でお出かけの多い方にもオススメ☆
スーパー・コンビニ・ドラッグストア徒歩10分圏内にありお買い物にも便利♪
古川橋小学校は徒歩約2分!
賃貸物件やリフォームなど様々な用途で使用可能♪
※掲載の徒歩分数は80m、自転車分数は250m、
車分数は400mを1分として算出した概算時間です。
居住しておられない為、いつでもご案内可能です!お気軽にご連絡ください!!


ご予約いただくと、事前にスタッフがスケジュールを調整し、ご案内させていただきます。お待ちいただくこともございませんので、ご予約ください。もし都合が悪くなれば、前日までにお伝えいただければ、代わりの日程を調整させていただきます。

近隣の分譲物件情報や家づくりの資料などをご予約時にお渡しさせていただきます。モデルハウスを見学いただいた後、ご自宅でじっくりと家づくりについてお話をいただくことができます。

ご来場予約をいただいた方に、QUOカードを進呈しています。モデルハウス見学後に、使っていただいてもOK。
※ご家族様1回限りとなります。またモデルハウス見学アンケートにご記入いただくことが条件となります。
| 物件種別 | 中古一戸建て |
|---|---|
| 所在地 | 門真市御堂町23番10号付近 |
| 主要交通 | 京阪本線「大和田」駅 徒歩10分(750m) |
| その他交通 | 京阪本線「古川橋」駅 徒歩13分(1100m) 大阪メトロ谷町線「大日」駅 自転車7分(1600m) |
| 学校区 | 古川橋小学校(徒歩2分/180m) 門真はすはな中学校(徒歩18分/1400m) |
| 敷地面積 | 52.65㎡(15.92坪) |
| 延床面積 | 109.78㎡(33.20坪) |
| 間取り | 5DK |
|---|---|
| 構造・工法 | 木・鉄筋コンクリート造 |
| 駐車場 | あり 1台 |
| 建ぺい率 | 60% |
| 容積率 | 200% |
| 地目 | 宅地/平坦 |
| 用途地域 | 第2種中高層住居専用地域 |
| 道路 | 一方 / 北側 幅員 約3.8m |
| 設備仕様 | 下水道、都市ガス、上水道 |
| 引渡時期 | 相談 |
| 完成時期 | 1988年1月 |
| 権利形態 | 所有権 |
| 取引形態 | 専任媒介 |
| その他の制限 | 準防火地域 |
| その他の特記事項 | 完了検査の受検の有無について記録なし。 買主は現状のまま本物件を買い受けるものとします。 |
| 情報公開日 | 2026年4月30日 |
| 次回更新予定日 | 2026年5月10日 |