南向き×広々間口で陽当たり◎
玄関が広く収納も充実!小学校まで徒歩10分!
安心の定期点検10年間!
【LIVONE東町1丁目】
~南向きのぬくもり感じるゆとりの間口のお家~
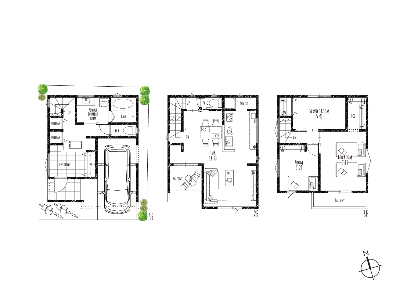
■明るく開放的な暮らし
・ウォークインクローゼットやパントリーなど収納が充実◎
・キッチン上部は下がり天井で空間のメリハリを演出
・リビングには間接照明を採用!
■安心の耐震・省エネ性能
・耐震等級2×制震ダンパー採用で安心安全
・ZEH水準で省エネ・高断熱の生活環境を実現!
【みらいエコ住宅2026事業対象物件】
■暮らしやすい住環境
・スーパーマツゲン外環八尾店まで徒歩7分!
・ドラッグストアコスモスまで徒歩9分!
・東山本小学校、東中学校まで徒歩10分◎
・フォレストモール八尾まで徒歩10分
・週末はアリオ八尾や久宝寺緑地などお出かけスポットも多数♪
※掲載の徒歩分数は80m、自転車分数は250m、
車分数は400mを1分として算出した概算時間です。
休日はアリオ八尾でお買い物!映画館もあるので、ご家族で映画鑑賞を楽しめます!また、久宝寺緑地まで車で約13分なので、お子さまと一緒に体を動かしながら遊べます!是非お問い合わせください!


ご予約いただくと、事前にスタッフがスケジュールを調整し、ご案内させていただきます。お待ちいただくこともございませんので、ご予約ください。もし都合が悪くなれば、前日までにお伝えいただければ、代わりの日程を調整させていただきます。

近隣の分譲物件情報や家づくりの資料などをご予約時にお渡しさせていただきます。モデルハウスを見学いただいた後、ご自宅でじっくりと家づくりについてお話をいただくことができます。

ご来場予約をいただいた方に、QUOカードを進呈しています。モデルハウス見学後に、使っていただいてもOK。
※ご家族様1回限りとなります。またモデルハウス見学アンケートにご記入いただくことが条件となります。
| 物件種別 | 新築一戸建て(建築中) |
|---|---|
| 所在地 | 大阪府八尾市東町1丁目32番16号付近 |
| 主要交通 | 近鉄大阪線「河内山本」駅 自転車6分(1300m) |
| その他交通 | 近鉄信貴線「服部川」駅 徒歩15分(1200m) |
| 総区画 | 1区画 |
| 販売区画数 | 1区画 |
| 敷地面積 | 62.15㎡(18.80坪) |
| 延床面積 | 99.92㎡(30.23坪) |
| 間取り | 2LDK+S |
|---|---|
| 構造・工法 | 木造3階建て |
| 駐車場 | 1台 |
| 建ぺい率 | 60% |
| 容積率 | 200% |
| 地目 | 宅地/平坦 |
| 用途地域 | 第二種中高層住居専用地域 |
| 道路 | 区画図をご参照ください |
| 設備仕様 | 公営水道、本下水、都市ガス |
| 引渡時期 | 2026年6月末上旬予定 |
| 完成時期 | 2026年6月上旬完成予定 |
| 権利形態 | 所有権 |
| 取引形態 | 売主 |
| 建築確認番号 | 第総合25-0121 号(2025年11月19日) |
| その他の制限 | 準防火地域・第2種高度地区 |
| 情報公開日 | 2026年4月30日 |
| 次回更新予定日 | 2026年5月10日 |