南向きのぬくもり感じるゆとりの間口のお家

光と広がりを活かした、ゆとりある2階LDKのお家です。建物は南向きにゆったりとした間口を確保し、やわらかな光に包まれることで明るさと開放感をもたらします。2階に設けた18帖超のLDKは、その特長を活かした心地よい空間です。大きな開口部から自然光が差し込み、室内全体をやさしく包み込みます。対面キッチンの正面にはダイニングを配置し、料理をしながら家族と目線を合わせて会話ができるレイアウトとしました。LDKの奥に設けたリビングは、袖壁によってゆるやかにゾーニングしています。つながりを保ちながら空間をほどよく仕切ることで、家族の気配を感じつつも落ち着いて過ごせる居場所としました。ゆとりある間口と南向きの心地よさ。その魅力を最大限に活かした、明るさと安心感を兼ね備えた住まいです。

WORKS
八尾市

LIVONE東町1丁目

    • 所在地

      八尾市
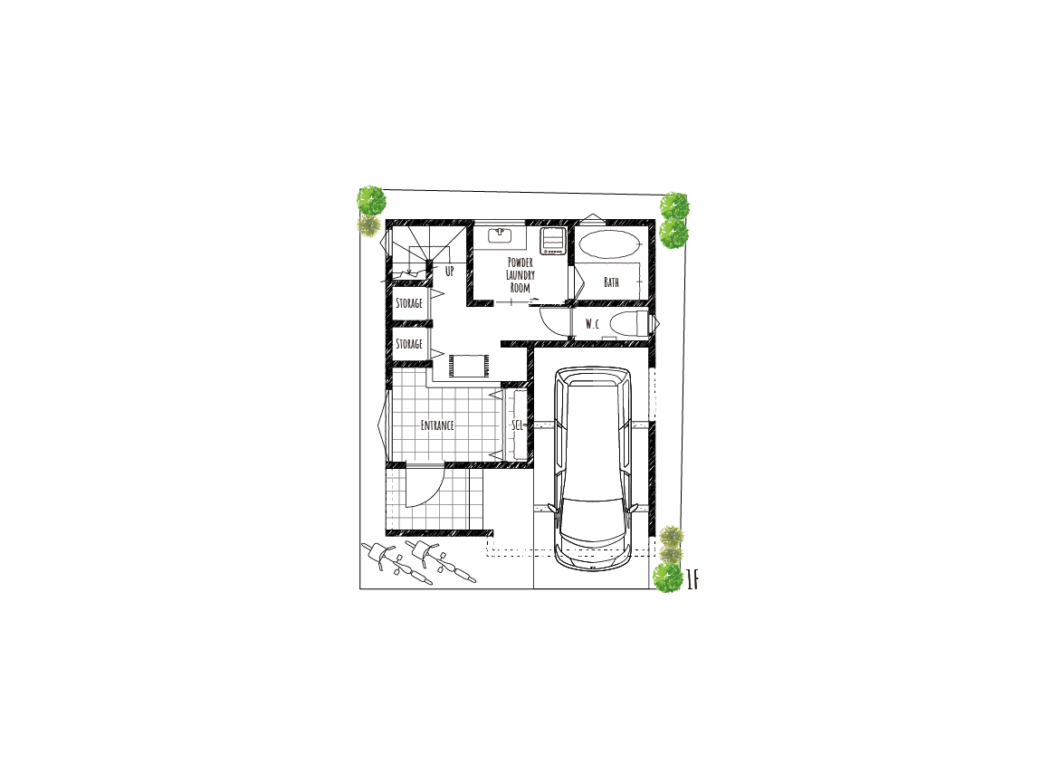
    • 間取り

      2LDK+S
    • 敷地面積

      62.15m²(18.80坪)
    • 延床面積

      99.92m²(30.22坪)
  • ほどよく落ち着ける南向きリビング

    2階の奥に設けた南向きのリビングです。南面に設けた大きな窓から差し込むやわらかな光が、空間全体を明るく包み込みます。キッチンとの間には袖壁を設けることで、空間をやさしくゾーニングしました。家族とのつながりを感じながらも、リビングではゆったりと落ち着いて過ごすことができます。
    ※画像はイメージパースのため、実際とは異なる場合があります。

  • 収納も充実の使いやすい対面キッチン

    目の前にダイニング、となりにリビングが広がる対面キッチンです。下がり天井で落ち着いて作業しながら、それぞれの空間でくつろぐご家族を見守ることができます。奥には冷蔵庫もすっきり収まるパントリーを設置。食材のストックや日用品の収納に便利で、キッチンまわりをいつもきれいに保てます。
    ※画像はイメージパースのため、実際とは異なる場合があります。

  • ゆとりがうれしい広々とした玄関

    ゆとりある広さの玄関には、シューズクローゼットに加え、枕棚付きのハンガーパイプを設け、コートなどを掛けておけます。玄関ホールにも物入を設置しました。L字型の広めの上がり框は、2人並んでもゆったり靴の脱ぎ履きができます。玄関ドアの正面には壁を設け、プライバシーにも配慮しています。
    ※画像はイメージパースのため、実際とは異なる場合があります。

  • ゆったりくつろげる南向きの主寝室

    南向きでバルコニーに面した主寝室は、明るい陽光や心地よい風に包まれる開放感のある空間です。ウォークインクローゼットを備えているため、衣類や小物を整理でき、室内を広く使えます。窓から差し込む光と風を感じながら、読書やくつろぎの時間を楽しみ、プライベートタイムを快適に過ごせます。
    ※画像はイメージパースのため、実際とは異なる場合があります。

  • 雨の日も濡れずに出入りできるインナーガレージ

    ビルトインタイプのインナーガレージを設けました。運転席から降りてそのまま玄関へ移動できる、スムーズな動線が魅力です。雨の日もぬれずに安心して帰宅できます。お子さまを抱っこしている時や、買い物帰りで荷物が多い日も安心です。天気を気にせず、毎日の出入りをより快適にしてくれます。
    ※画像はイメージパースのため、実際とは異なる場合があります。

PLANNING

LOCATION & ACCESS

〒581-0861 八尾市東町1丁目32番16号 付近
TOP