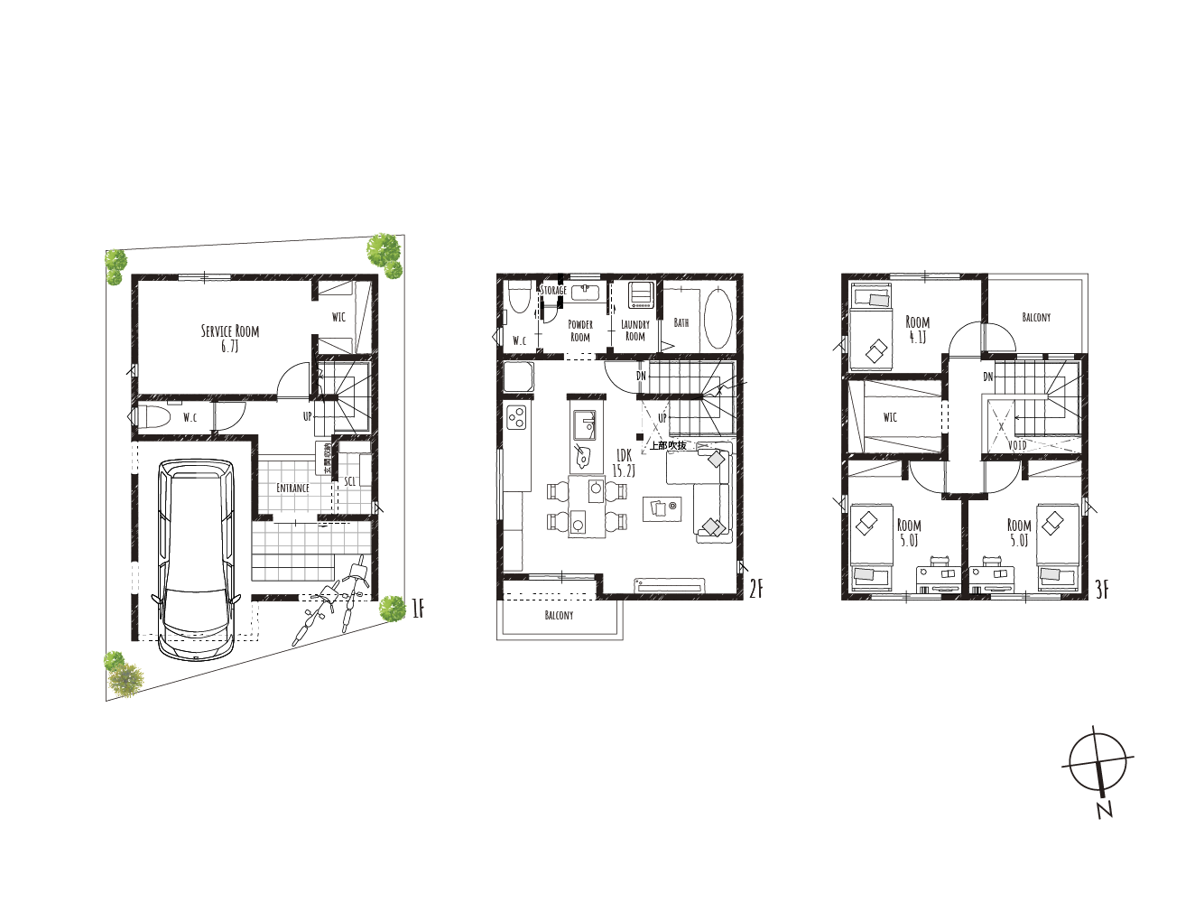
2階に水廻りを集約し、回遊できる動線で家事もスムーズ。
LDKの階段部分には吹抜けを設け、明るく開放的な空間に仕上げました♪
【LIVONE高柳7丁目】
~家事ストレスなく生活できるお家~
■明るく開放的な暮らし
広々としたシューズクローゼットを備え、玄関まわりもすっきり。
独立洗面室を設けることでプライバシーにも配慮しました◎
1階と3階にはウォークインクローゼットを設け、収納力も充実!
お料理がはかどるⅡ型キッチンを採用した、使い勝手の良い住まいです♪
■安心の耐震・省エネ性能
・耐震等級2×制震ダンパーで安心・安全
・ZEH水準で省エネ・高断熱の生活環境を実現
■暮らしやすい住環境
・啓明小学校まで徒歩4分、第九中学校まで徒歩9分
・スーパーサンディまで徒歩6分、スーパー万代まで徒歩8分
・他にもドラッグストアやコンビニなど生活施設が充実
・寝屋川公園やららぽーと門真など、お出かけスポットも多数
※掲載の徒歩分数は80m、自転車分数は250m、
車分数は400mを1分として算出した概算時間です。
小中学校が近く、周辺にはスーパーやドラッグストア、コンビニなどがあり、ご家族みんなにうれしい立地です。寝屋川公園やららぽーとなど、お出かけスポットもたくさんあるのでお休みの日も充実します!


ご予約いただくと、事前にスタッフがスケジュールを調整し、ご案内させていただきます。お待ちいただくこともございませんので、ご予約ください。もし都合が悪くなれば、前日までにお伝えいただければ、代わりの日程を調整させていただきます。

近隣の分譲物件情報や家づくりの資料などをご予約時にお渡しさせていただきます。モデルハウスを見学いただいた後、ご自宅でじっくりと家づくりについてお話をいただくことができます。

ご来場予約をいただいた方に、QUOカードを進呈しています。モデルハウス見学後に、使っていただいてもOK。
※ご家族様1回限りとなります。またモデルハウス見学アンケートにご記入いただくことが条件となります。
| 物件種別 | 新築一戸建て(建築中) |
|---|---|
| 所在地 | 寝屋川市高柳7丁目6番2号 付近 |
| 主要交通 | 京阪本線「寝屋川市」駅 自転車8分(1800m) |
| その他交通 | 京阪バス「対馬江」停 徒歩7分(550m)、 京阪本線「寝屋川市」駅までバス12分 |
| 総区画 | 1区画 |
| 販売区画数 | 1区画 |
| 敷地面積 | 64.40㎡(19.48坪) |
| 延床面積 | 97.50㎡(29.49坪) |
| 間取り | 3LDK+S |
|---|---|
| 構造・工法 | 木造3階建て |
| 駐車場 | 1台 |
| 建ぺい率 | 60% |
| 容積率 | 200% |
| 地目 | 宅地/平坦 |
| 用途地域 | 第二種中高層住居専用地域 |
| 道路 | 区画図をご参照ください |
| 設備仕様 | 公営水道、本下水、都市ガス |
| 引渡時期 | 2026年8月下旬予定 |
| 完成時期 | 2026年8月下旬完成予定 |
| 権利形態 | 所有権 |
| 取引形態 | 売主 |
| 建築確認番号 | 第HK25-0787号(2026年3月24日) |
| その他の制限 | 準防火地域、第2種高度地区 |
| 情報公開日 | 2026年4月16日 |
| 次回更新予定日 | 2026年4月30日 |